+ Lisa oma töö      

Otsid ehitajat "Ehitusprojektid" valdkonnast?

Parima pakkumise ja teostaja leidmiseks lisa oma töö.

Hange on lõppenud!

Võitjaks osutus kasutaja ID 37565

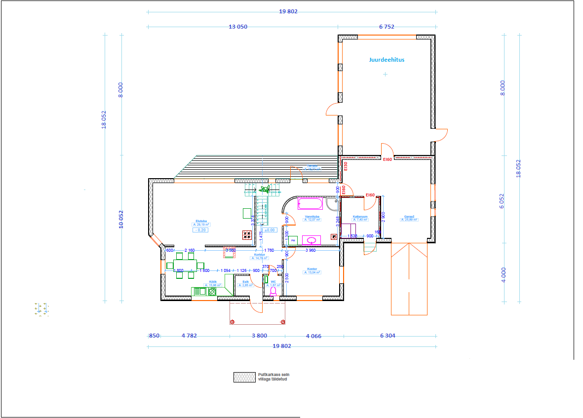
Eramu juurdeehituse ehitusteatise projekt.

ID 80236

519 vaatamist

Prindi

  • check Pakkumiste tegemine
    kuni 16.04.2023
  • check Võitja valik kuni
    23.04.2023
  • 3 Töö teostamine
    ja hinnang
Hanke lõpp: P, 16. aprill, 2023
Maakond: Tartumaa
Muu asula: Lemmatsi
Tööde algus: E, 03. aprill, 2023 (Soovituslik)
Tööde lõpp: P, 30. aprill, 2023 (Soovituslik)
Ehitusmaterjalid: Töö tellija poolt
Soovin pakkumisi: Summa kogu projektile

Töö sisu

Soovin leida projekteerijat, kes koostaks eramu juurdeehituse projekti Tartumaa, Kambja vallavalitsusele esitamiseks.
Olemas seletuskirja mustand. Digitaalsed asendi-, alusplaani ja vaadete eskiisjoonised ning kevad 2022 tellitud geoalusmõõtmised ja joonised.

Pildid, video ja failid

Hanke korraldaja: eraisik ID73726

Pakkumised

Pakkumisi kokku: 7

Ettevõte Summa Käibemaks Lisatud Vestlus
Kasutaja ikoon ID40011
Pakkuja profiil Väike nool paremale
2 100€ Sisaldab KM Sisaldab KM 05.04.2023 Vestlus (0)

Pakkumise kirjeldus:

Pakkumine Eelprojektile ja menetlusele KOVis.

Kasutaja ikoon ID69164
Pakkuja profiil Väike nool paremale
1 700€ Ei ole KMKR Ei ole KMKR 08.04.2023 Vestlus (0)

Pakkumise kirjeldus:

Tere,
Pakkumise hind sisaldab:
Elamu ehituskonstruktsioonide projekti eelprojekti staadiumis.

Projekti sisu:
1. Seletuskiri,
2. Joonised (plaanid, vaated, lõiked, sõlmed).

Projekti kooskõlastamine KOV-s, päästeametis.

Riigilõivud, energiamärgis ei kuulu hinna sisse.

Kasutaja ikoon ID73584
Pakkuja profiil Väike nool paremale
1 800€ Ei ole KMKR Ei ole KMKR 08.04.2023 Vestlus (0)

Pakkumise kirjeldus:

SISALDAB:
- Juurdeehituse arhitektuurne eelprojekt (seletuskiri, asendiplaan, korruseplaan, vajadusel katuse plaan, vaated, lõige) volitatud arhitekti kinnitusega;
- ehitisregistri toimingud ja kooskõlastused kuni eeldatava ehitisteatise registreerimiseni (sh märkuste parandamine ja muudatused);
- vajadusel tellija või ehitaja soovil detailsemad joon ... Rohkem

Kasutaja ikoon ID48870
Pakkuja profiil Väike nool paremale
1 850€ Ei ole KMKR Ei ole KMKR 15.04.2023 Vestlus (0)

Pakkumise kirjeldus:

Ehitusprojekt eelprojekti staadiumis ehitisregistrile esitamiseks
Pakkumishind sisaldab:
Seletuskiri,Korruste plaanid, Katuse plaan,Hoone lõige, Hoone vaated, Avatäidete joonised, jm asjakohased vajalikud joonised, Asendiplaan
Kooskõlastused ehitusloa saamiseks
Ehitusloa taotluse esitamine ehistisregistrisse
Kui arve tuleb eraisikule siis saab ka ilm ... Rohkem

Kasutaja ikoon ID37565
Pakkuja profiil Väike nool paremale
1 000€ Ei ole KMKR Ei ole KMKR 16.04.2023 Vestlus (0)

Pakkumise kirjeldus:

Tere

Pakkumine sisaldab arhitektuurset eelprojekti:
- tekstiline osa: seletuskiri.
- graafiline osa: situatsiooniskeem, asendiplaan, vundamendi plaan, korruste plaanid, katuse plaan, lõige, vaated, avatäidete spetsifikatsioon.

Pakkumine sisaldab ehitusloa taotluse esitamist Ehitisregistrisse, kooskõlastamist vallavalitsusega kuni ehitusloa và ... Rohkem

Kasutaja ikoon ID26988
Pakkuja profiil Väike nool paremale
1 600€ Ei ole KMKR Ei ole KMKR 16.04.2023 Vestlus (0)

Pakkumise kirjeldus:

Pakkumine sisaldab projekti ehitusloa taotlemiseks / ehitusteatise esitamiseks vajalikus eel- või põhiprojekti mahus, vastavalt normidele ja standartidele ning Teie kirjeldusele. Kõik kooskõlastused ja asjaajamised kuni ehitusloani / ehitusteatise registreerimiseni. Vajadusel konsultatsioonid ja mõõdistamine. Projekt digitaalselt Teile sobivates forma ... Rohkem

Kasutaja ikoon ID73479
Pakkuja profiil Väike nool paremale
3 000€ Sisaldab KM Sisaldab KM 16.04.2023 Vestlus (0)

Pakkumise kirjeldus:

Tere

Hea meelega teostame tööd teie jaoks.Tööd tehakse kvaliteetselt ja võimalikult kiiresti.Pakume 5 aastane garantii oma töödele.
Pakume teile teha plekikatuse paigaldust, topeltvaltssi tehnoloogia (ilma kruvideta). See on kõige parim lahendus oma majale. Garantii on aastateks.
See hind sisaldab kõiki nimekirjas olevaid soovitud tööd.
Spet ... Rohkem

Küsimused hanke korraldajale

Hanke korraldajale ei ole veel küsimusi esitatud.

Lisa küsimus

Lisa küsimus

Minu pakkumine

€

Reeglid

Pakkumise kirjelduse väli on mõeldud pakkumise detailsemaks lahti kirjutamiseks. Pikema teksti mugavaks sisestamiseks klikkige kasti paremal ülaservas oleval ikoonil.
Pakkumist tehes on keelatud postitada enda kontaktandmeid (nimi, telefon, aadress jne). Me jälgime ja analüüsime pakkumisi, et vältida pettuseid ja reeglite rikkumisi.
Rikkumise puhul kasutajakonto blokeeritakse.

 

Teisi töid samas valdkonnas

Valdkonnas "Ehitusprojektid" on 5 aktiivset tööd

no-img Pilt puudub

Kortermaja kõigi ruumide mõõdistamine ja DWG faili koostamine

Asukoht: Harjumaa, Tallinn
Aega jäänud: 2p 2h
Tehtud pakkumisi: 2

Korterelamu mõõdistusprojekti koostamine ja jooniste digitaliseerimine

Asukoht: Lääne-Virumaa, Tapa
Aega jäänud: 5p 2h
Tehtud pakkumisi: 2

Vanemad teated:

Vaata kõiki

Sellel veebilehel kasutatakse küpsiseid. Kasutamist jätkates nõustute küpsiste kasutamisega.

Sulge
 
Minu pakkumine
€

Reeglid

Pakkumise kirjelduse väli on mõeldud pakkumise detailsemaks lahti kirjutamiseks. Pikema teksti mugavaks sisestamiseks klikkige kasti paremal ülaservas oleval ikoonil.
Pakkumist tehes on keelatud postitada enda kontaktandmeid (nimi, telefon, aadress jne). Me jälgime ja analüüsime pakkumisi, et vältida pettuseid ja reeglite rikkumisi.
Rikkumise puhul kasutajakonto blokeeritakse.