+ Lisa oma töö      

Otsid ehitajat "Üldehitus" valdkonnast?

Parima pakkumise ja teostaja leidmiseks lisa oma töö.

Maja ehitus

ID 79915

2193 vaatamist

Prindi

  • check Pakkumiste tegemine
    kuni 05.05.2023
  • check Võitja valik kuni
    12.05.2023
  • 3 Töö teostamine
    ja hinnang
Hanke lõpp: R, 5. mai, 2023
Maakond: Harjumaa
Linn: Tallinn
Tööde algus: E, 17. aprill, 2023 (Soovituslik)
Tööde lõpp: L, 30. september, 2023 (Soovituslik)
Ehitusmaterjalid: Töö tegija poolt
Soovin pakkumisi: Summa kogu projektile

Töö sisu

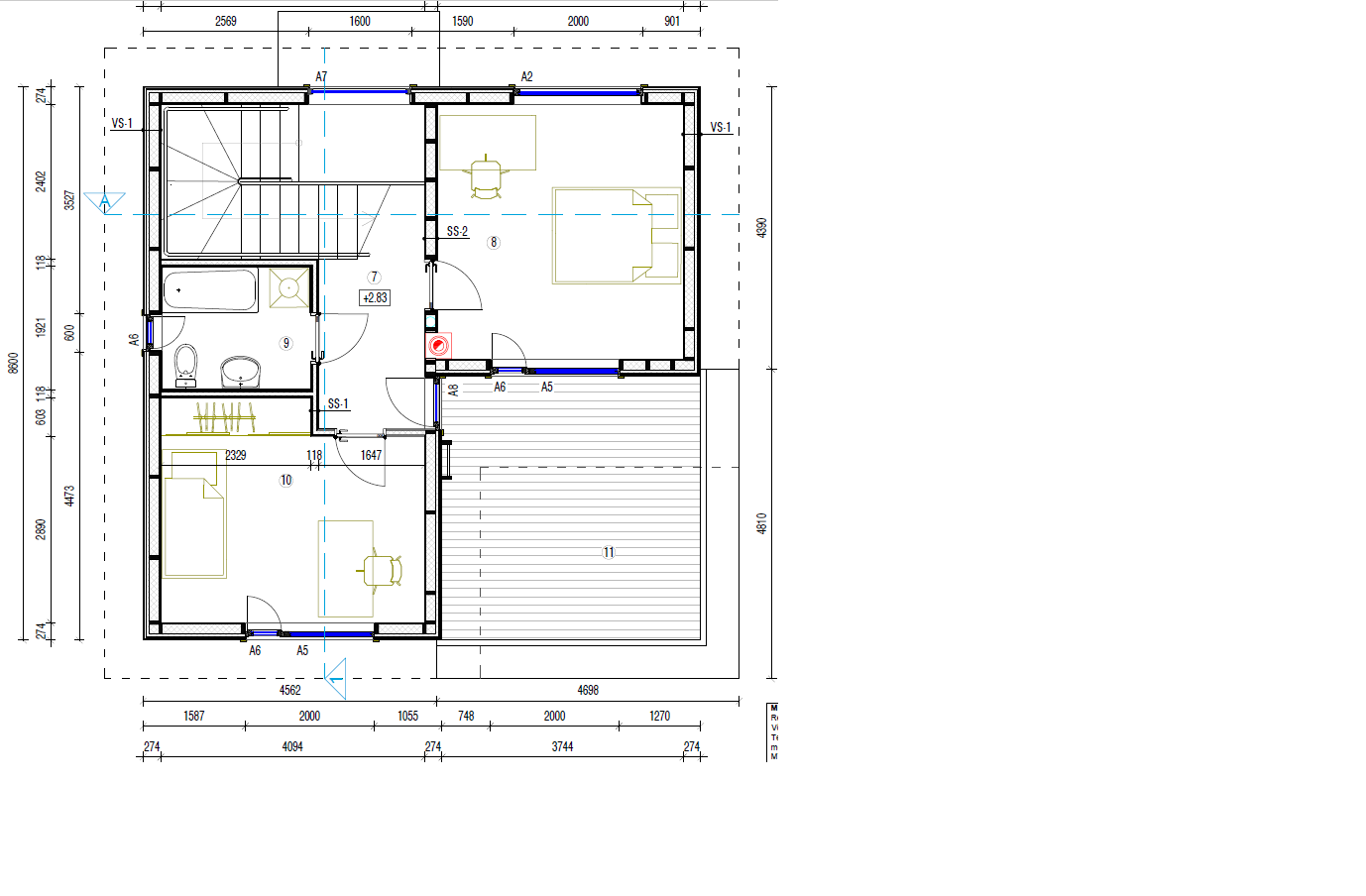
Ehitada puitkarkassmaja peatöövõtuna 109.4 m2, Tallinn, Pirita, Mähe
Tööde algus - asap.

Pildid, video ja failid

Hanke korraldaja: eraisik ID61786

Pakkumised

Pakkumisi kokku: 17

Ettevõte Summa Käibemaks Lisatud Vestlus
Kasutaja ikoon ID52293
Pakkuja profiil Väike nool paremale
195 000€ Sisaldab KM Sisaldab KM 05.04.2023 Vestlus (0)
Kasutaja ikoon ID73822
Pakkuja profiil Väike nool paremale
200 000€ Sisaldab KM Sisaldab KM 06.04.2023 Vestlus (0)
Kasutaja ikoon ID56824
Pakkuja profiil Väike nool paremale
165 000€ KM lisandub KM lisandub 06.04.2023 Vestlus (2)

Pakkumise kirjeldus:

Võtmed kätte

Kasutaja ikoon ID33360
Pakkuja profiil Väike nool paremale
165 000€ Sisaldab KM Sisaldab KM 06.04.2023 Vestlus (5)

Pakkumise kirjeldus:

Tere, pakkumine tehtud vundamendist kuni lõpp viimistluseni.

Kasutaja ikoon ID46738
Pakkuja profiil Väike nool paremale
195 000€ Sisaldab KM Sisaldab KM 06.04.2023 Vestlus (0)

Pakkumise kirjeldus:

Pakkumine vundamendist alates. Plaatvundament, puitkarkass maja, Classik profiil plekk, PVC aknad, parketi hinnaklass 25€/m2, plaadid 25€/m2. Õhk vesi soojuspump, sundventilatsioon, puitvahelagi, kipsivalu II korrusel. Seinad 2x kipsplaat, lagi 2x kipsplaat, viimistlus kvaliteediklass RYL 2 klass. Detailse pakkumise esitame, kui jõuame lepingusse. ... Rohkem

Kasutaja ikoon ID48007
Pakkuja profiil Väike nool paremale
170 000€ Sisaldab KM Sisaldab KM 08.04.2023 Vestlus (3)
Kasutaja ikoon ID73890
Pakkuja profiil Väike nool paremale
185 980€ KM lisandub KM lisandub 10.04.2023 Vestlus (0)

Pakkumise kirjeldus:

Tere päevast . Pakun avatud tüüpi koostööd. Materjalide eest eraldi tasu, töö maksumus eraldi.

Kasutaja ikoon ID73935
Pakkuja profiil Väike nool paremale
174 800€ Sisaldab KM Sisaldab KM 11.04.2023 Vestlus (0)
Kasutaja ikoon ID72647
Pakkuja profiil Väike nool paremale
160 000€ Ikoon kell KM lisandub KM lisandub 14.04.2023 Vestlus (0)

Pakkumise kirjeldus:

Võtmed kätte lahendus

Kasutaja ikoon ID44954
Pakkuja profiil Väike nool paremale
175 000€ KM lisandub KM lisandub 18.04.2023 Vestlus (0)

Pakkumise kirjeldus:

Tere!

Meie pakkumine vastavalt hankes esitatud infole.
Kindlasti ei ole kõige soodsam, samas võite kindel olla, et saate hea teenuse ilma igasugu jamadeta. Eks seda kinnitab meile antud tagasiside samuti.
Nagu näen enamikel pakkujatel pole esitada erilisi referentse jne. Seega meie eeliseks kindlasti selliste asjade olemasolu.

Kui esineb teiepo ... Rohkem

Kasutaja ikoon ID70588
Pakkuja profiil Väike nool paremale
191 000€ Ei ole KMKR Ei ole KMKR 27.04.2023 Vestlus (0)

Pakkumise kirjeldus:

Tere,

Pakkumine küsitud töödele koos materjalidega ja kohese alustamisega:

Tehase puitsõrestik + lihtsad ja toimivad lahendused + kohalikud töömehed Mähelt.

Nb! Palun eelnevalt vestlus alustada kui juhtub, et valituks võiksime osutuda...

Lugupidamisega,

jm.

Kasutaja ikoon ID74103
Pakkuja profiil Väike nool paremale
190 000€ KM lisandub KM lisandub 02.05.2023 Vestlus (0)

Pakkumise kirjeldus:

Plaatvundamelt, puitkarkass elementmaja. Katusel siis classic plekk. Köögimööbel jms läbiräägitav.
Omame pikaaegset kogemust skandinaavias puitkarkassmajade püstitamisel. Võtke julgelt ühendust.

Kasutaja ikoon ID70688
Pakkuja profiil Väike nool paremale
175 000€ Sisaldab KM Sisaldab KM 03.05.2023 Vestlus (0)

Pakkumise kirjeldus:

Tere!

Hind sisladab:

1. Peatöövõtu korras ehitusteenus vastavalt projektile 109,4m2 elamu ehitust
2. Osad tööd teeme omade jõududega
3. Ehitussoojakut objektil
4. Tualetti obektil
5. Prahi utiliseerimine
6. Hange.ee tasu

Erki

Kasutaja ikoon ID4350
Pakkuja profiil Väike nool paremale
211 609€ Sisaldab KM Sisaldab KM 04.05.2023 Vestlus (0)

Pakkumise kirjeldus:

Seina materjaliks valitud TermoPlokk Silver 320 mida toodab Reideni Plaat OÜ. Olemegi seda tüüpi materjalist hoonete ehitamise spetsialiseerunud. Väga hea soojapidvaus, Kiire püstitus. Katus on fermidel. Hinnas trasside ühendamine, kuni võtmed kätte. Hind sisaldab teostusjooniseid ja muu sinna juurde kuuluv kuni kasutusloani.

Kasutaja ikoon ID73479
Pakkuja profiil Väike nool paremale
180 000€ Sisaldab KM Sisaldab KM 05.05.2023 Vestlus (0)

Pakkumise kirjeldus:

Tere

Hea meelega teostame tööd teie jaoks.Tööd tehakse kvaliteetselt ja võimalikult kiiresti.Pakume 5 aastane garantii oma töödele.
Pakume teile teha plekikatuse paigaldust, topeltvaltssi tehnoloogia (ilma kruvideta). See on kõige parim lahendus oma majale. Garantii on aastateks.
See hind sisaldab kõiki nimekirjas olevaid soovitud tööd.
Spet ... Rohkem

Kasutaja ikoon ID64032
Pakkuja profiil Väike nool paremale
196 200€ KM lisandub KM lisandub 05.05.2023 Vestlus (0)

Pakkumise kirjeldus:

Tere!

Hind vastavalt hanke kirjeldusele.
Täpne hind peale projektiga tutvumist.

Parimate soovidega
Kristjan

Kasutaja ikoon ID72809
Pakkuja profiil Väike nool paremale
192 400€ KM lisandub KM lisandub 05.05.2023 Vestlus (0)

Pakkumise kirjeldus:

Hind vastavalt hanke kirjeldusele.

2a garantii ning firmal 500 000 väärtuses vastutuskindlustus.

Tööde algus juuni algus.

Arveldamine vastavalt tehtud töödele etteappide kaupa ja arve alusel.

Küsimused hanke korraldajale

Küsimus: private ID4350   05.04.2023 14:42
Tere lp. hanke korraldaja
Mõned küsimused.
Millised on avatäited ? Kas saaks avatäidete spetsifikatsiooni. Küttelahendus?
Katusekattenaterjal- tundub ühel pildil olevat kirjas Profiilplekk? Kommunikatsiooni punktid ? Mõned sõlmed võiks ka konstruktsiooni tüüpidest olla saadaval.
Geodeesia ? Kas plats on tühi või toimub ehitus vanale krundile?
Siseviimistluse kentseptsioon.

Teavita reeglite rikkumisest

Korraldaja vastus: 06.04.2023 08:58

Tervist, muidugi.

Küte - õhk vesi pump, põrandaküte kahel korrusel.
Katusekate - profiilplekk.
Komunikatsioonipunktid - asendiplaanil olemas. Kuhu saan saata? Nn tehnoalast trepi all, kuskil 7m on elektrini veeni kanalini krundi piiril.
Platsi on tühi, vana maja lammutatud, kuid ehitus toimub vanale krundile.
Siseviimistluse kontseptsioon - ei sihi eksklusiivsust materjalides, töö võiks olla korralikult tehtud. Esikusse vannitubadesse plaat, mujale parkett või laminaat. seinad värvida.
Piisavalt pistikuid ja lampe.

Teavita reeglite rikkumisest

Küsimus: private ID44954   06.04.2023 11:19
Tere!

Kas kandekonstruktsiooni materjali valiku osas on kindlaid erisoove?
Kui sobilik pakuks välja puit- sandwich paneele (OSB/ PUR/ KARKASS/ OSB) OSB võimalik asendada ka nt. tsementkiud plaadiga.
EELISED: Tehases toodetud soojustusega detailid, kiire püstitus ehitusplatsil (u. 2p)
Soojapidavus võrdeline Bauroc 500 kiviga U= 0,14, võimalik kasvatada kuni 0,09- ni
Loomulikult ehitame ka klassikalisel viisil.

Lugupidamisega,

HE

Teavita reeglite rikkumisest

Korraldaja vastus: 06.04.2023 14:20

Tere
Soov on 21x120mm voodrilaud, 25x50mm distantsliist,
tuuletõkke- membraan, 45x195mm puitkarkass
tuuletõkkekipsplaat, vuugiteip.

Tehaselised katusefermid.

Minu jaoks tegelikult pole otseselt oluline mis viisil kas tehases koostatud paneelide paigaldamine või ehitusplatsil ehitamine.
Ma ostan hinda siin juures. Tekib küsimus tehases koostatud tööle ettemaksus ilmselt ka.

Teavita reeglite rikkumisest

Küsimus: private ID59528   04.05.2023 13:10
Tere,

Kas teil on lōike ja vundamendi plaanid ka olemas ?
Neid oleks vaja, et saaksime hinnapakkumise koostada

Parimat,

Erik

Teavita reeglite rikkumisest

Korraldaja vastus:
Hanke korraldaja ei ole küsimusele veel vastanud

Lisa küsimus

Lisa küsimus

Minu pakkumine

Reeglid

Pakkumise kirjelduse väli on mõeldud pakkumise detailsemaks lahti kirjutamiseks. Pikema teksti mugavaks sisestamiseks klikkige kasti paremal ülaservas oleval ikoonil.
Pakkumist tehes on keelatud postitada enda kontaktandmeid (nimi, telefon, aadress jne). Me jälgime ja analüüsime pakkumisi, et vältida pettuseid ja reeglite rikkumisi.
Rikkumise puhul kasutajakonto blokeeritakse.

 

Teisi töid samas valdkonnas

Valdkonnas "Üldehitus" on 32 aktiivset tööd

Põrandakütte torustiku ja kollektori paigaldus.

Asukoht: Harjumaa, Kurkse
Aega jäänud: 16p 3h
Tehtud pakkumisi: 4

Kuuri lammutus

Asukoht: Pärnumaa
Aega jäänud: 3p 3h
Tehtud pakkumisi: 3

Vanemad teated:

Vaata kõiki

Sellel veebilehel kasutatakse küpsiseid. Kasutamist jätkates nõustute küpsiste kasutamisega.

Sulge
 
Minu pakkumine

Reeglid

Pakkumise kirjelduse väli on mõeldud pakkumise detailsemaks lahti kirjutamiseks. Pikema teksti mugavaks sisestamiseks klikkige kasti paremal ülaservas oleval ikoonil.
Pakkumist tehes on keelatud postitada enda kontaktandmeid (nimi, telefon, aadress jne). Me jälgime ja analüüsime pakkumisi, et vältida pettuseid ja reeglite rikkumisi.
Rikkumise puhul kasutajakonto blokeeritakse.