+ Lisa oma töö      

Otsid ehitajat "Projekteerimine" valdkonnast?

Parima pakkumise ja teostaja leidmiseks lisa oma töö.

Eramu Renoveerimistööde Projekt+

ID 78598

382 vaatamist

Prindi

  • check Pakkumiste tegemine
    kuni 04.02.2023
  • check Võitja valik kuni
    11.02.2023
  • 3 Töö teostamine
    ja hinnang
Hanke lõpp: L, 4. veebruar, 2023
Maakond: Harjumaa
Linn: Keila
Tööde algus: L, 01. aprill, 2023 (Soovituslik)
Tööde lõpp: L, 30. september, 2023 (Soovituslik)
Ehitusmaterjalid: Töö tellija poolt
Soovin pakkumisi: Summa kogu projektile

Töö sisu

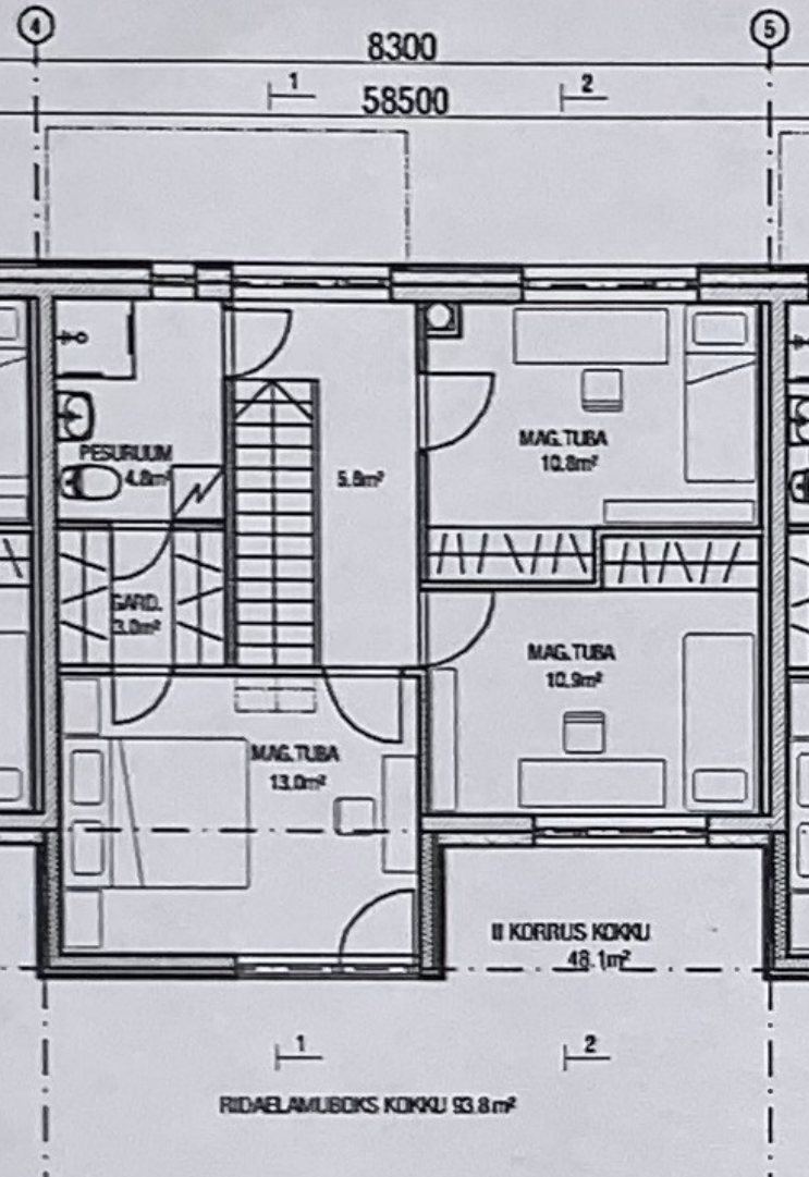
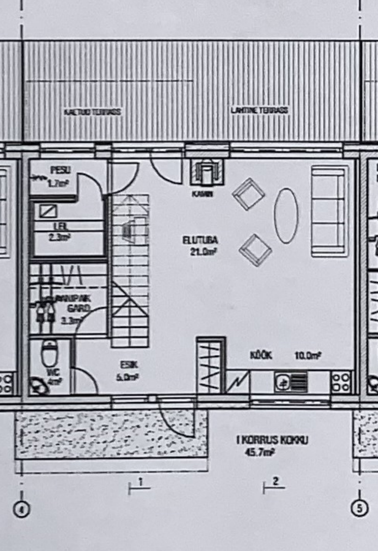
Soovin pakkumist projektile, mis on vajalik tööde kooskõlastamiseks ja sisaldab ridaelamuboks (4 tuba, wc, saun, 2 pesuruumi, panipaik) 94m2 põrandapinda):
1. Sundventilatsiooni ümber ehitamine soojustagastusega ventilatsiooniks.
2. Elutoa põranda parketi alla infrapuna elektriküttemati paigaldamine.
3. Katuslae soojustamine 100mm SPU/PIR plaadiga, lae poolt.
4. Akende (sh terassiuks-aken) vahetus.
5. Elutoa jätkuks ca12m2 talveaed/klaaskoda (puit-klaas või teras-klaas) planeering/projekt.

Alginfoks olemas pdf kujul pinnalaotused, majaplaan ja üsna täpne ettekujutus kõikidest vajalikest detailidest. Töövõtjalt eeldan garantiid, et projekt vastab kooskõlastamiseks vajalikele tingimustele. Midagi ülidetailset ei ole vaja.

Pildid, video ja failid

Hanke korraldaja: eraisik ID72554

Pakkumised

Pakkumisi kokku: 2

Ettevõte Summa Käibemaks Lisatud Vestlus
Kasutaja ikoon ID26988
Pakkuja profiil Väike nool paremale
2 100€ Sisaldab KM Sisaldab KM 02.02.2023 Vestlus (0)

Pakkumise kirjeldus:

Pakkumine sisaldab projekti ehitusteatise esitamiseks vajalikus mahus, vastavalt normidele ja standartidele ning Teie kirjeldusele. Kõik kooskõlastused ja asjaajamised kuni ehitusteatise registreerimiseni. Vajadusel konsultatsioonid ja mõõdistamine. Projekt digitaalselt Teile sobivates formaatides, 3D-visualiseering.
Geoalus, riigilõivud ja seotud ... Rohkem

Kasutaja ikoon ID48870
Pakkuja profiil Väike nool paremale
2 400€ Ei ole KMKR Ei ole KMKR 04.02.2023 Vestlus (0)

Pakkumise kirjeldus:

Ehitusprojekt eelprojekti staadiumis ehitisregistrile esitamiseks
Pakkumishind sisaldab:
Seletuskiri,Korruste plaanid, Katuse plaan,Hoone lõige, Hoone vaated, Avatäidete joonised, jm asjakohased vajalikud joonised, Asendiplaan
Kooskõlastused ehitusloa saamiseks
Ehitusloa taotluse esitamine ehistisregistrisse
Kui arve tuleb eraisikule siis saab ka ilm ... Rohkem

Küsimused hanke korraldajale

Hanke korraldajale ei ole veel küsimusi esitatud.

Lisa küsimus

Lisa küsimus

Minu pakkumine

Reeglid

Pakkumise kirjelduse väli on mõeldud pakkumise detailsemaks lahti kirjutamiseks. Pikema teksti mugavaks sisestamiseks klikkige kasti paremal ülaservas oleval ikoonil.
Pakkumist tehes on keelatud postitada enda kontaktandmeid (nimi, telefon, aadress jne). Me jälgime ja analüüsime pakkumisi, et vältida pettuseid ja reeglite rikkumisi.
Rikkumise puhul kasutajakonto blokeeritakse.

 

Teisi töid samas valdkonnas

Valdkonnas "Projekteerimine" on 6 aktiivset tööd

no-img Pilt puudub

1-kordse 120 m2 elumaja põhiprojekt

Asukoht: Harjumaa, Metsanurme
Aega jäänud: 8p 10h
Tehtud pakkumisi: 4

no-img Pilt puudub

Saunamaja eelprojekt ehitusteatiseks

Asukoht: Lääne-Virumaa
Aega jäänud: 1p 10h
Tehtud pakkumisi: 3

Vanemad teated:

Vaata kõiki

Sellel veebilehel kasutatakse küpsiseid. Kasutamist jätkates nõustute küpsiste kasutamisega.

Sulge
 
Minu pakkumine

Reeglid

Pakkumise kirjelduse väli on mõeldud pakkumise detailsemaks lahti kirjutamiseks. Pikema teksti mugavaks sisestamiseks klikkige kasti paremal ülaservas oleval ikoonil.
Pakkumist tehes on keelatud postitada enda kontaktandmeid (nimi, telefon, aadress jne). Me jälgime ja analüüsime pakkumisi, et vältida pettuseid ja reeglite rikkumisi.
Rikkumise puhul kasutajakonto blokeeritakse.