+ Lisa oma töö      

Otsid ehitajat "Projekteerimine" valdkonnast?

Parima pakkumise ja teostaja leidmiseks lisa oma töö.

Hange on lõppenud!

Võitjaks osutus kasutaja ID 63115

Eramaja vesi-kanal-küte-vent projekteerimine

ID 78170

745 vaatamist

Prindi

  • check Pakkumiste tegemine
    kuni 12.01.2023
  • check Võitja valik kuni
    19.01.2023
  • 3 Töö teostamine
    ja hinnang
Hanke lõpp: N, 12. jaanuar, 2023
Maakond: Harjumaa
Tööde algus: E, 16. jaanuar, 2023 (Soovituslik)
Tööde lõpp: E, 30. jaanuar, 2023 (Soovituslik)
Ehitusmaterjalid: Töö tellija poolt
Soovin pakkumisi: Summa kogu projektile

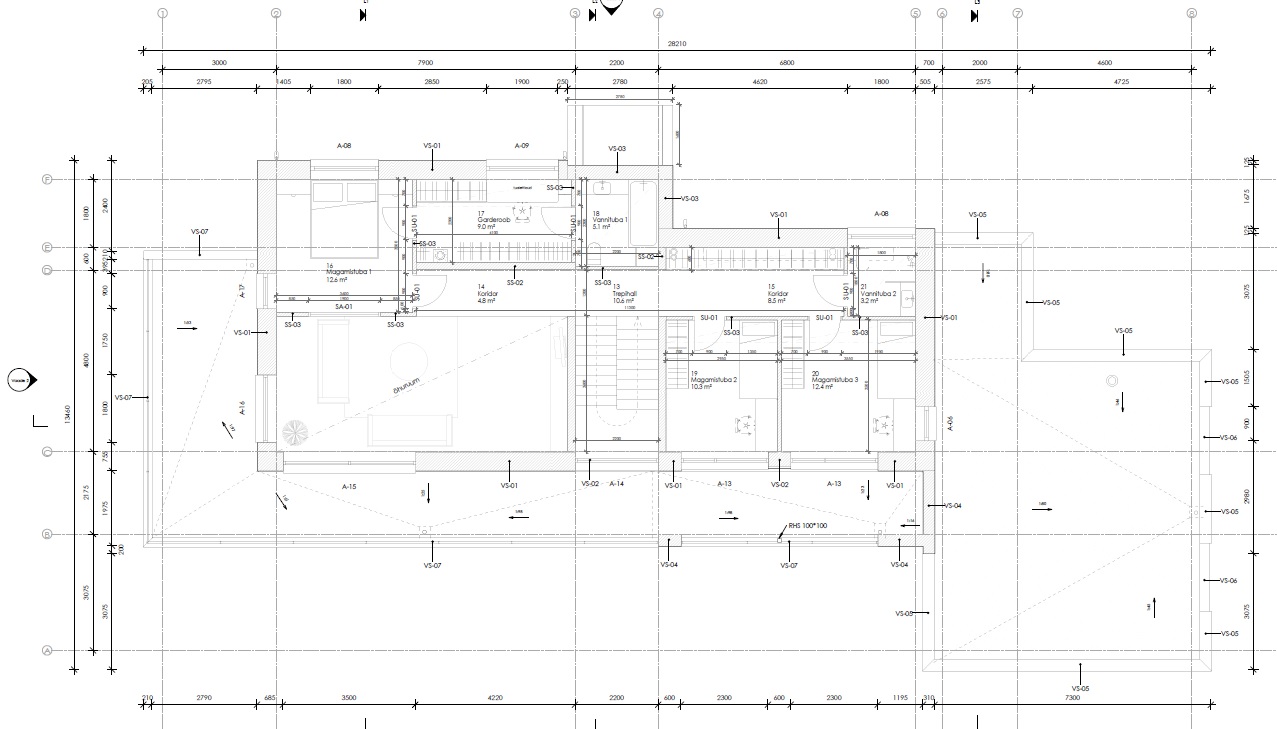
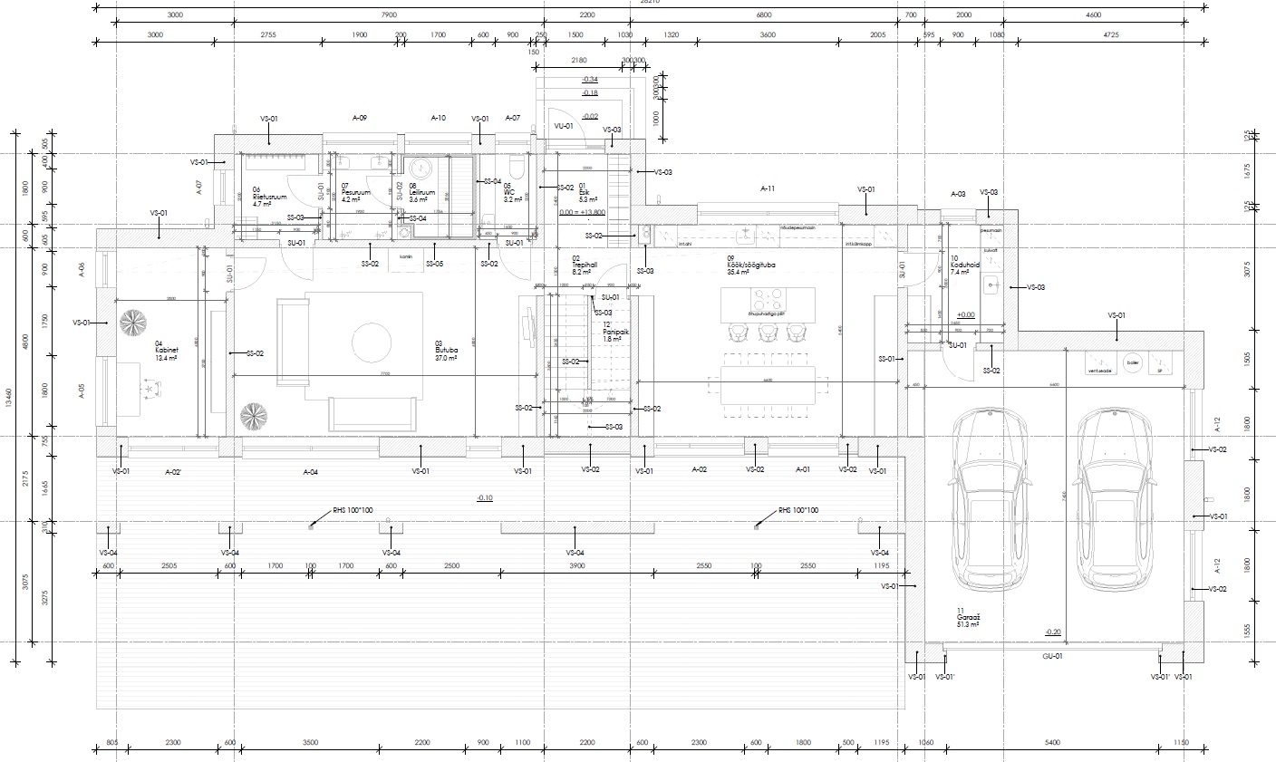
Töö sisu

Uus eramaja 2-korrust.

Vesi-kanalisatsioon-küte-ventilatsioon.

Maaküte.

Oma puurkaev ja kogumismahuti.

Pildid, video ja failid

Hanke korraldaja: eraisik ID5841

Pakkumised

Pakkumisi kokku: 4

Ettevõte Summa Käibemaks Lisatud Vestlus
Kasutaja ikoon ID72196
Pakkuja profiil Väike nool paremale
1 400€ Ei ole KMKR Ei ole KMKR 10.01.2023 Vestlus (0)

Pakkumise kirjeldus:

Põhiprojekt koosseisus:

Seletuskiri
Põhimaterjalide loetelu
Joonised:
Tasakaalustatud ventilatsioonisüsteem - torustiku korruseplaan, vent. agregaadi vajalikud parameetrid agregaadi valikuks, plafoonide asetus koos seadearvudega (ventilatsiooni häälestamiseks),
Hoonesisene veevarustus - korruseplaan torustike läbimõõtudega
Hoonesisene kanalis ... Rohkem

Kasutaja ikoon ID72253
Pakkuja profiil Väike nool paremale
1 200€ Ei ole KMKR Ei ole KMKR 10.01.2023 Vestlus (1)
Kasutaja ikoon ID41204
Pakkuja profiil Väike nool paremale
1 250€ KM lisandub KM lisandub 10.01.2023 Vestlus (0)

Pakkumise kirjeldus:

Projekti mahus:
Seletuskiri
Joonised:
Korruste kütteplaanid seadeventiilide ning termostaatide asetusega (küttekehade võimsused, info ringluspumba vooluhulga ning tõstekõrguse kohta, hoone soojuskoormuse arvutus maasoojuspumba valikuks).
Ventilatsiooni korruseplaanid, ventseadme vajalikud parameetrid agregaadi valikuks, plafoonide asetus koos seadea ... Rohkem

Kasutaja ikoon ID63115
Pakkuja profiil Väike nool paremale
1 300€ Ei ole KMKR Ei ole KMKR 12.01.2023 Vestlus (0)

Pakkumise kirjeldus:

Tere

Hinnapakkumine sisaldab kütte-, ventilatsiooni-, siseveevarustuse- ja sisekanalisatsioonisüsteemide põhiprojekti.
Kütte pakkumine sisaldab soojuskadude arvutamist dünaamilises tarkvaras, põrandküttetorude projekteerimist, magistraalide jooniseid, soojussõlme projekteerimist, põhiseadmete mahuloetelu ja seletuskirja. (vastavalt EVS:844 2022 ... Rohkem

Küsimused hanke korraldajale

Küsimus: private ID41204   10.01.2023 11:09
Kas on vaja hoone sisevõrkude projekt ainult või VK välisvõrkude projekt ehitusloa taotlemiseks on ka tarvis?
Kas maakütte projekt on juba olemas? Kui ei ole kas siis peab pakkumises olema?

Teavita reeglite rikkumisest

Korraldaja vastus: 10.01.2023 11:12

Välisvõrkude projekti ei pea olema, ehitusluba on olemas.
Maakütte projekti ei ole, selle võib pakkumisele lisada, kuid selle vist pakub maaküttepumba müüa välja nagunii ?

Teavita reeglite rikkumisest

Lisa küsimus

Lisa küsimus

Minu pakkumine

Reeglid

Pakkumise kirjelduse väli on mõeldud pakkumise detailsemaks lahti kirjutamiseks. Pikema teksti mugavaks sisestamiseks klikkige kasti paremal ülaservas oleval ikoonil.
Pakkumist tehes on keelatud postitada enda kontaktandmeid (nimi, telefon, aadress jne). Me jälgime ja analüüsime pakkumisi, et vältida pettuseid ja reeglite rikkumisi.
Rikkumise puhul kasutajakonto blokeeritakse.

 

Teisi töid samas valdkonnas

Valdkonnas "Projekteerimine" on 7 aktiivset tööd

no-img Pilt puudub

1-kordse 120 m2 elumaja põhiprojekt

Asukoht: Harjumaa, Metsanurme
Aega jäänud: 8p 8h
Tehtud pakkumisi: 4

no-img Pilt puudub

Saunamaja eelprojekt ehitusteatiseks

Asukoht: Lääne-Virumaa
Aega jäänud: 1p 8h
Tehtud pakkumisi: 3

Vanemad teated:

Vaata kõiki

Sellel veebilehel kasutatakse küpsiseid. Kasutamist jätkates nõustute küpsiste kasutamisega.

Sulge
 
Minu pakkumine

Reeglid

Pakkumise kirjelduse väli on mõeldud pakkumise detailsemaks lahti kirjutamiseks. Pikema teksti mugavaks sisestamiseks klikkige kasti paremal ülaservas oleval ikoonil.
Pakkumist tehes on keelatud postitada enda kontaktandmeid (nimi, telefon, aadress jne). Me jälgime ja analüüsime pakkumisi, et vältida pettuseid ja reeglite rikkumisi.
Rikkumise puhul kasutajakonto blokeeritakse.