+ Lisa oma töö      

Otsid ehitajat "Eramu ehitus" valdkonnast?

Parima pakkumise ja teostaja leidmiseks lisa oma töö.

Hange on lõppenud!

Võitjaks osutus kasutaja ID 72008

Korraldaja hinnang tehtud tööle

5.0
12.06.2023
Töökiirus: 12345
Kvaliteet: 12345
Hind: 12345

Kiire ja asjalik- aitas kaasa mõelda ning vastas kõikidele küsimustele. - Anu S.

Plaatvundamendi ehitus Lääne-Harju vald

ID 78145

1423 vaatamist

Prindi

  • check Pakkumiste tegemine
    kuni 07.02.2023
  • check Võitja valik kuni
    14.02.2023
  • 3 Töö teostamine
    ja hinnang
Hanke lõpp: T, 7. veebruar, 2023
Maakond: Harjumaa
Muu asula: Kersalu
Tööde algus: E, 03. aprill, 2023 (Soovituslik)
Tööde lõpp: E, 29. mai, 2023 (Soovituslik)
Ehitusmaterjalid: Töö tellija poolt
Soovin pakkumisi: Summa kogu projektile

Töö sisu

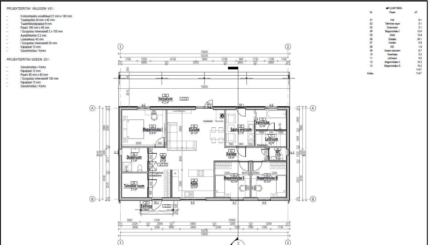
Plaatvundamendi ehitus, 135 ruutmeetrit+ terassi postide vundamentide valamisega.

Kõik vajaminevad tööd:
-Maha mõõtmine,
-Pinnase ettevalmistustööd,
-Vundamendi alust täitematerjali,
-L-elementidest ploki ja põrandaplaatide paigaldamist,
-Vundamendialuste kommunikatsioonide (kanalisatsioon, elekter jt) paigaldus ja
betooniga täitmist,
-Põrandakütte torustiku paigaldus.

- Samuti sooviks teada erinevate tööde detailset hinda, millest kujuneb lõplik hind.

Olemas VK projekt majani.

Pildid, video ja failid

Hanke korraldaja: eraisik ID72219

Pakkumised

Pakkumisi kokku: 9

Ettevõte Summa Käibemaks Lisatud Vestlus
Kasutaja ikoon ID72008
Pakkuja profiil Väike nool paremale
6 750€ KM lisandub KM lisandub 08.01.2023 Vestlus (3)
Kasutaja ikoon ID66447
Pakkuja profiil Väike nool paremale
6 200€ Ei ole KMKR Ei ole KMKR 09.01.2023 Vestlus (1)

Pakkumise kirjeldus:

Tere!
Kui on huvi minuga koostööd siis saate alati lisaküsimusi küsida
Parimat!

Kasutaja ikoon ID70448
Pakkuja profiil Väike nool paremale
6 000€ Ei ole KMKR Ei ole KMKR 09.01.2023 Vestlus (2)
Kasutaja ikoon ID72429
Pakkuja profiil Väike nool paremale
13 500€ Sisaldab KM Sisaldab KM 27.01.2023 Vestlus (0)
Kasutaja ikoon ID52293
Pakkuja profiil Väike nool paremale
12 000€ Sisaldab KM Sisaldab KM 01.02.2023 Vestlus (0)
Kasutaja ikoon ID50594
Pakkuja profiil Väike nool paremale
30 000€ KM lisandub KM lisandub 02.02.2023 Vestlus (0)

Pakkumise kirjeldus:

Tere,

Hinnapakkumine koostatud vastavalt hanke kirjeldusele.

Lgp. Taivo

Kasutaja ikoon ID61081
Pakkuja profiil Väike nool paremale
6 500€ KM lisandub KM lisandub 03.02.2023 Vestlus (0)

Pakkumise kirjeldus:

Tere. Hind on tööraha hanke kirjeldusele.

Kasutaja ikoon ID72428
Pakkuja profiil Väike nool paremale
12 000€ Sisaldab KM Sisaldab KM 05.02.2023 Vestlus (0)

Pakkumise kirjeldus:

Tere.

Tööraha.

Terv

Kasutaja ikoon ID70424
Pakkuja profiil Väike nool paremale
40 000€ Ikoon kell KM lisandub KM lisandub 05.02.2023 Vestlus (0)

Pakkumise kirjeldus:

Saab tasuda ka mingi osa sularahana

Küsimused hanke korraldajale

Küsimus: private ID59528   09.01.2023 08:38
Tere,

Oleme spetsialiseerunud katuste ehitusele, seega uuriksin kas olete huvitataud ka katuse ehituse hinnast ?

Parimat,

Erik

Teavita reeglite rikkumisest

Korraldaja vastus: 09.01.2023 20:03

Tere,

Hetkel jääb katuse paigaldus juuni/juuli- hetkel ei oska öelda kuupäevasid ega materjali mida soovime paigaldada. Aga sisuliselt võite pakkumise teha ning me kindlasti kaalume seda.

Anu

Teavita reeglite rikkumisest

Küsimus: private ID72240   09.01.2023 17:51
Tere oleks vaja vundamendi lõiget ,kuna on erinevaid eps vundamedi lahendusi. Mõni töömahukam.

Teavita reeglite rikkumisest

Korraldaja vastus: 09.01.2023 20:02

Tere,

Vundamendi plaan:
-Armeeritud betoon ääreelementide ja paksendustega kandeseinte all 100 mm (põrandaküttetorud sees)
- Vee- ja radoonikindel membraan (nt. Grace Preprufe 160 R)
- Soojustus, vahtpolüstüreen EPS100 Silver 3x100=300 mm (λ£0,031W/(mK) (soojavee torud on ülemise soojustuse kihi sees)
- Tihendatud mineraalne alus min 350 mm.

Eraldi vundamendi ristlõike plaani ei ole aga lisasin hankele juurde terve maja ristlõike kus on vundamendi osa ka näha kollaselt märgitult.

Teavita reeglite rikkumisest

Küsimus: private ID72240   09.01.2023 20:25
Vundamendi välimine äär tuleks siis silluse tehnoloogial ja põrand 1x armeeringuga. Üks küsimus kas kopa(traktor) tõõd on teil materjali alla mõeldud

Teavita reeglite rikkumisest

Korraldaja vastus: 10.01.2023 19:33

Välimine äär on planeeritud praegu Bendersi soklisüsteemina- betoon valatakse soklielemendi ja EPS plaatide vahelisele tekkivale alale- mis tekitab kandvale seinale toetuspinna. 1x armeering EPS peale.

Arhitekt on jätnud jooniselt välja välisperimeetri soojustuse- planeeritud 1,2m laiune EPS120 100mm.
Pinnas- 1,5-2m muld, moreen; 2-20m lubjakivi/savikas- olenevalt asukohast on paekivi isegi lähemal kui 1,5m.
Planeeritava maja asukohas on kunagi olnud hoone milest on jäänud pinnas väga kiviseks (kruusa/mulla segu).

Kopp(traktor) ei ole materjali all mõeldud.

Teavita reeglite rikkumisest

Küsimus: private ID72240   09.01.2023 20:41
? Kas perimeetri eps pole vajalik,mida joonisel pole näha .Millise pinnasega on tegemist.

Teavita reeglite rikkumisest

Korraldaja vastus: 10.01.2023 19:33

Vastasin nendele küsimustele eelmise küsimuse all.

Teavita reeglite rikkumisest

Lisa küsimus

Lisa küsimus

Minu pakkumine

Reeglid

Pakkumise kirjelduse väli on mõeldud pakkumise detailsemaks lahti kirjutamiseks. Pikema teksti mugavaks sisestamiseks klikkige kasti paremal ülaservas oleval ikoonil.
Pakkumist tehes on keelatud postitada enda kontaktandmeid (nimi, telefon, aadress jne). Me jälgime ja analüüsime pakkumisi, et vältida pettuseid ja reeglite rikkumisi.
Rikkumise puhul kasutajakonto blokeeritakse.

 

Vanemad teated:

Vaata kõiki

Sellel veebilehel kasutatakse küpsiseid. Kasutamist jätkates nõustute küpsiste kasutamisega.

Sulge
 
Minu pakkumine

Reeglid

Pakkumise kirjelduse väli on mõeldud pakkumise detailsemaks lahti kirjutamiseks. Pikema teksti mugavaks sisestamiseks klikkige kasti paremal ülaservas oleval ikoonil.
Pakkumist tehes on keelatud postitada enda kontaktandmeid (nimi, telefon, aadress jne). Me jälgime ja analüüsime pakkumisi, et vältida pettuseid ja reeglite rikkumisi.
Rikkumise puhul kasutajakonto blokeeritakse.