+ Lisa oma töö      

Otsid ehitajat "Projekteerimine" valdkonnast?

Parima pakkumise ja teostaja leidmiseks lisa oma töö.

Hange on lõppenud!

Võitjaks osutus kasutaja ID 66602

Korraldaja hinnang tehtud tööle

5.0
09.02.2023
Töökiirus: 12345
Kvaliteet: 12345
Hind: 12345

Tänan asjaliku ja proaktiivse koostöö eest. - Kristi J.

Elektriprojekt elamule ja abihoonele

ID 77801

1770 vaatamist

Prindi

  • check Pakkumiste tegemine
    kuni 10.12.2022
  • check Võitja valik kuni
    17.12.2022
  • 3 Töö teostamine
    ja hinnang
Hanke lõpp: L, 10. detsember, 2022
Maakond: Tartumaa
Linn: Tartu
Tööde algus: E, 12. detsember, 2022 (Soovituslik)
Tööde lõpp: N, 12. jaanuar, 2023 (Soovituslik)
Ehitusmaterjalid: Töö tellija poolt
Soovin pakkumisi: Summa kogu projektile

Töö sisu

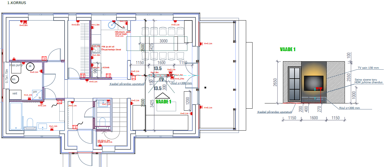
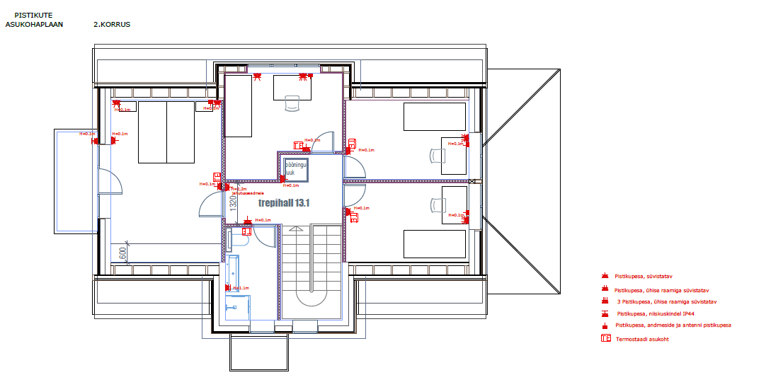
Soovin elektriprojekti (elektrivarustus, elektrikilp, pistikupesad, valgustid, lülitid, signalisatsioon (valve, suitsuandurid), internet). Olemas soovitud pistikupesade, lülitite, valgustite ja termostaatide asukohad elumajale (dwg-s).

Maja välisseinad on bauroc 250, kandvad siseseinad bauroc 200 ja mittekandvad bauroc 150. Lisaks on elutoas metall- või puitkarkassil kipsist telekasein, kuhu tuleb vedada vool ja side. Maakütte-elekter on kütteallikas, elektriboiler on ka. Eramu küttevõimsus: 103-PK Q=6 kW (40/35°C) põrandküte, soojaveevarustus 8/50/55ºC. Soe vesi valmistatakse sama soojuspumbaga mahtboileriga, mis kuulub soojuspumba komplekti. Tuleb projekteerida ka kaabel liitumiskilbist majani.

Abihoonesse on vaja voolu valgustitele kuuris, auto varjualuses, kinnises ruumis (2tk), terrassil ja prügiruumi kohal välisseinal (kokku 6tk valgusteid, 5 tk lüliteid). Pistikupesad kinnises ruumis (4tk kraaniga seina, 2tk sissepääsust paremale), auto varjualuses 2tk ja terrassil 2 tk (kokku 10tk pistikupesasid, neist 4tk õues).

Tehnilised tingimused:
• Tarbimiskoha liitumispunkt Elektrileviga asub kinnistul liitumiskilbis, mis on alajaamast ca 40m kaugusel • Olemasoleva peakaitsme nimivool - 3x20A A. • Minimaalne 1-faasiline lühisvool - 3,0 kA.

Palun hinda ja tähtaega.
Oleme iga hetk valmis ehitusega alustama.

Pildid, video ja failid

Hanke korraldaja: eraisik ID69265

Pakkumised

Pakkumisi kokku: 7

Ettevõte Summa Käibemaks Lisatud Vestlus
Kasutaja ikoon ID59037
Pakkuja profiil Väike nool paremale
1 150€ Ei ole KMKR Ei ole KMKR 05.12.2022 Vestlus (4)

Pakkumise kirjeldus:

Tere,
Teostan pakkumise hoone tugevoolu ja nõrkvoolu osadele.

Projekti kuulub elektri tugevvoolu paigaldise osa alatest Elektrilevi liitumiskilbist. sh: elektrikilbi joonis, pistikud, maanduspaigaldis, lülitite ja valgustite asukohad ( vastavalt kliendi soovile) toitekohad seadmetele ( nt õhksoojuspump ) .
Nõrkvoolu osa sisaldab, vastavalt kliendi s ... Rohkem

Kasutaja ikoon ID31470
Pakkuja profiil Väike nool paremale
1 700€ Ikoon kell KM lisandub KM lisandub 07.12.2022 Vestlus (2)

Pakkumise kirjeldus:

Tere, teeme pakkumise tugev- ja nõrkvoolu sise ning välispaigaldiste põhiprojektidele. Tugevvoolu siseosa pea- ja kõrvalhoone koos väljas paiknevate toitekaablitega 800+km, sidepaigaldise välisosa, koos Telia tehniliste tingimustega + kooskõlastamine 400+km (sisaldab Telia teenustasusid), tugevvoolupaigaldise siseosa pea ja kõrvalhoone 600+km ning n ... Rohkem

Kasutaja ikoon ID44421
Pakkuja profiil Väike nool paremale
1 000€ Sisaldab KM Sisaldab KM 08.12.2022 Vestlus (0)

Pakkumise kirjeldus:

Töö põhjalik ja kvaliteetne. Personaalne lähenemise Teie perele parima lahenduse leidmiseks. A-pädevus. Kuni 2 nädalat koos soovituste ja võimalike muudatustega.

Kasutaja ikoon ID34425
Pakkuja profiil Väike nool paremale
1 250€ KM lisandub KM lisandub 09.12.2022 Vestlus (0)

Pakkumise kirjeldus:

Tere

Pakkumine sisaldab tugevvoolu kui ka nõrkvooluosa. Kui kohe eeltöödega alustada ja kogu info käes, saaks projekti koostamisega alugust tegema hakata. Projekti taha tööd ei tohiks seisma jääda.

Kasutaja ikoon ID66602
Pakkuja profiil Väike nool paremale
870€ Ikoon kell Sisaldab KM Sisaldab KM 10.12.2022 Vestlus (3)

Pakkumise kirjeldus:

Esitan hinnapakkumise projekteerimistööle põhiprojekti staadiumis, mis sisaldab: 1) jõupaigaldist 2) valguspaigaldist 3) maanduspaigaldist 4) vajadusel piksekaitset 5) kilbijoonist 6) nõrkvoolu (sidevõrk ja -pistikud, valve- ja suitsuandurid) 7) el.varustust alates LK-st.

Töö teostamiseks vajalikud esialgsed lähteandmed Tellijalt: 1) hoone plaan ... Rohkem

Kasutaja ikoon ID69314
Pakkuja profiil Väike nool paremale
750€ Ei ole KMKR Ei ole KMKR 10.12.2022 Vestlus (0)

Pakkumise kirjeldus:

Tere

Pakkumise sisu:
Hoonete elektripaigaldise sise- ning välisosa.
Nõrkvoolusüsteemid vastavalt hanke kirjeldusele.
Liitumine telekommunikatsiooni võrgu valdaja sidekanalisatsiooniga.
Projekti koostamise tähtaeg on jaanuari keskel.
Teie poolt palun tagada plaanid ning kehtiva geodeesia dwg kujul.

Pakkumises on arvestatud, et sidetoru on v ... Rohkem

Kasutaja ikoon ID59883
Pakkuja profiil Väike nool paremale
1 100€ Sisaldab KM Sisaldab KM 10.12.2022 Vestlus (0)

Pakkumise kirjeldus:

Pakkumine vastavalt hankes soovitule.

Erinevate osapoolte kooskõlastused, näiteks elektrileviga, lisanduvad hinnale.

Tellijalt vajame alusplaane . dwg formaadis.

Kogu lähteinfo kiirel saamisel on projekti valmimise lõpptähtaeg Jaanuari esimese nädala sees.

Küsimused hanke korraldajale

Küsimus: private ID66602   07.12.2022 21:10
Kas projektiga peab olema lahendatud liitumine telekommunikatsiooni võrguga?

Teavita reeglite rikkumisest

Korraldaja vastus: 08.12.2022 09:55

Tere!
Jah, peaks küll.

Teavita reeglite rikkumisest

Küsimus: private ID66602   08.12.2022 11:59
Kas on olemas telekommunikatsioonivõrgu operaatori väljastatud tehnilised tingimused?

Teavita reeglite rikkumisest

Korraldaja vastus: 09.12.2022 06:12

Taotlus on sisse antud.

Teavita reeglite rikkumisest

Küsimus: private ID66602   09.12.2022 09:21
Asendiplaani väljavõte pealt paistab, et sidekanalisatsioonist läheb juba tee alt mingi väljavõte, kas teil on infot selle kohta ning kas seda saab kasutada?

Teavita reeglite rikkumisest

Korraldaja vastus: 10.12.2022 11:51

See peaks olema detailplaneeringu tehnovõrkude joonis. See on mul ka olemas dwg kujul.

Teavita reeglite rikkumisest

Lisa küsimus

Lisa küsimus

Minu pakkumine

Reeglid

Pakkumise kirjelduse väli on mõeldud pakkumise detailsemaks lahti kirjutamiseks. Pikema teksti mugavaks sisestamiseks klikkige kasti paremal ülaservas oleval ikoonil.
Pakkumist tehes on keelatud postitada enda kontaktandmeid (nimi, telefon, aadress jne). Me jälgime ja analüüsime pakkumisi, et vältida pettuseid ja reeglite rikkumisi.
Rikkumise puhul kasutajakonto blokeeritakse.

 

Teisi töid samas valdkonnas

Valdkonnas "Projekteerimine" on 6 aktiivset tööd

no-img Pilt puudub

1-kordse 120 m2 elumaja põhiprojekt

Asukoht: Harjumaa, Metsanurme
Aega jäänud: 8p 19h
Tehtud pakkumisi: 4

no-img Pilt puudub

Saunamaja eelprojekt ehitusteatiseks

Asukoht: Lääne-Virumaa
Aega jäänud: 1p 19h
Tehtud pakkumisi: 3

Vanemad teated:

Vaata kõiki

Sellel veebilehel kasutatakse küpsiseid. Kasutamist jätkates nõustute küpsiste kasutamisega.

Sulge
 
Minu pakkumine

Reeglid

Pakkumise kirjelduse väli on mõeldud pakkumise detailsemaks lahti kirjutamiseks. Pikema teksti mugavaks sisestamiseks klikkige kasti paremal ülaservas oleval ikoonil.
Pakkumist tehes on keelatud postitada enda kontaktandmeid (nimi, telefon, aadress jne). Me jälgime ja analüüsime pakkumisi, et vältida pettuseid ja reeglite rikkumisi.
Rikkumise puhul kasutajakonto blokeeritakse.