+ Lisa oma töö      

Otsid ehitajat "Ehitusprojektid" valdkonnast?

Parima pakkumise ja teostaja leidmiseks lisa oma töö.

Projekt õhksoojuspumba ehitusteatise juurde

ID 77226

1590 vaatamist

Prindi

  • check Pakkumiste tegemine
    kuni 30.10.2022
  • check Võitja valik kuni
    06.11.2022
  • 3 Töö teostamine
    ja hinnang
Hanke lõpp: P, 30. oktoober, 2022
Maakond: Tartumaa
Linn: Tartu
Tööde algus: N, 27. oktoober, 2022 (Soovituslik)
Tööde lõpp: E, 31. oktoober, 2022
Ehitusmaterjalid: Töö tellija poolt
Soovin pakkumisi: Summa kogu projektile

Töö sisu

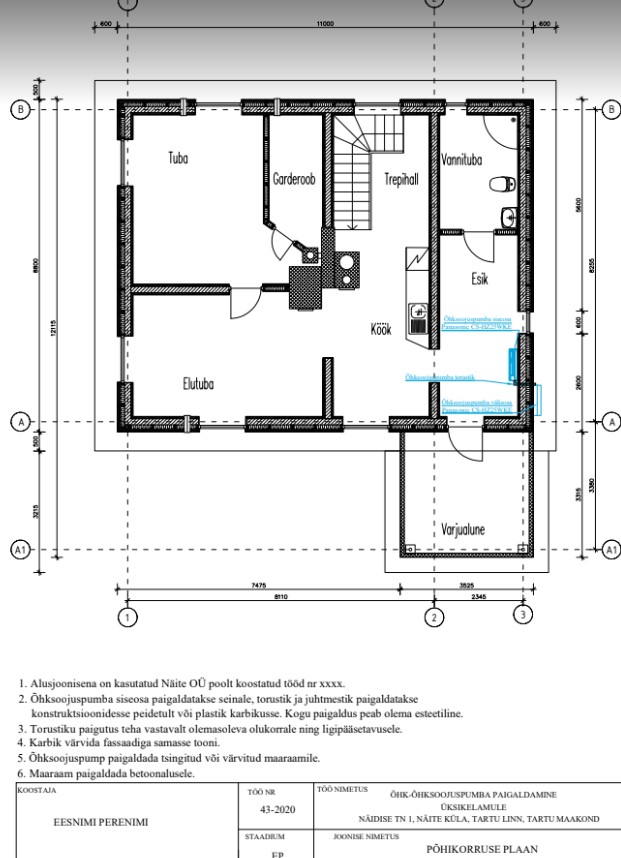
Vaja on seadustada õhksoojuspumba paigaldus. Puudu on projekt, mida ehitisteatisele lisada.
Tegu on ridaelamuboksiga.

Pildid, video ja failid

Hanke korraldaja: eraisik ID71618

Pakkumised

Pakkumisi kokku: 6

Ettevõte Summa Käibemaks Lisatud Vestlus
Kasutaja ikoon ID71418
Pakkuja profiil Väike nool paremale
1 200€ Sisaldab KM Sisaldab KM 27.10.2022 Vestlus (0)
Kasutaja ikoon ID42152
Pakkuja profiil Väike nool paremale
350€ Ei ole KMKR Ei ole KMKR 27.10.2022 Vestlus (0)

Pakkumise kirjeldus:

Ehitusprojekt eluruumi küttesüsteemi ümberehitamiseks eelprojekti staadiumis.
Pakkumsihind sisaldab:
Seletuskiri
Asendiskeem (Maa-ameti ortofotol)
Korruse plaan
Hoone vaade soojuspumba paiknemisega fassaadil

Kooskõlastused ehitusteatise registreerimiseks
Ehitusteatise esitamine KOV
Ehitusteatise registreerimine KOV

Riigilõivuvaba

Kasutaja ikoon ID62360
Pakkuja profiil Väike nool paremale
400€ Ei ole KMKR Ei ole KMKR 28.10.2022 Vestlus (0)

Pakkumise kirjeldus:

Ehitusprojekt sisaldab:
-Põhiplaan
-Asendiplaan
-Struktuurskeem
-Vaated
-Läbiviigu lõige
-Seletuskiri

Pakkumine kehtib eeldustel:
-Arhitektuurne alus projekt .dwg formaadis
-Fotod (kui pump juba paigas)
-Kui puuduvad arhitektuursed vaated siis esitatakse ''vaated'' fotoviitena.

Ehitusteatise koostamine ja esitamine KOV.

Tööga saaks alu ... Rohkem

Kasutaja ikoon ID28768
Pakkuja profiil Väike nool paremale
600€ KM lisandub KM lisandub 28.10.2022 Vestlus (0)

Pakkumise kirjeldus:

Pakkumuse maksumuses on arvestatud et Tellijal on olemas nii hoone alusplaan (dwg) kui ka vajadusel kehtiv asendiplaan (dwg) juhuks kui kohalik omavalitsus peaks seda menetluse käigus nõudma.

Kasutaja ikoon ID37465
Pakkuja profiil Väike nool paremale
550€ Ei ole KMKR Ei ole KMKR 28.10.2022 Vestlus (0)

Pakkumise kirjeldus:

Tere

Selleks on vaja koostada joonised ja need läbi ehitusregistri kohaliku omavalitusesega kooskõlastada.

Pakkumine sisaldab.
-Vajalikke jooniseid
-Ehitusteatist ja kooskõlastust kohaliku omavalitsusega.

Võimalik murekoht võib olla see, et kui soojuspumba välisosa jääb linnapilti, siis kohalikule omavalitsusele ei pruugi see meeldida ning ... Rohkem

Kasutaja ikoon ID48142
Pakkuja profiil Väike nool paremale
500€ KM lisandub KM lisandub 28.10.2022 Vestlus (0)

Pakkumise kirjeldus:

Hind õhksoojuspumba paigaldusprojektile KOVst heakskiidu saamiseks - 500€.

Tööga saab alustada kohe, kui kõik vajalikud lähteandmed olemas.

Töö valmib hiljemalt nädala jooksul.

Tasumine ühes osas projekti valmimisel.

Kui on olemas ridaelamuboksi korruse plaan, siis võime teha soodsama hinnapakkumise.

Küsimused hanke korraldajale

Hanke korraldajale ei ole veel küsimusi esitatud.

Lisa küsimus

Lisa küsimus

Minu pakkumine

Reeglid

Pakkumise kirjelduse väli on mõeldud pakkumise detailsemaks lahti kirjutamiseks. Pikema teksti mugavaks sisestamiseks klikkige kasti paremal ülaservas oleval ikoonil.
Pakkumist tehes on keelatud postitada enda kontaktandmeid (nimi, telefon, aadress jne). Me jälgime ja analüüsime pakkumisi, et vältida pettuseid ja reeglite rikkumisi.
Rikkumise puhul kasutajakonto blokeeritakse.

 

Teisi töid samas valdkonnas

Valdkonnas "Ehitusprojektid" on 5 aktiivset tööd

no-img Pilt puudub

Kortermaja kõigi ruumide mõõdistamine ja DWG faili koostamine

Asukoht: Harjumaa, Tallinn
Aega jäänud: 2p 6h
Tehtud pakkumisi: 2

Korterelamu mõõdistusprojekti koostamine ja jooniste digitaliseerimine

Asukoht: Lääne-Virumaa, Tapa
Aega jäänud: 5p 6h
Tehtud pakkumisi: 2

Vanemad teated:

Vaata kõiki

Sellel veebilehel kasutatakse küpsiseid. Kasutamist jätkates nõustute küpsiste kasutamisega.

Sulge
 
Minu pakkumine

Reeglid

Pakkumise kirjelduse väli on mõeldud pakkumise detailsemaks lahti kirjutamiseks. Pikema teksti mugavaks sisestamiseks klikkige kasti paremal ülaservas oleval ikoonil.
Pakkumist tehes on keelatud postitada enda kontaktandmeid (nimi, telefon, aadress jne). Me jälgime ja analüüsime pakkumisi, et vältida pettuseid ja reeglite rikkumisi.
Rikkumise puhul kasutajakonto blokeeritakse.