+ Lisa oma töö      

Otsid ehitajat "Projekteerimine" valdkonnast?

Parima pakkumise ja teostaja leidmiseks lisa oma töö.

Hange on lõppenud!

Võitjaks osutus kasutaja ID 46826

Projekteerija / AutoCad joonestaja

ID 76774

1072 vaatamist

Prindi

  • check Pakkumiste tegemine
    kuni 08.10.2022
  • check Võitja valik kuni
    15.10.2022
  • 3 Töö teostamine
    ja hinnang
Hanke lõpp: L, 8. oktoober, 2022
Maakond: Järvamaa
Muu asula: Koeru
Tööde algus: E, 10. oktoober, 2022 (Soovituslik)
Tööde lõpp: E, 10. aprill, 2023 (Soovituslik)
Ehitusmaterjalid: Töö tellija poolt
Soovin pakkumisi: Tüki- või ühikuhinda

Töö sisu

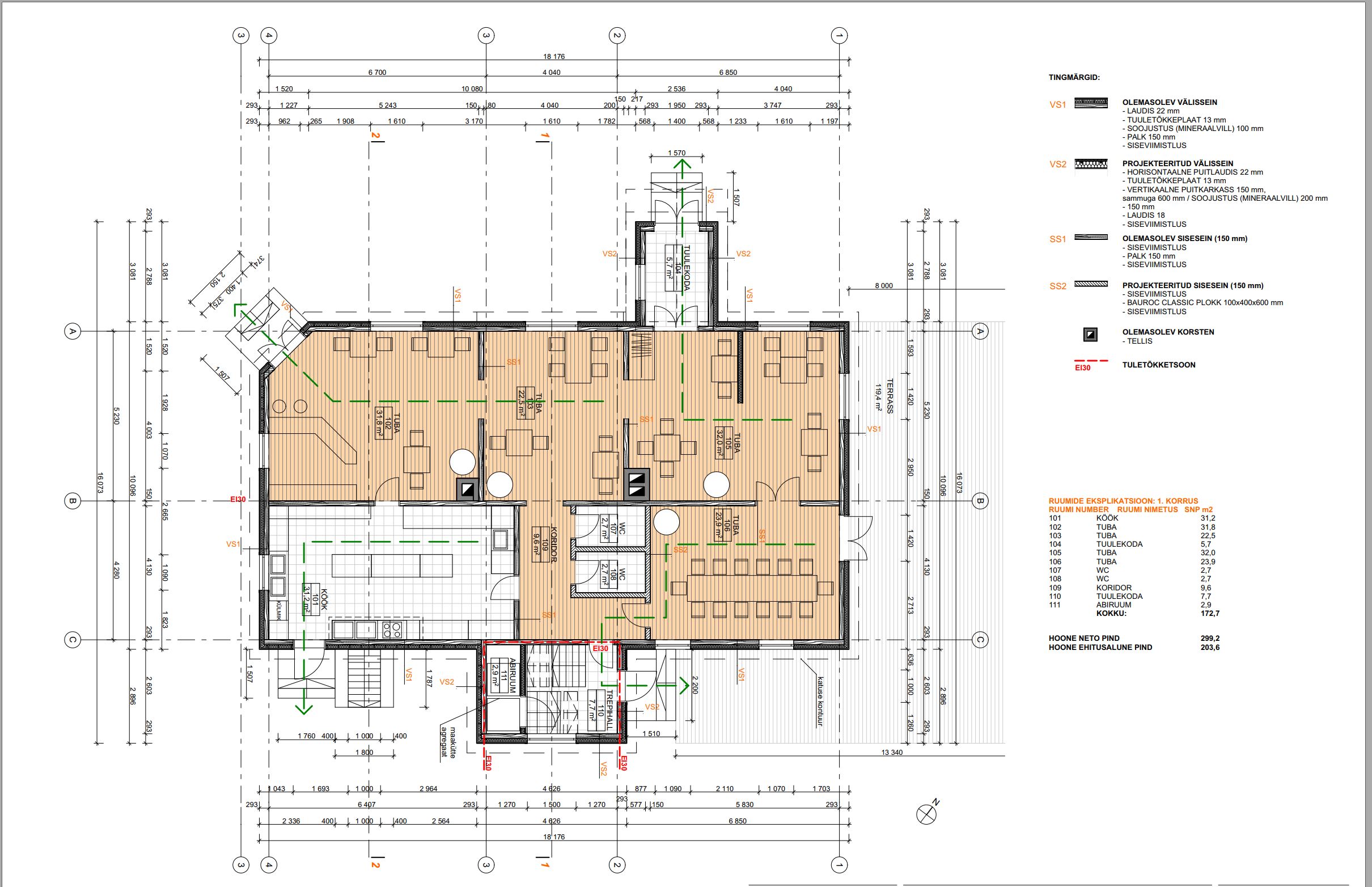
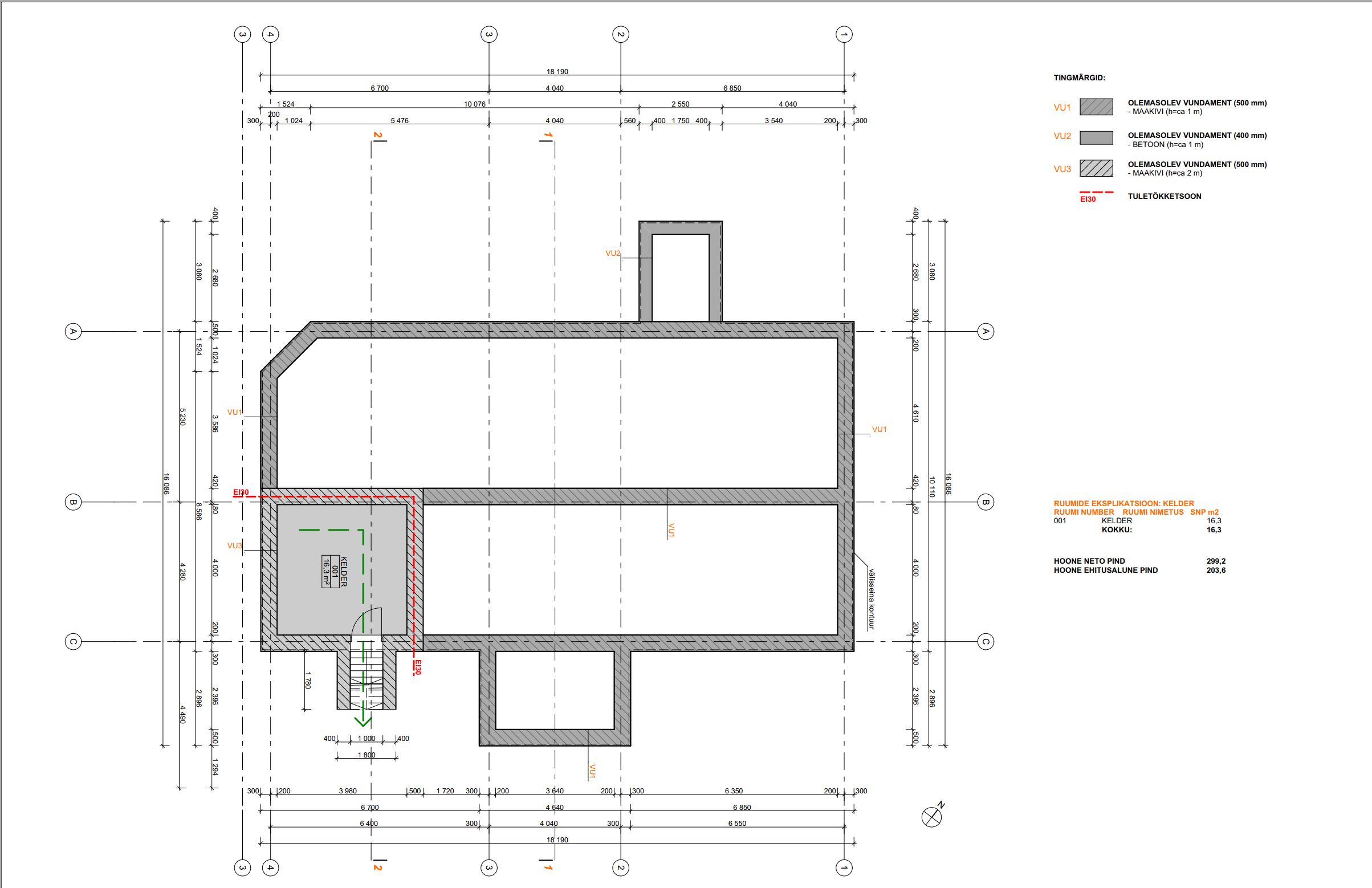
Järvamaal, Koeru alevikus asuvale objektile on vaja leida projekteerija, kes joonestaks eelprojektile töö käigus tehtud muudatused, vajalikud tehnilised sõlmed ning vormistaks eelprojekti baasilt tööprojekti, mis hiljem omavalitsusele maja vastuvõtmiseks esitada.
1.Eelprojekt on olemas nii pdf kui ka dwg formaadis.
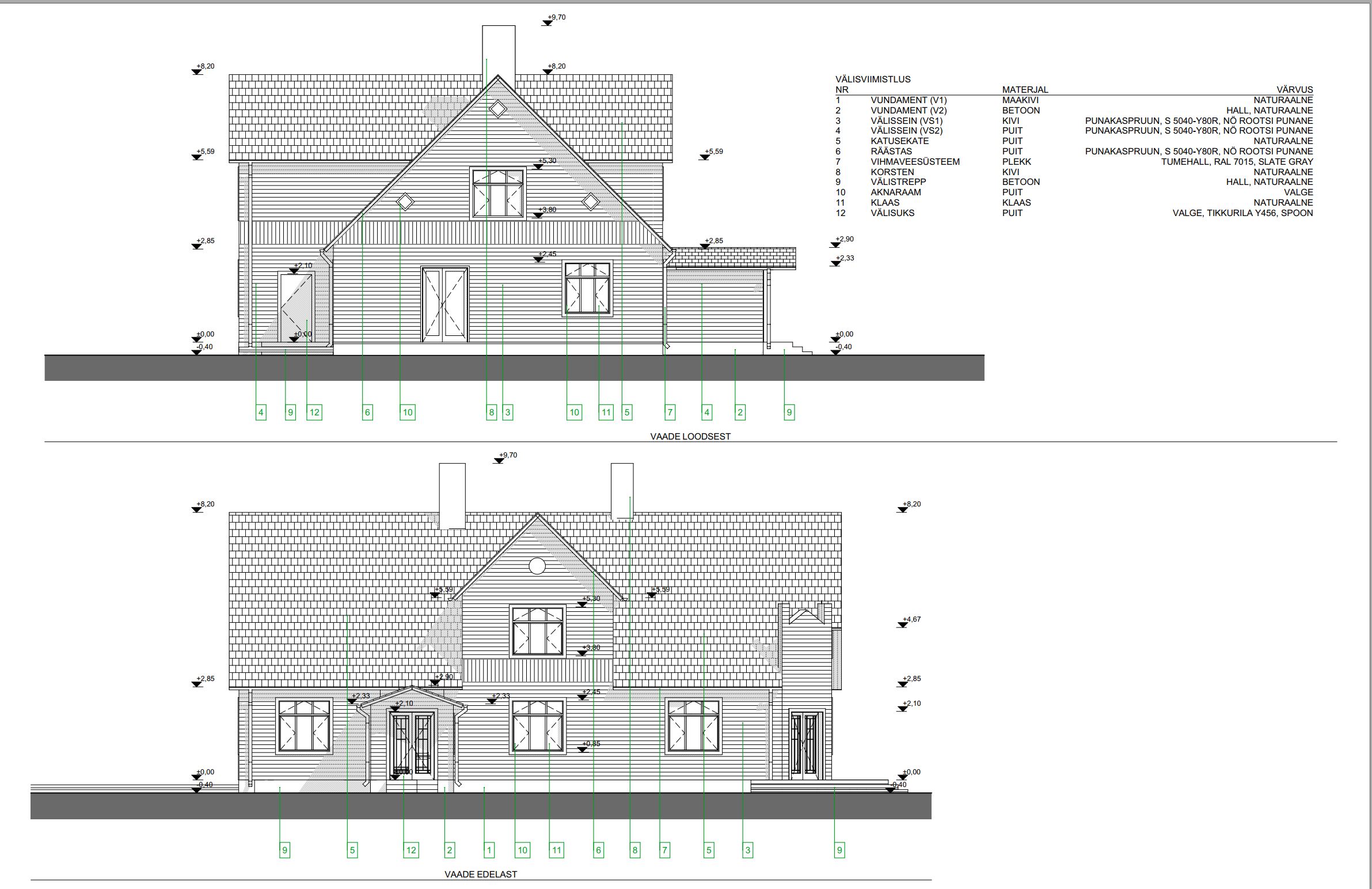
2.Tegemist on kahekordse rõhtpalkmajaga, mida rekonstrueeritakse.
3.Hoone otstarve on toitlustusasutus, teisel korrusel külalistoad.
4.Ehitusluba on olemas.
5.Projektidest on olemas kütte-, jahutuse-, ventilatsiooni,- vee- ja kanalisatsiooniprojektid, elektriprojekt on koostamisel.
6.Majale on paigaldatud uus laastukatus, taastatud korstnaotsad.
7.Tellija ja ehitaja on ühes isikus.
8.Ehitustööde lõpp on planeeritud 12-24 kuu jooksul.
9.Pakkumine teha tunnihinna alusel, vajadusel võime läbirääkimiste jooksul enne tööde alustamist leppida kokku ka kogu projekti lõpphinna.

Pildid, video ja failid

Hanke korraldaja: ettevõte ID68750

Pakkumised

Pakkumisi kokku: 3

Ettevõte Summa Käibemaks Lisatud Vestlus
Kasutaja ikoon ID42152
Pakkuja profiil Väike nool paremale
50€ Ei ole KMKR Ei ole KMKR 05.10.2022 Vestlus (0)

Pakkumise kirjeldus:

Pakkumine tunnipõhise hinnaga

Kasutaja ikoon ID53569
Pakkuja profiil Väike nool paremale
35€ Ei ole KMKR Ei ole KMKR 07.10.2022 Vestlus (0)

Pakkumise kirjeldus:

Hind vastavalt eelkirjeldatud soovile.

Tõid teostab diplomeeritud ehitusinsener.

Kasutaja ikoon ID46826
Pakkuja profiil Väike nool paremale
25€ Ei ole KMKR Ei ole KMKR 08.10.2022 Vestlus (0)

Pakkumise kirjeldus:

Joonestamise tunnihinne 25 eur/h
Tase 7 ehitusinseneri ja tase 7 arhitekti projektide koostamine

Küsimused oodatud

Küsimused hanke korraldajale

Hanke korraldajale ei ole veel küsimusi esitatud.

Lisa küsimus

Lisa küsimus

Minu pakkumine

Reeglid

Pakkumise kirjelduse väli on mõeldud pakkumise detailsemaks lahti kirjutamiseks. Pikema teksti mugavaks sisestamiseks klikkige kasti paremal ülaservas oleval ikoonil.
Pakkumist tehes on keelatud postitada enda kontaktandmeid (nimi, telefon, aadress jne). Me jälgime ja analüüsime pakkumisi, et vältida pettuseid ja reeglite rikkumisi.
Rikkumise puhul kasutajakonto blokeeritakse.

 

Teisi töid samas valdkonnas

Valdkonnas "Projekteerimine" on 6 aktiivset tööd

no-img Pilt puudub

1-kordse 120 m2 elumaja põhiprojekt

Asukoht: Harjumaa, Metsanurme
Aega jäänud: 8p 14h
Tehtud pakkumisi: 4

no-img Pilt puudub

Saunamaja eelprojekt ehitusteatiseks

Asukoht: Lääne-Virumaa
Aega jäänud: 1p 14h
Tehtud pakkumisi: 3

Vanemad teated:

Vaata kõiki

Sellel veebilehel kasutatakse küpsiseid. Kasutamist jätkates nõustute küpsiste kasutamisega.

Sulge
 
Minu pakkumine

Reeglid

Pakkumise kirjelduse väli on mõeldud pakkumise detailsemaks lahti kirjutamiseks. Pikema teksti mugavaks sisestamiseks klikkige kasti paremal ülaservas oleval ikoonil.
Pakkumist tehes on keelatud postitada enda kontaktandmeid (nimi, telefon, aadress jne). Me jälgime ja analüüsime pakkumisi, et vältida pettuseid ja reeglite rikkumisi.
Rikkumise puhul kasutajakonto blokeeritakse.