+ Lisa oma töö      

Otsid ehitajat "Tänavakivide paigaldus" valdkonnast?

Parima pakkumise ja teostaja leidmiseks lisa oma töö.

Sillutiskivi ning äärekivi paigaldus

ID 76728

532 vaatamist

Prindi

  • check Pakkumiste tegemine
    kuni 10.10.2022
  • check Võitja valik kuni
    17.10.2022
  • 3 Töö teostamine
    ja hinnang
Hanke lõpp: E, 10. oktoober, 2022
Maakond: Harjumaa
Muu asula: Tammneeme
Tööde algus: E, 03. oktoober, 2022 (Soovituslik)
Tööde lõpp: L, 31. detsember, 2022 (Soovituslik)
Ehitusmaterjalid: Töö tegija poolt
Soovin pakkumisi: Summa kogu projektile

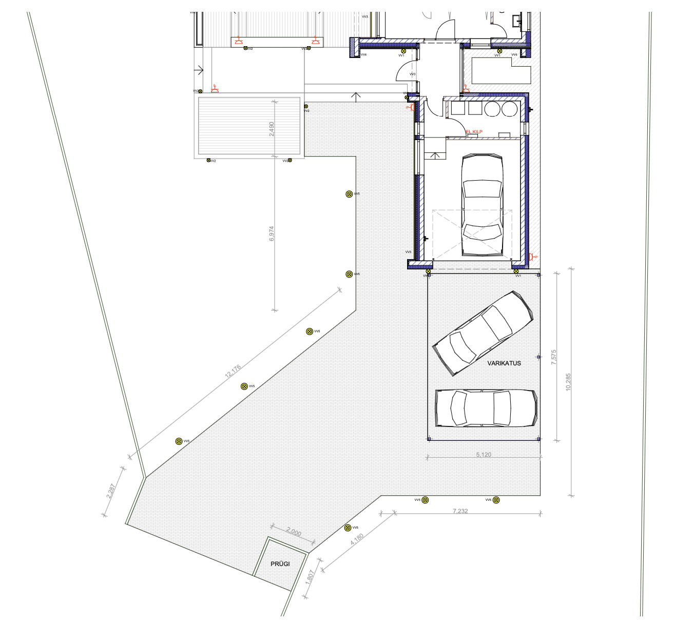
Töö sisu

Palun hinnapakkumist sillutiskivi ning äärekivi paigaldusele koos materjaliga.
Millal oleks võimalik töid alustada?
Kokku sillutiskivi 186m2.
Soov on musta värvi, faasita kivi järgi, näiteks Kartano 80

Pakkumine peab sisaldama aluspõhja rajamist:
- pinnase väljakaeve, vajadusel - ladustamine krundil
- täitematerjal - killustik/kruus (täpsustada pakkumises)
- tihendamine
- tasanduskihi rajamist
- kivide vuugivahede täidet
- kallete rajamist sadevee kanalisse

Pildid, video ja failid

Hanke korraldaja: eraisik ID58477

Pakkumised

Pakkumisi kokku: 4

Ettevõte Summa Käibemaks Lisatud Vestlus
Kasutaja ikoon ID50594
Pakkuja profiil Väike nool paremale
18 600€ KM lisandub KM lisandub 09.10.2022 Vestlus (0)

Pakkumise kirjeldus:

Tere,

Hinnapakkumine koostatud vastavalt hanke kirjeldusele.
Võimalus tasuda osaliselt ilma KM.

Lgp. Taivo

Kasutaja ikoon ID71052
Pakkuja profiil Väike nool paremale
17 900€ Ei ole KMKR Ei ole KMKR 10.10.2022 Vestlus (0)

Pakkumise kirjeldus:

Pakkumise sisu vastavalt hanke korraldaja selgitustele.

Parimat soovides,

Kasutaja ikoon ID21484
Pakkuja profiil Väike nool paremale
16 000€ Sisaldab KM Sisaldab KM 10.10.2022 Vestlus (0)

Pakkumise kirjeldus:

Tere

Hind sisaldab väljakaevet, ladustamist objektil, killustikaluse rajamist ca 20 cm, kõrguste andmist, tihendamist, musta äärekivi koos paigaldusega, betooni, kiviliiva, musta kartanokivi faasita koos paigaldusega, liiva, kõike vajalikku tehnikat. Töö võtab aega max 4 tööpäeva, kogemus 24 aastat, tööle garantii. Töö saab teostada oktoobr ... Rohkem

Kasutaja ikoon ID70516
Pakkuja profiil Väike nool paremale
16 300€ Sisaldab KM Sisaldab KM 10.10.2022 Vestlus (0)

Pakkumise kirjeldus:

Tere,

Pakkumine sisaldab:
- Kartano 80 kivi, must värvus
- äärekivi, must värvus+ äärekivi betoon
- Väljakaevet, ladustamine krundil (soovi korral saame ka äraveo korraldada)
- 32/64 killustik+ kiviliiv
- vuugivahede täide, aluspinna ettevalmistus, kallete tegemine

Töödele garantii 2 aastat, arvega tasumise võimalus.

Küsimuste korr ... Rohkem

Küsimused hanke korraldajale

Hanke korraldajale ei ole veel küsimusi esitatud.

Lisa küsimus

Lisa küsimus

Minu pakkumine

Reeglid

Pakkumise kirjelduse väli on mõeldud pakkumise detailsemaks lahti kirjutamiseks. Pikema teksti mugavaks sisestamiseks klikkige kasti paremal ülaservas oleval ikoonil.
Pakkumist tehes on keelatud postitada enda kontaktandmeid (nimi, telefon, aadress jne). Me jälgime ja analüüsime pakkumisi, et vältida pettuseid ja reeglite rikkumisi.
Rikkumise puhul kasutajakonto blokeeritakse.

 

Teisi töid samas valdkonnas

Valdkonnas "Tänavakivide paigaldus" on 4 aktiivset tööd

Kõnnitee remont

Asukoht: Harjumaa
Aega jäänud: 4p 21h
Tehtud pakkumisi: 3

Tänavakivide paigaldus

Asukoht: Harjumaa, Tallinn
Aega jäänud: 4p 21h
Tehtud pakkumisi: 1

Vanemad teated:

Vaata kõiki

Sellel veebilehel kasutatakse küpsiseid. Kasutamist jätkates nõustute küpsiste kasutamisega.

Sulge
 
Minu pakkumine

Reeglid

Pakkumise kirjelduse väli on mõeldud pakkumise detailsemaks lahti kirjutamiseks. Pikema teksti mugavaks sisestamiseks klikkige kasti paremal ülaservas oleval ikoonil.
Pakkumist tehes on keelatud postitada enda kontaktandmeid (nimi, telefon, aadress jne). Me jälgime ja analüüsime pakkumisi, et vältida pettuseid ja reeglite rikkumisi.
Rikkumise puhul kasutajakonto blokeeritakse.