+ Lisa oma töö      

Otsid ehitajat "Ehitusprojektid" valdkonnast?

Parima pakkumise ja teostaja leidmiseks lisa oma töö.

Eramu konstruktsioonide põhiprojekt

ID 76587

1021 vaatamist

Prindi

  • check Pakkumiste tegemine
    kuni 05.10.2022
  • check Võitja valik kuni
    14.10.2022
  • 3 Töö teostamine
    ja hinnang
Hanke lõpp: K, 5. oktoober, 2022
Maakond: Harjumaa
Linn: Tallinn
Tööde algus: E, 03. oktoober, 2022 (Soovituslik)
Tööde lõpp: L, 31. detsember, 2022 (Soovituslik)
Ehitusmaterjalid: Töö tegija poolt
Soovin pakkumisi: Summa kogu projektile

Töö sisu

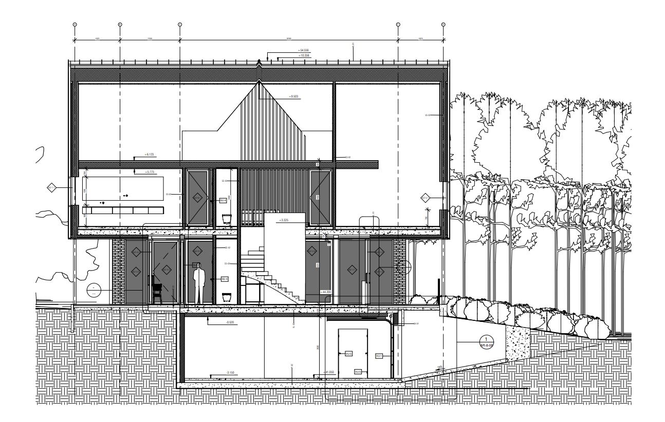
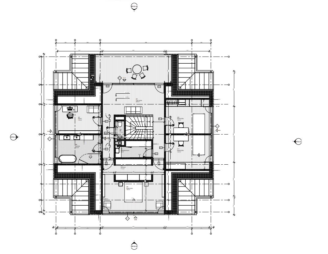
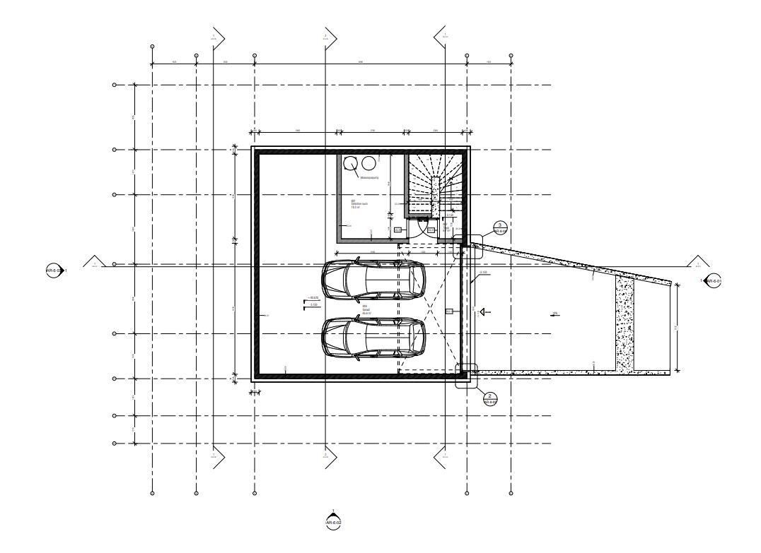
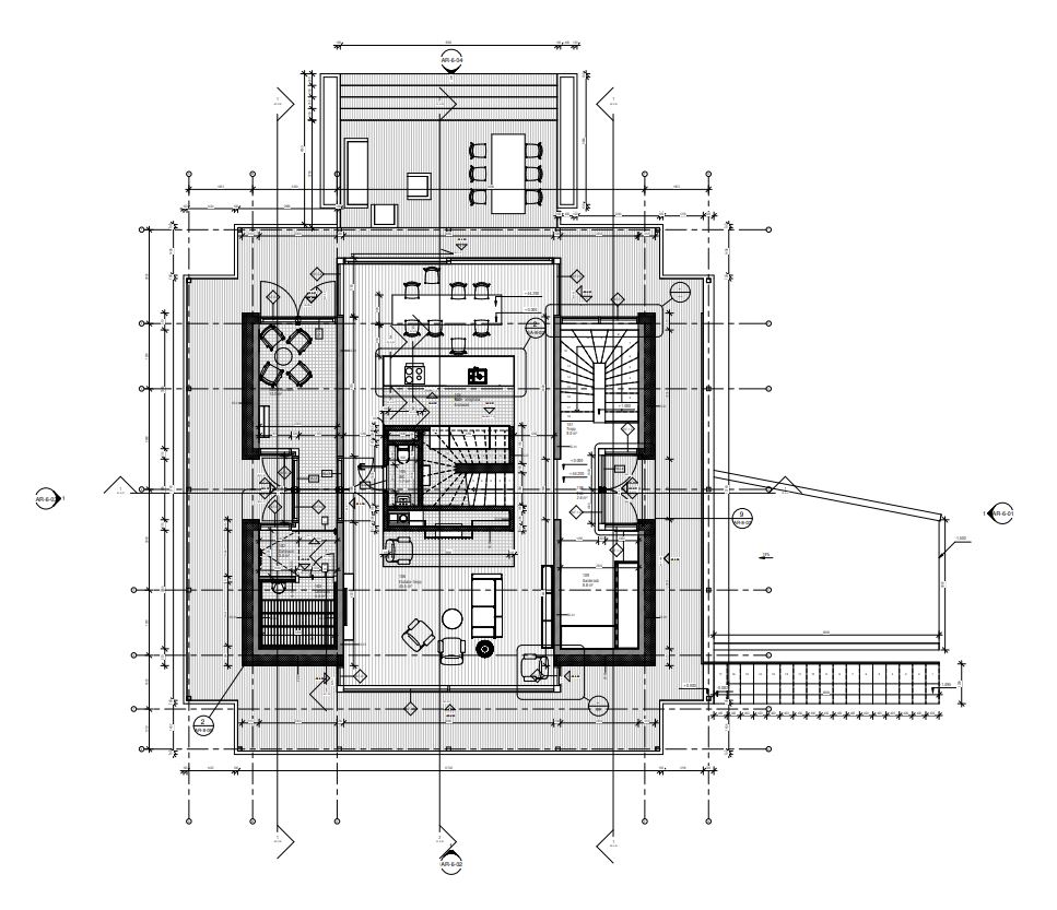
Projekteeritavale eramule on vaja koostada täismahus konstruktsioonide projekt põhiprojekti staadiumis vastavalt hetkel kehtivale standardile.

Tegu on ~300 ruutmeetrise ning 3 korruselise (1 maa-alune ning 2 maapealset) eramuga.

Lisatud on hoone vaated, lõiked ning korruste plaanid.

Hoone jaoks on koostatud põhiprojekti staadiumis juba nii arhitektuurse osa projekt (mudelis) kui ka kõikide muude eriosade projektid.

Eelistatud on, kui konstruktsioonide projekt teostatakse samuti mudelis.

Pildid, video ja failid

Hanke korraldaja: eraisik ID71212

Pakkumised

Pakkumisi kokku: 2

Ettevõte Summa Käibemaks Lisatud Vestlus
Kasutaja ikoon ID71304
Pakkuja profiil Väike nool paremale
4 200€ Ikoon kell Ei ole KMKR Ei ole KMKR 04.10.2022 Vestlus (4)

Pakkumise kirjeldus:

Hoone konstruktsiooni projekt nii tasapinnalused joonised kui ruumilised pildid konstruktdiooni osadest.
Võimalik tellida juurde tellija esindaja teenust ehituse ajaks

Kasutaja ikoon ID48870
Pakkuja profiil Väike nool paremale
4 100€ Ikoon kell Sisaldab KM Sisaldab KM 05.10.2022 Vestlus (0)

Pakkumise kirjeldus:

Tere,
pakkumise hind sisaldab järgmist:
maja ehituskonstruktsioonide projekteerimine põhiprojekti staadiumis kooskõlas arhitektuurse projektiga (vt EVS 932:2017)
Kui arve maksja on eraisik siis saab teha ka ilma käibemaksuta arve.
Projekti sisu:
1. konstruktsiooniarvutused
2. seletuskiri,
3. joonised
4. vundamendi plaan
5. aluspõrand - vajaliku ... Rohkem

Küsimused hanke korraldajale

Hanke korraldajale ei ole veel küsimusi esitatud.

Lisa küsimus

Lisa küsimus

Minu pakkumine

Reeglid

Pakkumise kirjelduse väli on mõeldud pakkumise detailsemaks lahti kirjutamiseks. Pikema teksti mugavaks sisestamiseks klikkige kasti paremal ülaservas oleval ikoonil.
Pakkumist tehes on keelatud postitada enda kontaktandmeid (nimi, telefon, aadress jne). Me jälgime ja analüüsime pakkumisi, et vältida pettuseid ja reeglite rikkumisi.
Rikkumise puhul kasutajakonto blokeeritakse.

 

Teisi töid samas valdkonnas

Valdkonnas "Ehitusprojektid" on 6 aktiivset tööd

no-img Pilt puudub

Ehitusinsener tase 7 vastutav allikiri

Asukoht: Pärnumaa, Pärnu
Aega jäänud: 29 min
Tehtud pakkumisi: 2

Korteri elektri projekt

Asukoht: Harjumaa, Tallinn
Aega jäänud: 2p
Tehtud pakkumisi: 2

Vanemad teated:

Vaata kõiki

Sellel veebilehel kasutatakse küpsiseid. Kasutamist jätkates nõustute küpsiste kasutamisega.

Sulge
 
Minu pakkumine

Reeglid

Pakkumise kirjelduse väli on mõeldud pakkumise detailsemaks lahti kirjutamiseks. Pikema teksti mugavaks sisestamiseks klikkige kasti paremal ülaservas oleval ikoonil.
Pakkumist tehes on keelatud postitada enda kontaktandmeid (nimi, telefon, aadress jne). Me jälgime ja analüüsime pakkumisi, et vältida pettuseid ja reeglite rikkumisi.
Rikkumise puhul kasutajakonto blokeeritakse.