+ Lisa oma töö      

Otsid ehitajat "Ehitusprojektid" valdkonnast?

Parima pakkumise ja teostaja leidmiseks lisa oma töö.

Palkmaja Elektriprojekt

ID 75539

1101 vaatamist

Prindi

  • check Pakkumiste tegemine
    kuni 05.09.2022
  • check Võitja valik kuni
    12.09.2022
  • 3 Töö teostamine
    ja hinnang
Hanke lõpp: E, 5. september, 2022
Maakond: Ida-Virumaa
Muu asula: Oonurme
Tööde algus: E, 22. august, 2022 (Soovituslik)
Tööde lõpp: R, 30. september, 2022 (Soovituslik)
Ehitusmaterjalid: Töö tellija poolt
Soovin pakkumisi: Summa kogu projektile

Töö sisu

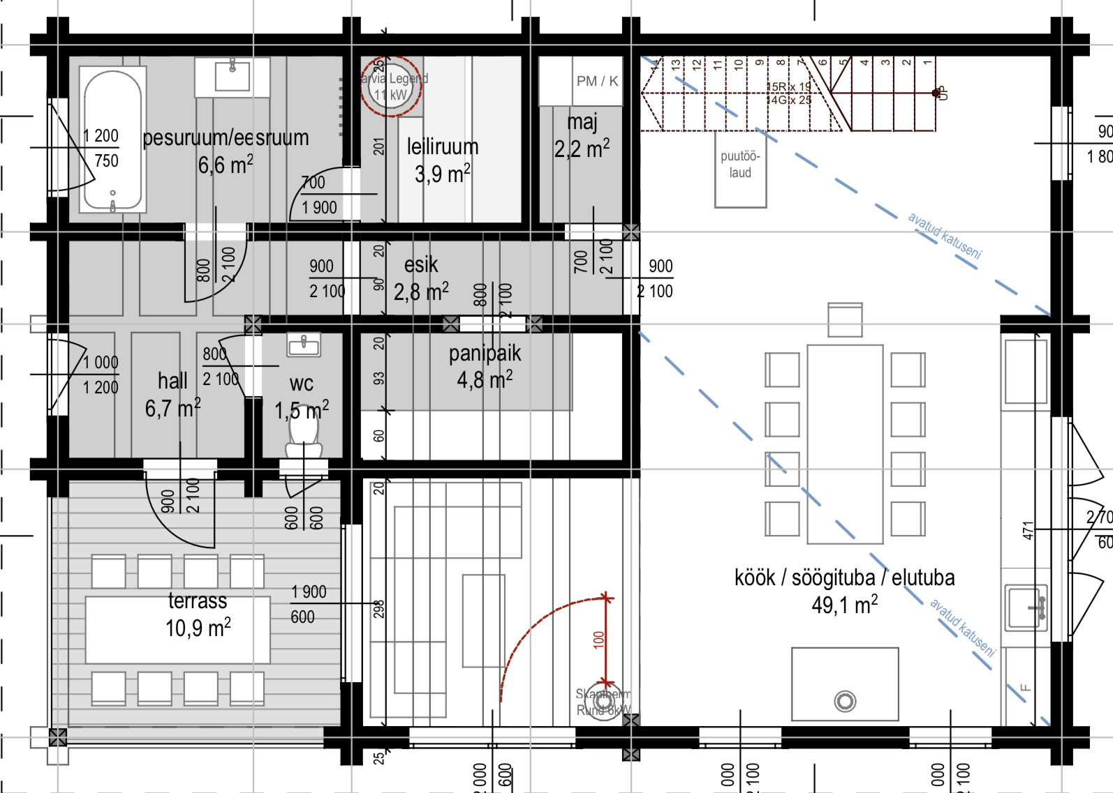
Soovin elektri projekti palkmajale (128m2). Maja asub Alutaguse vallas.

Pildid, video ja failid

Hanke korraldaja: eraisik ID70742

Pakkumised

Pakkumisi kokku: 4

Ettevõte Summa Käibemaks Lisatud Vestlus
Kasutaja ikoon ID46459
Pakkuja profiil Väike nool paremale
350€ Sisaldab KM Sisaldab KM 23.08.2022 Vestlus (0)

Pakkumise kirjeldus:

Tere,
Elektriprojekti hind põhiprojekti staadiumis on 350.- Teie poolt on vajalik maja .dwg plaan koos eskiisiga,kuhu lülitid,pistikupesad soovite.
Teostus aeg - 5 tööpäeva.

Terv.,

Kasutaja ikoon ID66602
Pakkuja profiil Väike nool paremale
260€ Ikoon kell Sisaldab KM Sisaldab KM 25.08.2022 Vestlus (0)

Pakkumise kirjeldus:

Esitan pakkumise hoone elektriprojektile. Projekti staadiumiks - põhiprojekt.

Projekteerimiseks vajalikud lähteandmed Tellijalt: 1) hoone plaan .dwg formaadis 2) katastriüksuse geodeetiline alusplaan .dwg formaadis 3) planeeritud tehno- ja koduseadmete nimiandmed 4) soovitud valguspunktide ja lülitite ning jõu- ja sidepistikute asukohad (Tellija eski ... Rohkem

Kasutaja ikoon ID59037
Pakkuja profiil Väike nool paremale
450€ Ei ole KMKR Ei ole KMKR 29.08.2022 Vestlus (0)

Pakkumise kirjeldus:

Tere,
Teostan pakkumise hoone EL ja EN osadele.

Projekti kuulub elektri tugevvoolu paigaldise osa alatest Elektrilevi liitumiskilbist. sh: elektrikilbi joonis, pistikud, maanduspaigaldis, lülitite ja valgustite asukohad ( vastavalt kliendi soovile) toitekohad seadmetele ( nt õhksoojuspump ) .
Nõrkvoolu osa sisaldab, vastavalt kliendi soovile: Suitsua ... Rohkem

Kasutaja ikoon ID69314
Pakkuja profiil Väike nool paremale
260€ Ikoon kell Ei ole KMKR Ei ole KMKR 05.09.2022 Vestlus (0)

Pakkumise kirjeldus:

Pakkumise sees on :

Objekti ülevaatus (vajadusel).
Hoone elektripaigaldise plaanide koostamine (pistikupesad, valgustid, seadmed jne), alates maja peajaotuskilbist.
Elektrikilbi/ -kilpide elektriskeemide koostamine.
Tiitelleht, seletuskiri ja spetsifikatsioon.
Projekt koostatakse põhiprojekti staadiumis. A-pädevustunnistus.

Lugupidamisega,

Küsimused hanke korraldajale

Hanke korraldajale ei ole veel küsimusi esitatud.

Lisa küsimus

Lisa küsimus

Minu pakkumine

Reeglid

Pakkumise kirjelduse väli on mõeldud pakkumise detailsemaks lahti kirjutamiseks. Pikema teksti mugavaks sisestamiseks klikkige kasti paremal ülaservas oleval ikoonil.
Pakkumist tehes on keelatud postitada enda kontaktandmeid (nimi, telefon, aadress jne). Me jälgime ja analüüsime pakkumisi, et vältida pettuseid ja reeglite rikkumisi.
Rikkumise puhul kasutajakonto blokeeritakse.

 

Teisi töid samas valdkonnas

Valdkonnas "Ehitusprojektid" on 5 aktiivset tööd

no-img Pilt puudub

Kortermaja kõigi ruumide mõõdistamine ja DWG faili koostamine

Asukoht: Harjumaa, Tallinn
Aega jäänud: 2p 4h
Tehtud pakkumisi: 2

Korterelamu mõõdistusprojekti koostamine ja jooniste digitaliseerimine

Asukoht: Lääne-Virumaa, Tapa
Aega jäänud: 5p 4h
Tehtud pakkumisi: 2

Vanemad teated:

Vaata kõiki

Sellel veebilehel kasutatakse küpsiseid. Kasutamist jätkates nõustute küpsiste kasutamisega.

Sulge
 
Minu pakkumine

Reeglid

Pakkumise kirjelduse väli on mõeldud pakkumise detailsemaks lahti kirjutamiseks. Pikema teksti mugavaks sisestamiseks klikkige kasti paremal ülaservas oleval ikoonil.
Pakkumist tehes on keelatud postitada enda kontaktandmeid (nimi, telefon, aadress jne). Me jälgime ja analüüsime pakkumisi, et vältida pettuseid ja reeglite rikkumisi.
Rikkumise puhul kasutajakonto blokeeritakse.