+ Lisa oma töö      

Otsid ehitajat "Ehitusprojektid" valdkonnast?

Parima pakkumise ja teostaja leidmiseks lisa oma töö.

Paneelmaja kandvasse seina ava lõikamine

ID 75317

551 vaatamist

Prindi

  • check Pakkumiste tegemine
    kuni 22.08.2022
  • check Võitja valik kuni
    29.08.2022
  • 3 Töö teostamine
    ja hinnang
Hanke lõpp: E, 22. august, 2022
Maakond: Harjumaa
Linn: Tallinn
Tööde algus: N, 01. september, 2022 (Soovituslik)
Tööde lõpp: R, 23. september, 2022 (Soovituslik)
Ehitusmaterjalid: Töö tegija poolt
Soovin pakkumisi: Summa kogu projektile

Töö sisu

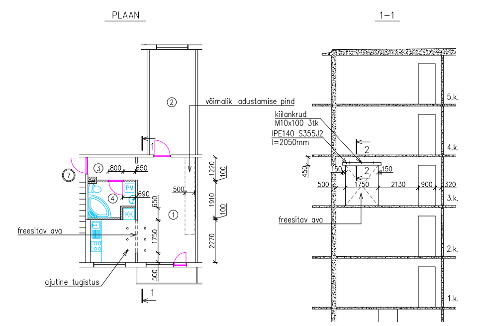
Vastavalt projektile vaja lõigata ava kandvasse seina. Ava laius 1750, seina paksus 120 mm.

Objekt asub Mustamäel paneelmajas, 3ndal korrusel, lift puudub.

Enne lõikamist vaja lagi ajutiselt toestada, peale lõikamist paigaldada terastala kolme kiilankruga. Terastala kiiluda tihedalt vastu ava ülemist pinda ja vastu toetuspinda.

Lõikamiseks vajalik teemantsaagimine, väljalõigatavad tükid (mitte suuremad kui 500 mm x 500 mm). Tükid koheselt välja vedada või ajutiselt ladustada võimalikult seina äärde plaanil
näidatud piirkonda, mitte üle 2 tüki üksteise peale. Tulele avatud teraspinnad katta R60 nõudele vastava värviga või tulekaitse kipsplaadiga.

NB! Peale tööd vajalik allkirjastatud ehituspäevik, kaetud tööde akt ning ehitise ülevaatus akt.

Ehitusjäätmete äravedu ja utiliseerimine hanke võitja poolt.
Hanke võitjal peab olema varasem kogemus sarnase tööga.

Pildid, video ja failid

Hanke korraldaja: eraisik ID70644

Pakkumised

Pakkumisi kokku: 1

Ettevõte Summa Käibemaks Lisatud Vestlus
Kasutaja ikoon ID65365
Pakkuja profiil Väike nool paremale
7 679€ Ei ole KMKR Ei ole KMKR 21.08.2022 Vestlus (0)

Küsimused hanke korraldajale

Hanke korraldajale ei ole veel küsimusi esitatud.

Lisa küsimus

Lisa küsimus

Minu pakkumine

Reeglid

Pakkumise kirjelduse väli on mõeldud pakkumise detailsemaks lahti kirjutamiseks. Pikema teksti mugavaks sisestamiseks klikkige kasti paremal ülaservas oleval ikoonil.
Pakkumist tehes on keelatud postitada enda kontaktandmeid (nimi, telefon, aadress jne). Me jälgime ja analüüsime pakkumisi, et vältida pettuseid ja reeglite rikkumisi.
Rikkumise puhul kasutajakonto blokeeritakse.

 

Teisi töid samas valdkonnas

Valdkonnas "Ehitusprojektid" on 5 aktiivset tööd

no-img Pilt puudub

Kortermaja kõigi ruumide mõõdistamine ja DWG faili koostamine

Asukoht: Harjumaa, Tallinn
Aega jäänud: 2p 4h
Tehtud pakkumisi: 2

Korterelamu mõõdistusprojekti koostamine ja jooniste digitaliseerimine

Asukoht: Lääne-Virumaa, Tapa
Aega jäänud: 5p 4h
Tehtud pakkumisi: 2

Vanemad teated:

Vaata kõiki

Sellel veebilehel kasutatakse küpsiseid. Kasutamist jätkates nõustute küpsiste kasutamisega.

Sulge
 
Minu pakkumine

Reeglid

Pakkumise kirjelduse väli on mõeldud pakkumise detailsemaks lahti kirjutamiseks. Pikema teksti mugavaks sisestamiseks klikkige kasti paremal ülaservas oleval ikoonil.
Pakkumist tehes on keelatud postitada enda kontaktandmeid (nimi, telefon, aadress jne). Me jälgime ja analüüsime pakkumisi, et vältida pettuseid ja reeglite rikkumisi.
Rikkumise puhul kasutajakonto blokeeritakse.