+ Lisa oma töö      

Otsid ehitajat "Projekteerimine" valdkonnast?

Parima pakkumise ja teostaja leidmiseks lisa oma töö.

õõnespaneelide laotis

ID 74755

609 vaatamist

Prindi

  • check Pakkumiste tegemine
    kuni 30.07.2022
  • check Võitja valik kuni
    06.08.2022
  • 3 Töö teostamine
    ja hinnang
Hanke lõpp: L, 30. juuli, 2022
Maakond: Harjumaa
Muu asula: Kuusalu
Tööde algus: R, 29. juuli, 2022 (Soovituslik)
Tööde lõpp: N, 04. august, 2022 (Soovituslik)
Ehitusmaterjalid: Töö tegija poolt
Soovin pakkumisi: Tüki- või ühikuhinda

Töö sisu

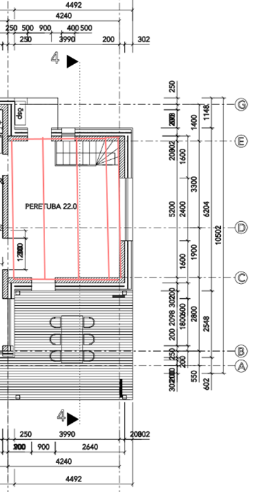
Otsin kedagi, kes teeks kõrvalhoone katuse jaoks laotise (DWG), mille alusel saaks tootjalt 200 või 220 mm õõnespaneele tellida. Olemas on kõrvalhoone eelprojekt. Kõrvalhoone laotud fibo5/200 plokkidest.
Peaks olema poole tunni töö.

Pildid, video ja failid

Hanke korraldaja: eraisik ID70357

Pakkumised

Pakkumisi kokku: 2

Ettevõte Summa Käibemaks Lisatud Vestlus
Kasutaja ikoon ID58316
Pakkuja profiil Väike nool paremale
300€ KM lisandub KM lisandub 28.07.2022 Vestlus (0)
Kasutaja ikoon ID47813
Pakkuja profiil Väike nool paremale
250€ Ei ole KMKR Ei ole KMKR 29.07.2022 Vestlus (0)

Pakkumise kirjeldus:

Tere

Hinnapakkumine sisaldab katuslae paneelide laotist ja spetsifikatsiooni. Joonis esitatakse PDF ja DWG formaadis.

KM ei lisandu
Lugupidamisega

Küsimused hanke korraldajale

Küsimus: private ID36872   28.07.2022 11:43
Tere.
Kuhu toetuvad paneelid trepiava juures?

Teavita reeglite rikkumisest

Korraldaja vastus: 28.07.2022 23:05

Tere,
Tänan küsimuse eest. Püüan paremini seletada. Trepp on keldri korruse oma oma ja ei mängi rolli. Paneelid toetuvad ainult välisseintele umbes nagu jooniselt näha.

Kelder/vundament on fibo5/250 plokkidest, siis tulevad varem paigaldatud esimese korruse ja keldrivahelised õõnespaneelid, siis fibo5/200 seinad, millele hakkavad toetuma laotisele tulevad esimese korruse lae paneelid.

Teavita reeglite rikkumisest

Lisa küsimus

Lisa küsimus

Minu pakkumine

Reeglid

Pakkumise kirjelduse väli on mõeldud pakkumise detailsemaks lahti kirjutamiseks. Pikema teksti mugavaks sisestamiseks klikkige kasti paremal ülaservas oleval ikoonil.
Pakkumist tehes on keelatud postitada enda kontaktandmeid (nimi, telefon, aadress jne). Me jälgime ja analüüsime pakkumisi, et vältida pettuseid ja reeglite rikkumisi.
Rikkumise puhul kasutajakonto blokeeritakse.

 

Teisi töid samas valdkonnas

Valdkonnas "Projekteerimine" on 6 aktiivset tööd

no-img Pilt puudub

1-kordse 120 m2 elumaja põhiprojekt

Asukoht: Harjumaa, Metsanurme
Aega jäänud: 8p 15h
Tehtud pakkumisi: 4

no-img Pilt puudub

Saunamaja eelprojekt ehitusteatiseks

Asukoht: Lääne-Virumaa
Aega jäänud: 1p 15h
Tehtud pakkumisi: 3

Vanemad teated:

Vaata kõiki

Sellel veebilehel kasutatakse küpsiseid. Kasutamist jätkates nõustute küpsiste kasutamisega.

Sulge
 
Minu pakkumine

Reeglid

Pakkumise kirjelduse väli on mõeldud pakkumise detailsemaks lahti kirjutamiseks. Pikema teksti mugavaks sisestamiseks klikkige kasti paremal ülaservas oleval ikoonil.
Pakkumist tehes on keelatud postitada enda kontaktandmeid (nimi, telefon, aadress jne). Me jälgime ja analüüsime pakkumisi, et vältida pettuseid ja reeglite rikkumisi.
Rikkumise puhul kasutajakonto blokeeritakse.