+ Lisa oma töö      

Otsid ehitajat "Projekteerimine" valdkonnast?

Parima pakkumise ja teostaja leidmiseks lisa oma töö.

Tugevusarvutused seina tehtavate avade silluste jaoks

ID 73507

461 vaatamist

Prindi

  • check Pakkumiste tegemine
    kuni 21.06.2022
  • check Võitja valik kuni
    28.06.2022
  • 3 Töö teostamine
    ja hinnang
Hanke lõpp: T, 21. juuni, 2022
Maakond: Harjumaa
Muu asula: Jüri
Tööde algus: E, 20. juuni, 2022 (Soovituslik)
Tööde lõpp: R, 24. juuni, 2022 (Soovituslik)
Ehitusmaterjalid: Töö tegija poolt
Soovin pakkumisi: Summa kogu projektile

Töö sisu

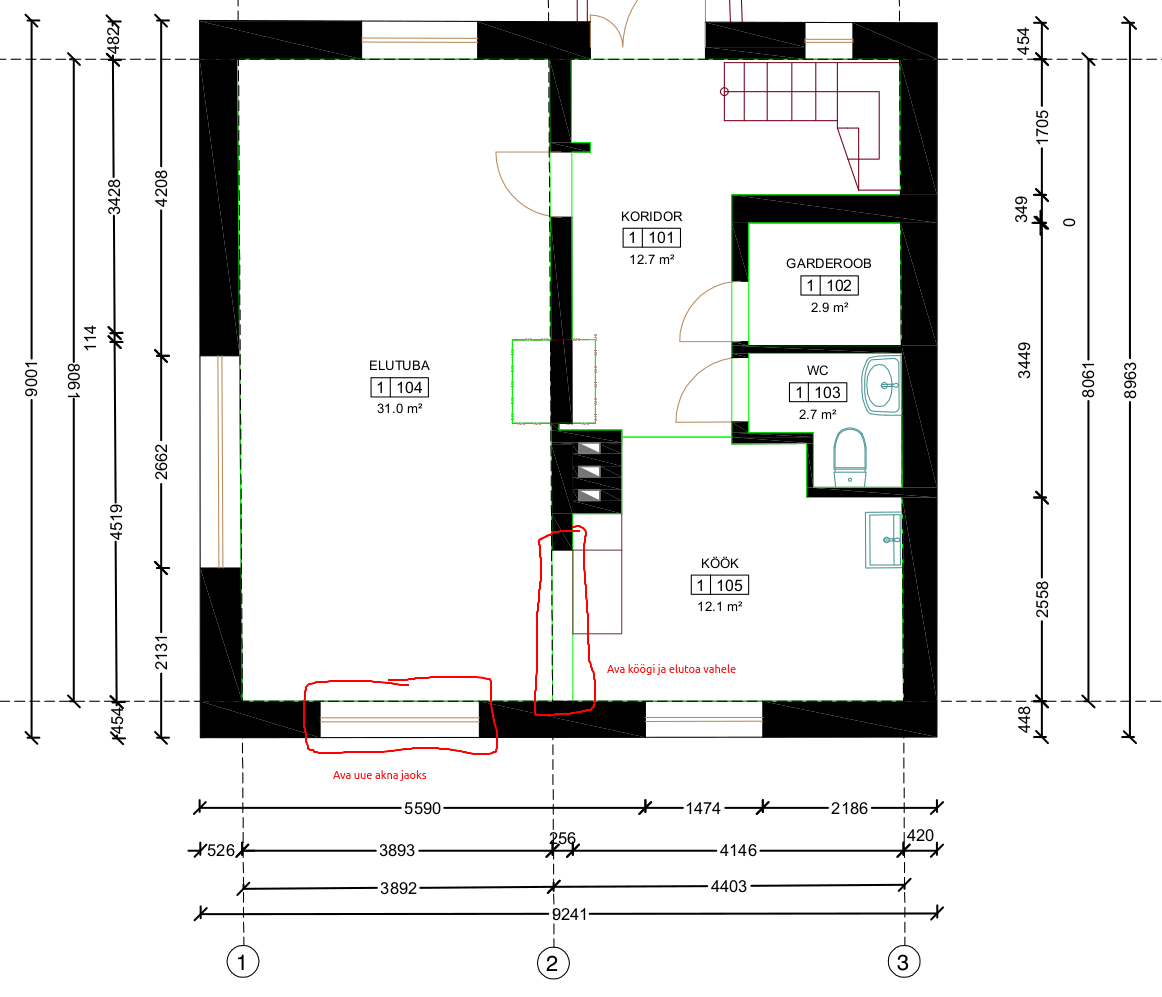
Plaan on kandvasse seina teha läbipääsuava köögi ja elutoa vahele ning elutuppa, maja otsaseina, lisa aknaava. Mõlemale oleks vaja tugevusarvutusi silluse valimiseks. Tehtavad arvutused saavad olema ehitusteatise projekti osa ning esitatakse valda (vald nõudis).

Kummagi ava laiused hetkel kivisse raiutud ei ole, võib vastavalt arvutustele vajadusel muuta, et saavutada mõistlik lõpptulemus. Köögi ja elutoa vaheline ava võiks ideaalis ulatuda välisseina sisepinnast puupliidi soojamüürini, nagu joonisel näidatud. Sellele toetuvad 2. korruse vahelae 75x200 puittalad, sammuga ~700mm. Vahesein on laotud serviti Narva plokkidest, peale mingit vööd valatud ei ole. Keldris on selle koha all samuti ava, välisseinast korstnani, millel betoonist valatud sillus (näha lisatud piltidel). Silluse sees on näha vähemalt üht terastala või raudteerelssi.

Välissein on lapiti laotud Narva plokkidest, peal tunduvad olevat lapiti 50x150 prussid 2tk, vööd valatud ei ole. Plaanitava akna kohal on puitkarkassiga otsasein/viil. Sillus tuleb valida selline, et kannab selle raskuse ära.

Lisatud pildid köögi ja elutoa vahelisest seinast ning samast kohast keldris. Soovi korral saab ka kohapeal tutvuda.

Pildid, video ja failid

Hanke korraldaja: eraisik ID69731

Pakkumised

Pakkumisi kokku: 0

Küsimused hanke korraldajale

Hanke korraldajale ei ole veel küsimusi esitatud.

Lisa küsimus

Lisa küsimus

Minu pakkumine

Reeglid

Pakkumise kirjelduse väli on mõeldud pakkumise detailsemaks lahti kirjutamiseks. Pikema teksti mugavaks sisestamiseks klikkige kasti paremal ülaservas oleval ikoonil.
Pakkumist tehes on keelatud postitada enda kontaktandmeid (nimi, telefon, aadress jne). Me jälgime ja analüüsime pakkumisi, et vältida pettuseid ja reeglite rikkumisi.
Rikkumise puhul kasutajakonto blokeeritakse.

 

Teisi töid samas valdkonnas

Valdkonnas "Projekteerimine" on 6 aktiivset tööd

no-img Pilt puudub

1-kordse 120 m2 elumaja põhiprojekt

Asukoht: Harjumaa, Metsanurme
Aega jäänud: 8p 11h
Tehtud pakkumisi: 4

no-img Pilt puudub

Saunamaja eelprojekt ehitusteatiseks

Asukoht: Lääne-Virumaa
Aega jäänud: 1p 11h
Tehtud pakkumisi: 3

Vanemad teated:

Vaata kõiki

Sellel veebilehel kasutatakse küpsiseid. Kasutamist jätkates nõustute küpsiste kasutamisega.

Sulge
 
Minu pakkumine

Reeglid

Pakkumise kirjelduse väli on mõeldud pakkumise detailsemaks lahti kirjutamiseks. Pikema teksti mugavaks sisestamiseks klikkige kasti paremal ülaservas oleval ikoonil.
Pakkumist tehes on keelatud postitada enda kontaktandmeid (nimi, telefon, aadress jne). Me jälgime ja analüüsime pakkumisi, et vältida pettuseid ja reeglite rikkumisi.
Rikkumise puhul kasutajakonto blokeeritakse.