+ Lisa oma töö      

Otsid ehitajat "Elektritööd" valdkonnast?

Parima pakkumise ja teostaja leidmiseks lisa oma töö.

Eramaja elektrisüsteemi paigaldus

ID 72716

513 vaatamist

Prindi

  • check Pakkumiste tegemine
    kuni 29.05.2022
  • check Võitja valik kuni
    05.06.2022
  • 3 Töö teostamine
    ja hinnang
Hanke lõpp: P, 29. mai, 2022
Maakond: Harjumaa
Tööde algus: E, 04. juuli, 2022 (Soovituslik)
Tööde lõpp: P, 17. juuli, 2022 (Soovituslik)
Ehitusmaterjalid: Töö tegija poolt
Soovin pakkumisi: Summa kogu projektile

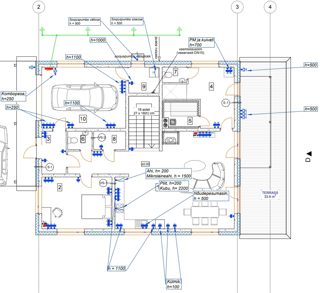
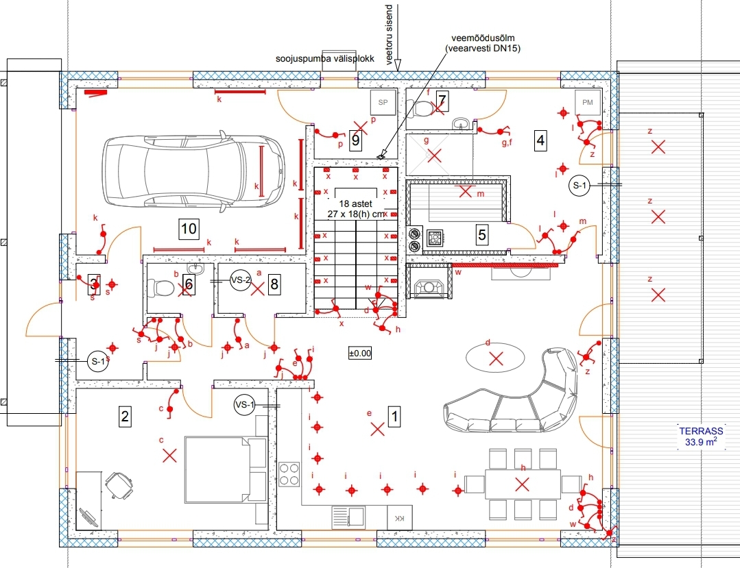
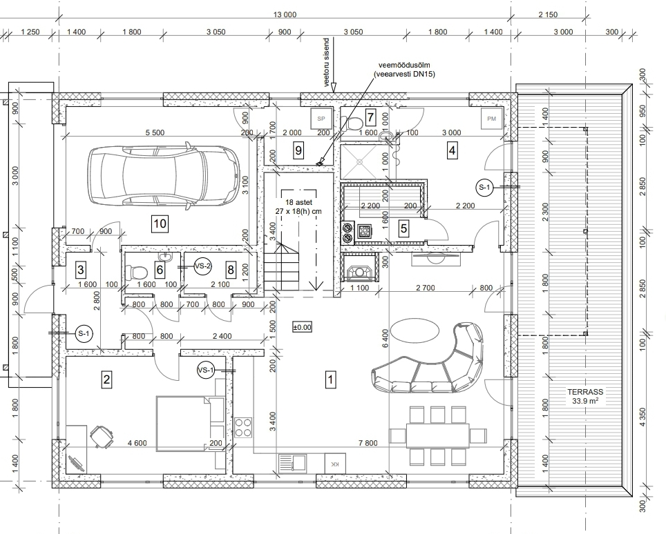
Töö sisu

Uusehitise elektrikaabli paigaldus.
Maja 2-korruseline ja garaaz, ehitisealune pind 222 m2.
Alguses soovin teha ainult 1 korrus. Esimesel korrusel köök-elutuba, külalistetuba, esik, sauna eesruum, saun, wc(1), wc(2), garderoob, tehnoruum, trepihall ja garaaz.

Pildid, video ja failid

Hanke korraldaja: eraisik ID67762

Pakkumised

Pakkumisi kokku: 0

Küsimused hanke korraldajale

Küsimus: private ID26292   27.05.2022 08:50
Tere,
Kas sisestuskaabel, maandus ja peajaotuskilp olemas või tuleb need pakkuda ? Kas elektriprojekt on olemas või tuleb pakkuda ? Peajaotuskilbi skeem ? Mis materjalist on seinad ? Kas seintes, põrandates, lagedes on võimalik kaabeldada või tuleb sooned freesida ? Fotod ehitusest oleks pakkumisel abiks.

Teavita reeglite rikkumisest

Korraldaja vastus:
Hanke korraldaja ei ole küsimusele veel vastanud

Küsimus: private ID59883   27.05.2022 09:40
ID26292 - Tundub, et lisatud ongi "elektriprojekti" "joonised".....

Aga mul on sama aus küsimus, kas on olemas ELEKTRIPROJEKT?

Teavita reeglite rikkumisest

Korraldaja vastus:
Hanke korraldaja ei ole küsimusele veel vastanud

Lisa küsimus

Lisa küsimus

Minu pakkumine

Reeglid

Pakkumise kirjelduse väli on mõeldud pakkumise detailsemaks lahti kirjutamiseks. Pikema teksti mugavaks sisestamiseks klikkige kasti paremal ülaservas oleval ikoonil.
Pakkumist tehes on keelatud postitada enda kontaktandmeid (nimi, telefon, aadress jne). Me jälgime ja analüüsime pakkumisi, et vältida pettuseid ja reeglite rikkumisi.
Rikkumise puhul kasutajakonto blokeeritakse.

 

Teisi töid samas valdkonnas

Valdkonnas "Elektritööd" on 5 aktiivset tööd

Vana talu elektrisüsteemi uuendamine (kilp, pistikud, välivalgustus, EV valmidus)

Asukoht: Raplamaa, Suurekivi
Aega jäänud: 1p 11h
Tehtud pakkumisi: 5

Kaablite vahetus paneelmaja korteris ja siseviimistlus

Asukoht: Harjumaa, Tallinn
Aega jäänud: 6p 11h
Tehtud pakkumisi: 3

Vanemad teated:

Vaata kõiki

Sellel veebilehel kasutatakse küpsiseid. Kasutamist jätkates nõustute küpsiste kasutamisega.

Sulge
 
Minu pakkumine

Reeglid

Pakkumise kirjelduse väli on mõeldud pakkumise detailsemaks lahti kirjutamiseks. Pikema teksti mugavaks sisestamiseks klikkige kasti paremal ülaservas oleval ikoonil.
Pakkumist tehes on keelatud postitada enda kontaktandmeid (nimi, telefon, aadress jne). Me jälgime ja analüüsime pakkumisi, et vältida pettuseid ja reeglite rikkumisi.
Rikkumise puhul kasutajakonto blokeeritakse.