+ Lisa oma töö      

Otsid ehitajat "Projekteerimine" valdkonnast?

Parima pakkumise ja teostaja leidmiseks lisa oma töö.

Hange on lõppenud!

Võitjaks osutus kasutaja ID 58316

Konstruktiivne põhiprojekt üksikelamule ja abihoonele

ID 72605

818 vaatamist

Prindi

  • check Pakkumiste tegemine
    kuni 06.06.2022
  • check Võitja valik kuni
    13.06.2022
  • 3 Töö teostamine
    ja hinnang
Hanke lõpp: E, 6. juuni, 2022
Maakond: Tartumaa
Linn: Tartu
Tööde algus: E, 06. juuni, 2022 (Soovituslik)
Tööde lõpp: N, 30. juuni, 2022 (Soovituslik)
Ehitusmaterjalid: Töö tegija poolt
Soovin pakkumisi: Summa kogu projektile

Töö sisu

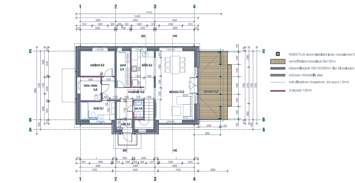
Soovin maja ja abihoone ehituskonstruktsioonide projekteerimist põhiprojekti staadiumis kooskõlas arhitektuurse projekti ja kõikide seadustega.
Olemas eelprojekt, eriosade projekt ja iga hetk saabub ehitusluba. Kõik juba olemasolevad projektid on saadaval DWG-failidena.

Maja suletud netopind 148,2 m2, ehitusalune pind 126 m2, 2 korrust. Hoone kandekonstruktsioonid ehitatakse 200mm betoonplokist, vahelaed betoonist, siseseinad betoonplokist (mitte kipsist). Puitaknad, kivikatus, varikatused plekist.
Abihoone ehitusalune pind 103 m2, suletud netopind 38,9 m2.

Projekti sisu:
1. konstruktsiooniarvutused
2. seletuskiri,
3. joonised
4. vundamendi plaan
5. aluspõrand - vajalikud lõiked, armatuuri mõõtmed, sammud,.
6. seinte/silluste-plaan, sõlmed, lõiked, seinte ja silluste armeerimine
7. katuse kandetalade dimensioneerimine
8. kandetalade plaan
9. sarikate dimensioneerimine plaan,
10. vajalikud sõlmed, lõiked, dimensioneerimised, mida ei osanud mainida, aga põhiprojektis on vajalikud.
11. Soovin ka üldehitusmaterjalide mahutabelit.

Pildid, video ja failid

Hanke korraldaja: eraisik ID69265

Pakkumised

Pakkumisi kokku: 4

Ettevõte Summa Käibemaks Lisatud Vestlus
Kasutaja ikoon ID69164
Pakkuja profiil Väike nool paremale
3 200€ Ei ole KMKR Ei ole KMKR 25.05.2022 Vestlus (3)
Kasutaja ikoon ID33328
Pakkuja profiil Väike nool paremale
4 320€ Sisaldab KM Sisaldab KM 01.06.2022 Vestlus (0)

Pakkumise kirjeldus:

Töö sisu :
* Põhiprojekti koostamise aluseks on koostatud eelprojekt.
* Põhiprojekti seletuskirja koostamine.
* Hoone erinevatele konstruktsioonidele ja nende osadele mõjuvate koormuste ( omakaalukoormused, lumekoormus, tuulekoormus, kasuskoormused ) leidmine ( koormused vundamendile, koormused välisseintele, koormused sillustele, jne... ) ja sell ... Rohkem

Kasutaja ikoon ID48870
Pakkuja profiil Väike nool paremale
2 900€ Ei ole KMKR Ei ole KMKR 06.06.2022 Vestlus (6)

Pakkumise kirjeldus:

Tere,
pakkumise hind sisaldab järgmist:
maja ehituskonstruktsioonide projekteerimine põhiprojekti staadiumis kooskõlas arhitektuurse projektiga (vt EVS 932:2017)
Kui arve maksja on eraisik siis saab teha ka ilma käibemaksuta arve.
Projekti sisu:
1. konstruktsiooniarvutused
2. seletuskiri,
3. joonised
4. vundamendi plaan
5. aluspõrand - vajaliku ... Rohkem

Kasutaja ikoon ID58316
Pakkuja profiil Väike nool paremale
2 400€ Ikoon kell Sisaldab KM Sisaldab KM 06.06.2022 Vestlus (2)

Pakkumise kirjeldus:

Konstruktiivse osa põhiprojekt koosneb:
1) Taldmiku, vundamendi ja sokli osa plaanid
2) Vundamendi/sokli osa iseloomulikud lõiked
3) Taldmiku ja sokliosa põhimaterjalide üldspetsifikatsioonid
4) 1 korruse seinte plaan
5) 2. korruse seinte plaan
6) Talade armeerimine ja üldspetsifikatsioonid
7) Vahelae plaan, armeerimisjoonised ja üldspetsifikats ... Rohkem

Küsimused hanke korraldajale

Küsimus: private ID33328   24.05.2022 09:25
Tere, tekkisid mõned küsimused. * Kas pinnaseuuringud vahetult ehitusalalt on tehtud? * Kas põhiprojekti koostamine toimub 100 % ulatuses eelprojekti järgi? Kas hankes nimetatud töö tähtaeg ( 30. juuni, sulgudes on küll soovituslik, aga reaalsus. . . )on lõplik või on ajalist ruumi rohkem ( kaks eraldiseisvat hoonet )? Kui suur on võimalus töö käigus erinevate hoone osade ümberprojekteerimiseks? Küsin seepärasrt, et ehitusmaterjalide kättesaadavus on suhteliselt suure küsimärgiga. Näiteks olukord, kus katusekonstruktsiooni tugevusarvutused on tehtud, ristlõiked on paigas, joonised valmis. Ja siis selgub, et ehitusmaterjali dimensioneeritud ristlõikega ei ole hetkel saada, . . .

Teavita reeglite rikkumisest

Korraldaja vastus: 24.05.2022 10:04

Tere! Vahetult ehitusalalt hetkel pole, aga saame tellida. On olemas detailplaneeringu jaoks tehtud pinnaseuuringud.
Eelprojektis on hetkel ette nähtud kipsseinad, soovime kiviseinu. Samuti lisandub üks mittekandev vahesein elutuppa sisearhitekti joonisega (hetkel koostamisel). Ülejäänud osas soovime järgida eelprojekti, aga muudatusettepanekud kuulame ära, kui neid on.
Kõige hilisem projekti lõpptähtaeg on 08.08.2022.
Tarneraskustega seotud probleemidega tegeleme siis, kui need tekivad.

Teavita reeglite rikkumisest

Lisa küsimus

Lisa küsimus

Minu pakkumine

Reeglid

Pakkumise kirjelduse väli on mõeldud pakkumise detailsemaks lahti kirjutamiseks. Pikema teksti mugavaks sisestamiseks klikkige kasti paremal ülaservas oleval ikoonil.
Pakkumist tehes on keelatud postitada enda kontaktandmeid (nimi, telefon, aadress jne). Me jälgime ja analüüsime pakkumisi, et vältida pettuseid ja reeglite rikkumisi.
Rikkumise puhul kasutajakonto blokeeritakse.

 

Teisi töid samas valdkonnas

Valdkonnas "Projekteerimine" on 7 aktiivset tööd

no-img Pilt puudub

1-kordse 120 m2 elumaja põhiprojekt

Asukoht: Harjumaa, Metsanurme
Aega jäänud: 8p 8h
Tehtud pakkumisi: 4

no-img Pilt puudub

Saunamaja eelprojekt ehitusteatiseks

Asukoht: Lääne-Virumaa
Aega jäänud: 1p 8h
Tehtud pakkumisi: 3

Vanemad teated:

Vaata kõiki

Sellel veebilehel kasutatakse küpsiseid. Kasutamist jätkates nõustute küpsiste kasutamisega.

Sulge
 
Minu pakkumine

Reeglid

Pakkumise kirjelduse väli on mõeldud pakkumise detailsemaks lahti kirjutamiseks. Pikema teksti mugavaks sisestamiseks klikkige kasti paremal ülaservas oleval ikoonil.
Pakkumist tehes on keelatud postitada enda kontaktandmeid (nimi, telefon, aadress jne). Me jälgime ja analüüsime pakkumisi, et vältida pettuseid ja reeglite rikkumisi.
Rikkumise puhul kasutajakonto blokeeritakse.