+ Lisa oma töö      

Otsid ehitajat "Projekteerimine" valdkonnast?

Parima pakkumise ja teostaja leidmiseks lisa oma töö.

Ventilatsiooni-, kütte- ja elektrisüsteemide projektid elamule Saaremaal

ID 72532

595 vaatamist

Prindi

  • check Pakkumiste tegemine
    kuni 04.06.2022
  • check Võitja valik kuni
    11.06.2022
  • 3 Töö teostamine
    ja hinnang
Hanke lõpp: L, 4. juuni, 2022
Maakond: Saaremaa
Muu asula: Kaarma
Tööde algus: E, 23. mai, 2022 (Soovituslik)
Tööde lõpp: N, 30. juuni, 2022 (Soovituslik)
Ehitusmaterjalid: Töö tellija poolt
Soovin pakkumisi: Summa kogu projektile

Töö sisu

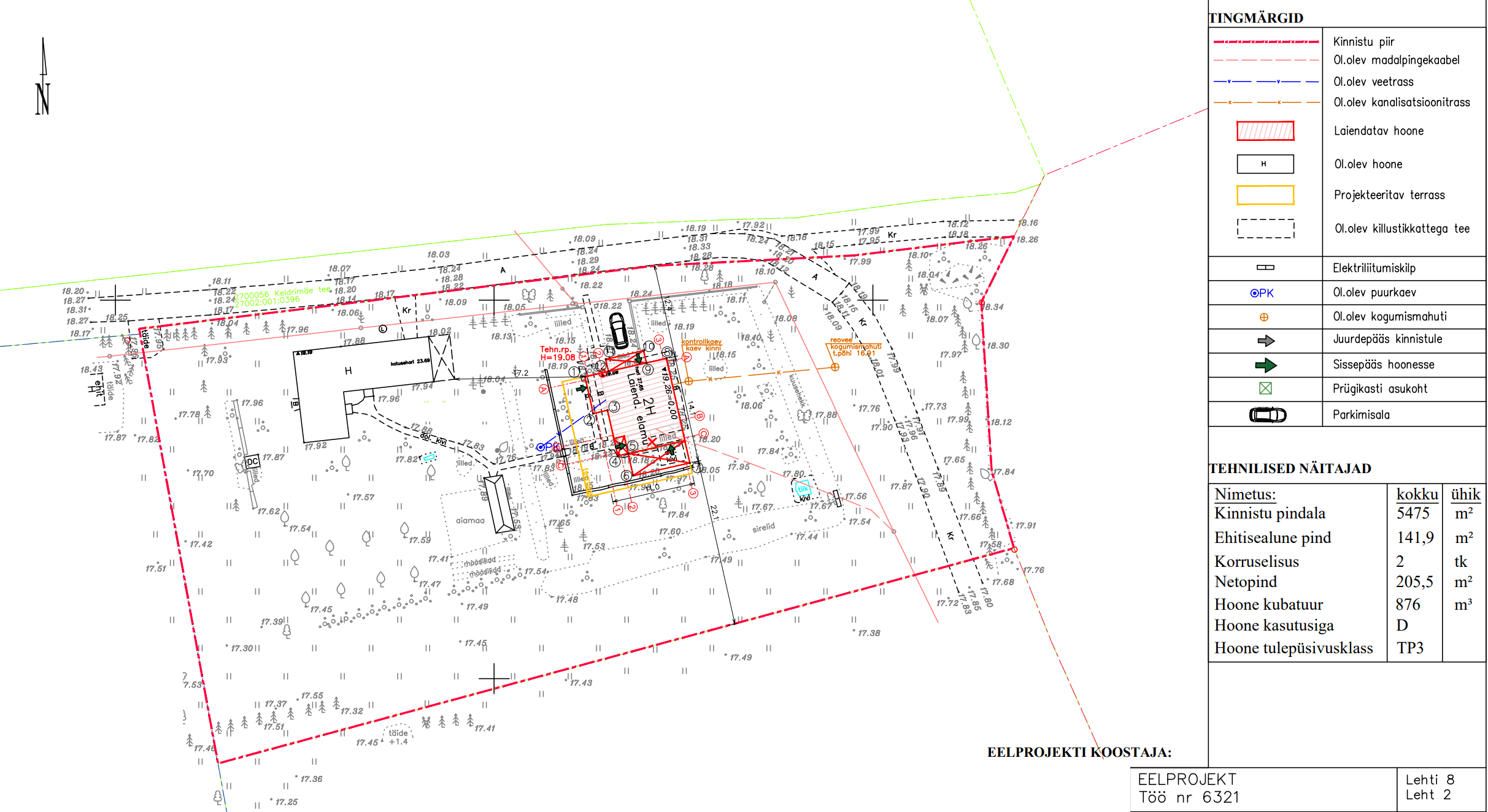
Käsil on Ants Melliku tüüpprojekti järgi 1980ndadel ehitatud elamu renoveerimine. Töödega on alustatud aprillis ja esimesed tööd (vundament, drenaaž) saavad kohe lõpetatud.
Puudu on projektid ventilatsiooni-, kütte- ja elektrisüsteemidele ja ootame nende hinnapakkumisi.
Projekt näeb küttelahendusena ette õhk-vesi soojuspumba paigaldamist ja põrandakütet, kuid nüüd kaldume pigem maakütte ja soojuspuuraukude poole. Samas soovime säilitada puu- ja pelletkütte võimalust (pliit, soe müür, kaminahi, võimalik et ka keskkütteahi). Ka need tuleb renoveerimistööde käigus välja vahetada. Isegi kui keskkütteahju pole kohe vaja, siis peaks jääma võimalus see tulevikus vajadusel paigaldada ja uue küttesüsteemiga (põrandaküte) ühendada.
Projekt on lisatud ja objekt ise asub Kaarma külas, Saaremaal.
Hea nõu ventilatsiooni-, kütte- ja elektrisüsteemide optimeerimiseks on igati teretulnud.

Pildid, video ja failid

Hanke korraldaja: eraisik ID69233

Pakkumised

Pakkumisi kokku: 1

Ettevõte Summa Käibemaks Lisatud Vestlus
Kasutaja ikoon ID39049
Pakkuja profiil Väike nool paremale
2 700€ KM lisandub KM lisandub 24.05.2022 Vestlus (0)

Küsimused hanke korraldajale

Küsimus: private ID39049   24.05.2022 13:51
Saan aru et käsil olemasoleva ehitusloa alusel elamu renoveerimine ja eesmägiks saada madalate kuludega elamu.
Kas elamul on enrgiamärgis?
Kas on mingi küttekulude ülempiir mida renoveerimisel silmas peetakse?
Projekteerimisel vaja arvestada teiste kinnistul asuvate objektidega.

Hindan elamu KVVK- ja elektriprojekti maksumuseks ca 2700 €+km
Hind ei sisalda soojuspuuraukude projekteerimist

Eeldan et topo-geodeetiline alsuplaan ja hoone joonised on dwg kujul olemas?

Teavita reeglite rikkumisest

Korraldaja vastus: 25.05.2022 16:49

Geoalus ja dwg failid on olemas ja renoveerimine on käsil olemasoleva ehitusteatise alusel ja energiakulud võiksid olla nii madalad kui võimalik.
Elamul energiamärgist ei ole.
Küttekulud võiksid olla nii madalad kui vähegi võimalik.
Küttesüsteem on planeeritud ainult renoveeritava elamu teenindamiseks.

Teavita reeglite rikkumisest

Küsimus: private ID39049   25.05.2022 18:25
Palun kontrolli kas saan õieti aru
Saan aru et vesi tuleb puurkaevust ja läheb reoveemahutisse
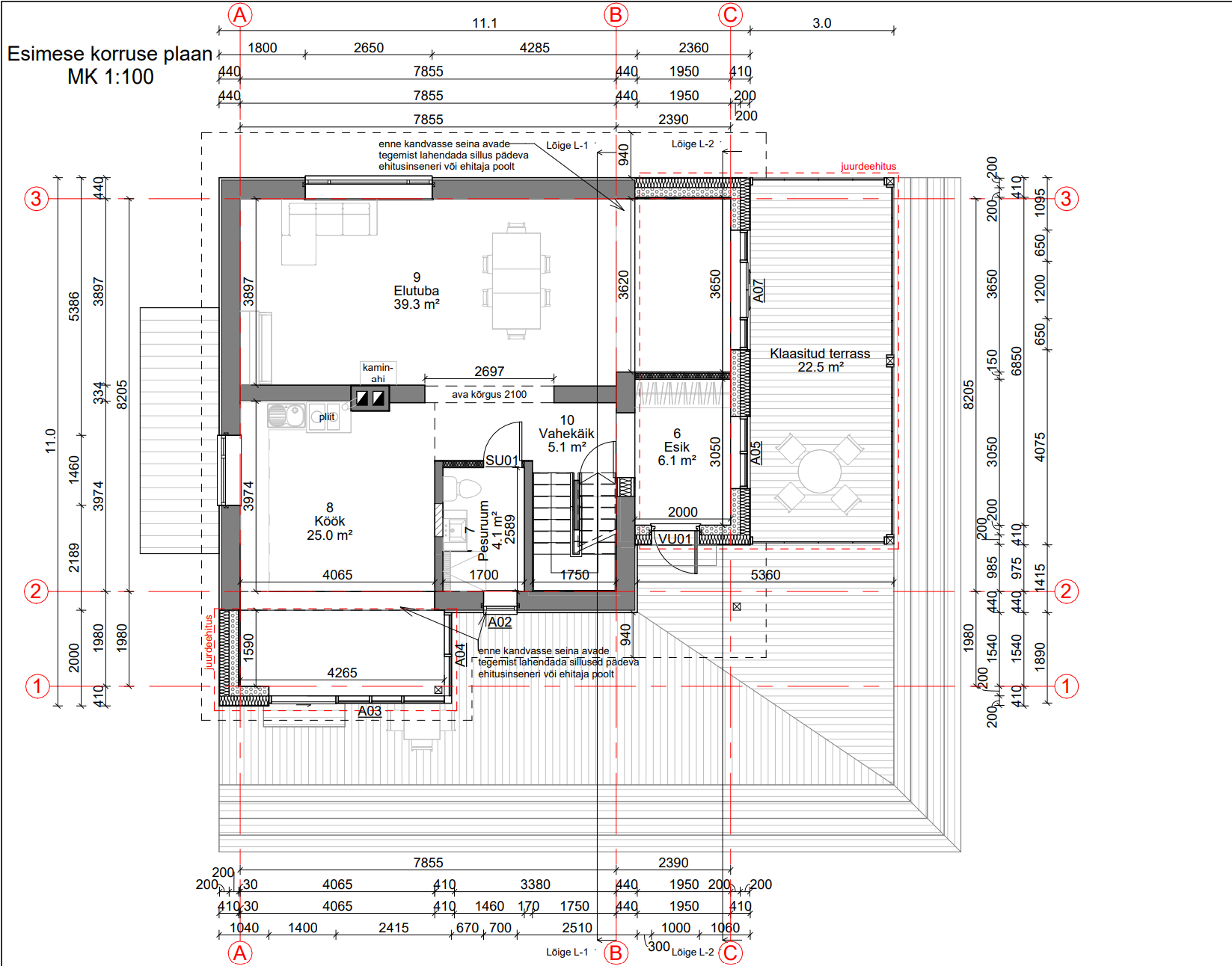
Hoonesse tuleb soojustagastusega ventilatsioon.
Vesipõrandaküte
Elekter tuleb õhuliinist ja nii jääb (maakaablisse ümber ei tõsta)
Side jaoks statsionaarset kaablit ei kavanda? (kas Teliast on uuritud statsionaarse side võimalusi?). Side käib üle õhu.
TV pilt tuleb TV antennist ja/või traadita side vahenditega?
Elamusse tuleb mingi valveseade ja suitsuandurid
Kõrvalhooned saavad toite elamu kilbist

NB!
hoone soojatarbimine sõltub eelkõige konstruktsioonide soojuspidavusest.
Kas elamu konstruktsioonid on mingis projektis kirjeldatud?

lk

Teavita reeglite rikkumisest

Korraldaja vastus: 25.05.2022 21:49

Jah, vesi tuleb puurkaevust ja läheb reoveemahutisse.
Jah, hoonesse tuleb soojustagastusega ventilatsioon.
Jah tuleb vesipõrandaküte + puuküttega ahi esimesele korrusele ja puuküttega pliit.
Elektri kaabel tuleb majja maa seest ja elektripost on majast umbes 50m kaugusel.
Hetkel statsionaarne side kaabel puudub.
Tv pilt tuleb antenniga ja traadita sidevahenditega.
Valveseadme kohta ei oska öelda aga suitsuandur tuleb kindlasti.
Krundil on üks kõrvalhoone ja see saab voolu elamu kilbist.

Ehitise kandvad välisseinad on kivikonstruktsioonist, teisel korrusel puidust. Katust kannavad
puitsarikad

Teavita reeglite rikkumisest

Lisa küsimus

Lisa küsimus

Minu pakkumine

Reeglid

Pakkumise kirjelduse väli on mõeldud pakkumise detailsemaks lahti kirjutamiseks. Pikema teksti mugavaks sisestamiseks klikkige kasti paremal ülaservas oleval ikoonil.
Pakkumist tehes on keelatud postitada enda kontaktandmeid (nimi, telefon, aadress jne). Me jälgime ja analüüsime pakkumisi, et vältida pettuseid ja reeglite rikkumisi.
Rikkumise puhul kasutajakonto blokeeritakse.

 

Teisi töid samas valdkonnas

Valdkonnas "Projekteerimine" on 7 aktiivset tööd

no-img Pilt puudub

1-kordse 120 m2 elumaja põhiprojekt

Asukoht: Harjumaa, Metsanurme
Aega jäänud: 8p 8h
Tehtud pakkumisi: 4

no-img Pilt puudub

Saunamaja eelprojekt ehitusteatiseks

Asukoht: Lääne-Virumaa
Aega jäänud: 1p 8h
Tehtud pakkumisi: 3

Vanemad teated:

Vaata kõiki

Sellel veebilehel kasutatakse küpsiseid. Kasutamist jätkates nõustute küpsiste kasutamisega.

Sulge
 
Minu pakkumine

Reeglid

Pakkumise kirjelduse väli on mõeldud pakkumise detailsemaks lahti kirjutamiseks. Pikema teksti mugavaks sisestamiseks klikkige kasti paremal ülaservas oleval ikoonil.
Pakkumist tehes on keelatud postitada enda kontaktandmeid (nimi, telefon, aadress jne). Me jälgime ja analüüsime pakkumisi, et vältida pettuseid ja reeglite rikkumisi.
Rikkumise puhul kasutajakonto blokeeritakse.