+ Lisa oma töö      

Otsid ehitajat "Ehitusprojektid" valdkonnast?

Parima pakkumise ja teostaja leidmiseks lisa oma töö.

Hange on lõppenud!

Võitjaks osutus kasutaja ID 37465

Korraldaja hinnang tehtud tööle

5.0
27.07.2022
Töökiirus: 12345
Kvaliteet: 12345
Hind: 12345

Igati meeldiv kogemus, sest projekti koostaja oli kohusetundlik, täpne, soovidega arvestav ning pidas aegadest kinni. Vastused küsimustele tulid kiirelt ning andis omapoolseid soovitusi. Soovitan kõigile. Edu edaspidiseks! - Mati R.

Saunahoone projekteerimine

ID 72414

772 vaatamist

Prindi

  • check Pakkumiste tegemine
    kuni 01.06.2022
  • check Võitja valik kuni
    08.06.2022
  • 3 Töö teostamine
    ja hinnang
Hanke lõpp: K, 1. juuni, 2022
Maakond: Jõgevamaa
Muu asula: Lohusuu
Tööde algus: K, 01. juuni, 2022 (Soovituslik)
Tööde lõpp: E, 25. juuli, 2022
Ehitusmaterjalid: Töö tellija poolt
Soovin pakkumisi: Summa kogu projektile

Töö sisu

Tere
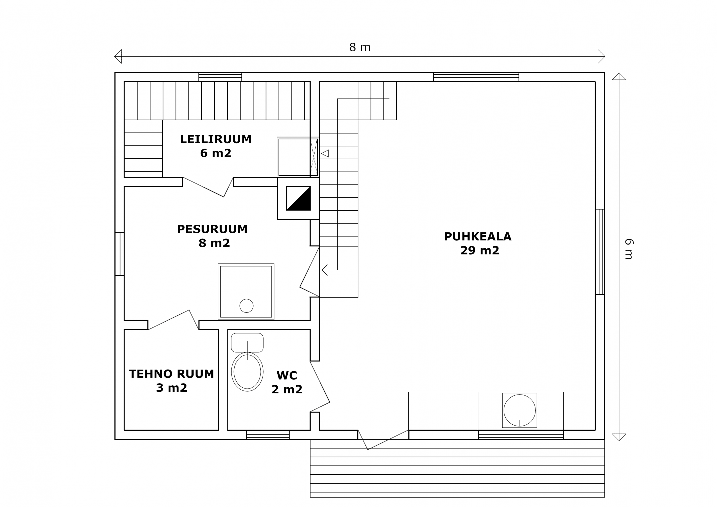
otsin sauna ehitusprojekti koostajat (+ kooskõlastajat ehk ehitusteatise vormistamine). Geoalus on olemas. Sauna vundamendialuse pinna suurus võiks olla ligikaudu 50 ruutmeetrit. Hoone asukoht katastriüksusel on teada, sest eelnevalt on rajatud veetrass ja kanalisatsioon koos septikuga. Hoone tuleb viilkatusega. Esialgne mõte on, et on lintvundament valatud põrandaga või plaatvundament ja elektriline põrandaküte. Fiboplokkseinad (väikeplokk + soojustus 150 mm+dist-liist+voodrilaud), puitlaed ja sarikad. Välisseinad soojustatakse kivivillaga, viimistluseks voodrilauad. Aknad PVC 2x. Sauna leiliruumi köetakse eesruumist (puhkeruumist). WC. Saunaala kohal nn poolkorrus (magamiskohtade jaoks). Hoonesse sissepääsu pool terrass. Orienteeruvalt midagi sellist, kuid võibolla on teil ka sauna tüüpprojekte või mõni varasemalt tehtud saunahoone projekt, mida annaks sobivusel kasutada.

Pildid, video ja failid

Hanke korraldaja: eraisik ID63938

Pakkumised

Pakkumisi kokku: 2

Ettevõte Summa Käibemaks Lisatud Vestlus
Kasutaja ikoon ID37465
Pakkuja profiil Väike nool paremale
800€ Sisaldab KM Sisaldab KM 24.05.2022 Vestlus (0)

Pakkumise kirjeldus:

Tere

Saunahoone projekti koostamise hind sisaldab:

-Jooniseid: korruste plaanid, katuse ja vundamendi plaan, lõige, vaateid, avatäidete spetsifikatsiooni ja asendiplaani.
-Seletuskirja
-Projekti sisestamine ehitusregistrisse.
-Ehitusteatise esitamist.

Kuna katusealune poolkorrus tuleb suhteliselt madal, siis aitame leida sellele parima katusela ... Rohkem

Kasutaja ikoon ID40011
Pakkuja profiil Väike nool paremale
800€ Sisaldab KM Sisaldab KM 25.05.2022 Vestlus (0)

Küsimused hanke korraldajale

Hanke korraldajale ei ole veel küsimusi esitatud.

Lisa küsimus

Lisa küsimus

Minu pakkumine

Reeglid

Pakkumise kirjelduse väli on mõeldud pakkumise detailsemaks lahti kirjutamiseks. Pikema teksti mugavaks sisestamiseks klikkige kasti paremal ülaservas oleval ikoonil.
Pakkumist tehes on keelatud postitada enda kontaktandmeid (nimi, telefon, aadress jne). Me jälgime ja analüüsime pakkumisi, et vältida pettuseid ja reeglite rikkumisi.
Rikkumise puhul kasutajakonto blokeeritakse.

 

Teisi töid samas valdkonnas

Valdkonnas "Ehitusprojektid" on 6 aktiivset tööd

no-img Pilt puudub

Ehitusinsener tase 7 vastutav allikiri

Asukoht: Pärnumaa, Pärnu
Aega jäänud: 19h 36 min
Tehtud pakkumisi: 2

Korteri elektri projekt

Asukoht: Harjumaa, Tallinn
Aega jäänud: 2p 19h
Tehtud pakkumisi: 2

Vanemad teated:

Vaata kõiki

Sellel veebilehel kasutatakse küpsiseid. Kasutamist jätkates nõustute küpsiste kasutamisega.

Sulge
 
Minu pakkumine

Reeglid

Pakkumise kirjelduse väli on mõeldud pakkumise detailsemaks lahti kirjutamiseks. Pikema teksti mugavaks sisestamiseks klikkige kasti paremal ülaservas oleval ikoonil.
Pakkumist tehes on keelatud postitada enda kontaktandmeid (nimi, telefon, aadress jne). Me jälgime ja analüüsime pakkumisi, et vältida pettuseid ja reeglite rikkumisi.
Rikkumise puhul kasutajakonto blokeeritakse.