+ Lisa oma töö      

Otsid ehitajat "Katusetööd" valdkonnast?

Parima pakkumise ja teostaja leidmiseks lisa oma töö.

Katuse ja vahekorruse ehitus fermidest

ID 72411

535 vaatamist

Prindi

  • check Pakkumiste tegemine
    kuni 17.06.2022
  • check Võitja valik kuni
    24.06.2022
  • 3 Töö teostamine
    ja hinnang
Hanke lõpp: R, 17. juuni, 2022
Maakond: Pärnumaa
Muu asula: Mäeküla
Tööde algus: R, 01. juuli, 2022 (Soovituslik)
Tööde lõpp: N, 01. september, 2022 (Soovituslik)
Ehitusmaterjalid: Töö tellija poolt
Soovin pakkumisi: Summa kogu projektile

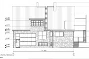
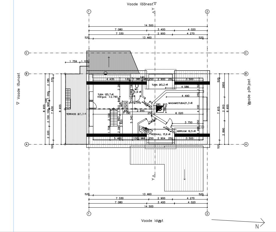
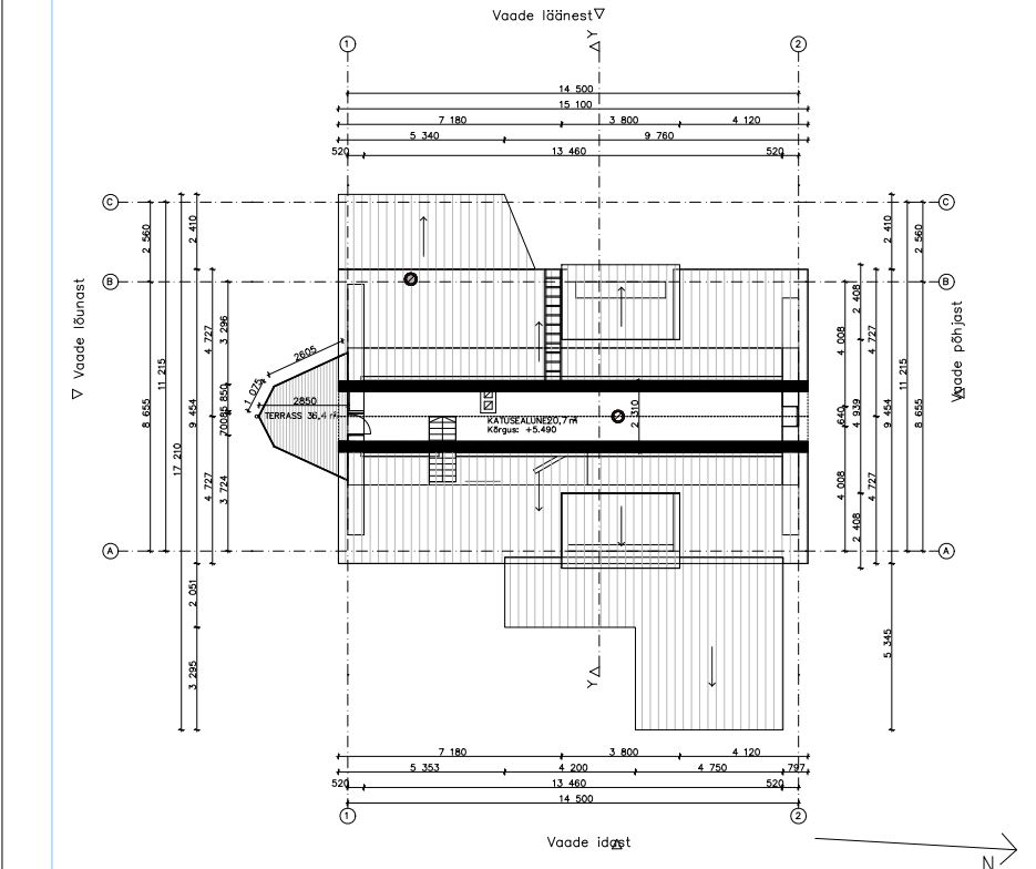
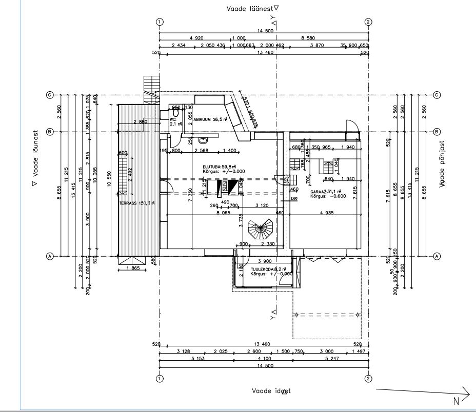
Töö sisu

Vana katuse, roovituse, peno, sarikate, vahelae talade , saepuru plaadi eemaldus, vanade akende eemaldus
Uute fermide, katusekivi paigaldus, villa paigaldus, roovi paigaldus, tuuletõkke kanga paigaldus,aurutõkke paberi paigaldus 3kihti tuulekastide ehitus, eeskoja ehitamine Aerocist 375 ja vundament, bitüümeni paigaldus, vahelaele osb paigaldus(kokku 3 kihti), põrandakütte paigaldus 2 korrust, kipsivalu ettevalmistus 2 korrust, ühe puidust vaheseina ehitus ca 4m, vintskappide ehitus 2 tk, neeluplekid, harjaplekid, vihmaveerennid, näriliste võrgu paigaldus räästakasti ja eeskoja vundamendi alla

https://www.mitekbaltic.lv/mitek3d/?3d_id=b2ba16fb-48a6-4094-9d6c-6e04b4ba5169

Pildid, video ja failid

Hanke korraldaja: eraisik ID56309

Pakkumised

Pakkumisi kokku: 1

Ettevõte Summa Käibemaks Lisatud Vestlus
Kasutaja ikoon ID40056
Pakkuja profiil Väike nool paremale
130 000€ Ikoon kell KM lisandub KM lisandub 14.06.2022 Vestlus (0)

Pakkumise kirjeldus:

Materjal pole hinnas

Küsimused hanke korraldajale

Küsimus: private ID59528   19.05.2022 05:25
Tere kas pdf formaadis jooniseid ei ole ?

Parimat,

Erik

Teavita reeglite rikkumisest

Korraldaja vastus: 19.05.2022 10:10

Tere

Paraku ei ole

Teavita reeglite rikkumisest

Lisa küsimus

Lisa küsimus

Minu pakkumine

Reeglid

Pakkumise kirjelduse väli on mõeldud pakkumise detailsemaks lahti kirjutamiseks. Pikema teksti mugavaks sisestamiseks klikkige kasti paremal ülaservas oleval ikoonil.
Pakkumist tehes on keelatud postitada enda kontaktandmeid (nimi, telefon, aadress jne). Me jälgime ja analüüsime pakkumisi, et vältida pettuseid ja reeglite rikkumisi.
Rikkumise puhul kasutajakonto blokeeritakse.

 

Teisi töid samas valdkonnas

Valdkonnas "Katusetööd" on 9 aktiivset tööd

no-img Pilt puudub

Käidava katuse PVC 54m2

Asukoht: Harjumaa, Muraste
Aega jäänud: 4p 11h
Tehtud pakkumisi: 3

Garaaži katuse vahetamine

Asukoht: Harjumaa, Viimsi
Aega jäänud: 13p 11h
Tehtud pakkumisi: 2

Vanemad teated:

Vaata kõiki

Sellel veebilehel kasutatakse küpsiseid. Kasutamist jätkates nõustute küpsiste kasutamisega.

Sulge
 
Minu pakkumine

Reeglid

Pakkumise kirjelduse väli on mõeldud pakkumise detailsemaks lahti kirjutamiseks. Pikema teksti mugavaks sisestamiseks klikkige kasti paremal ülaservas oleval ikoonil.
Pakkumist tehes on keelatud postitada enda kontaktandmeid (nimi, telefon, aadress jne). Me jälgime ja analüüsime pakkumisi, et vältida pettuseid ja reeglite rikkumisi.
Rikkumise puhul kasutajakonto blokeeritakse.