+ Lisa oma töö      

Otsid ehitajat "Projekteerimine" valdkonnast?

Parima pakkumise ja teostaja leidmiseks lisa oma töö.

Puukuuri projekteerimise lõpetamine

ID 72288

669 vaatamist

Prindi

  • check Pakkumiste tegemine
    kuni 23.05.2022
  • check Võitja valik kuni
    30.05.2022
  • 3 Töö teostamine
    ja hinnang
Hanke lõpp: E, 23. mai, 2022
Maakond: Harjumaa
Muu asula: Kose
Tööde algus: E, 23. mai, 2022 (Soovituslik)
Tööde lõpp: E, 30. mai, 2022 (Soovituslik)
Ehitusmaterjalid: Töö tellija poolt
Soovin pakkumisi: Summa kogu projektile

Töö sisu

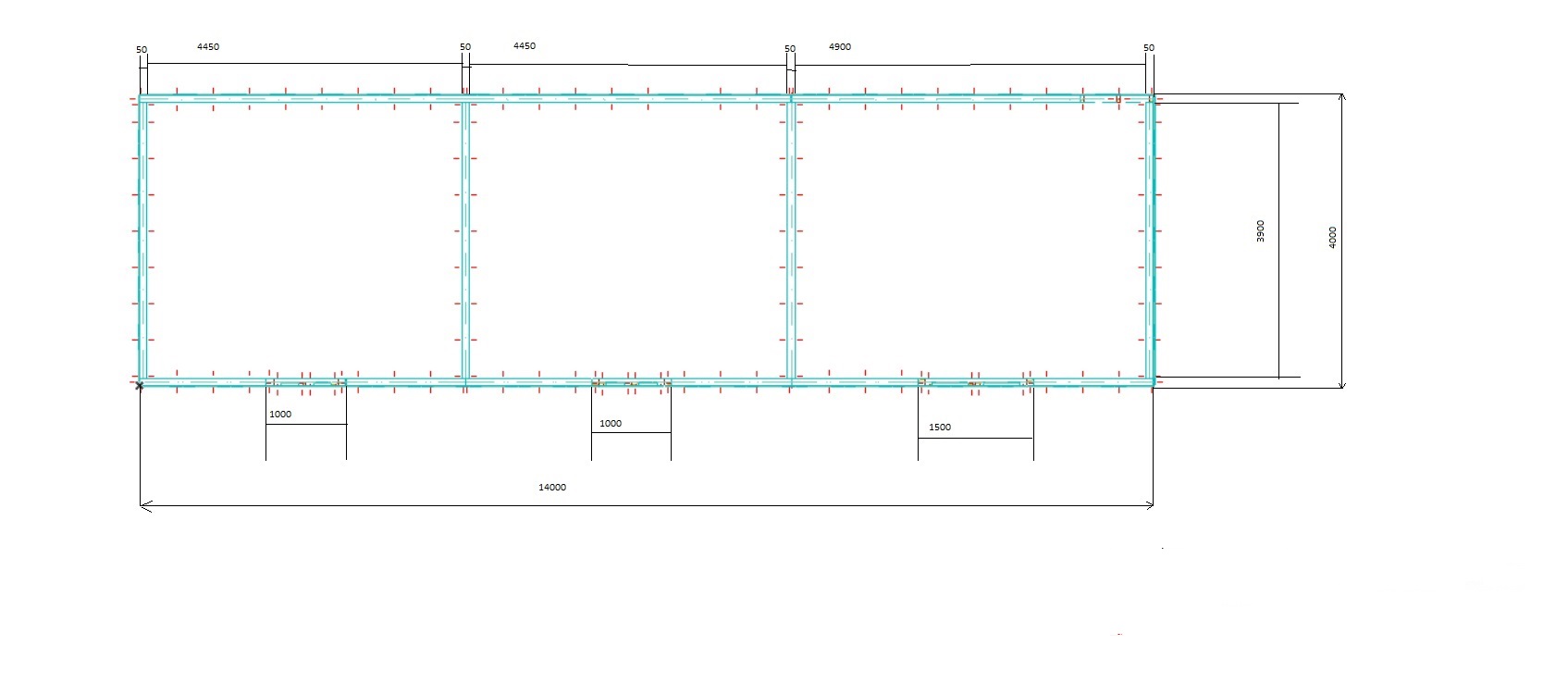
Vajalik puukuuri projektidokumentatsiooni koostamine. Võimalik, et jooniste täiendamine. Projektijoonised on mingil kujul olemas. Ehitusteatis on esitatud, kuid nõutakse seletuskirja, asendiplaani (kuigi ehitusteatises on asend kaardil märgitud).

Pildid, video ja failid

Hanke korraldaja: eraisik ID35549

Pakkumised

Pakkumisi kokku: 2

Ettevõte Summa Käibemaks Lisatud Vestlus
Kasutaja ikoon ID53569
Pakkuja profiil Väike nool paremale
700€ Ei ole KMKR Ei ole KMKR 17.05.2022 Vestlus (0)

Pakkumise kirjeldus:

Ehitusteatise esitamine vastavalt kohaliku omavalitsuse nõuetele:

Töödega teostame kõik vajaliku dokumentatsiooni. Seal hulgas projekti täiendused ja selle muudatused, seletuskirja ja asendiplaani.

Menetluse alla koondatakse kõik kohaliku omavalitsuse esitatud vajaminevad dokumendid.

Projektijuht ja koostaja Diplomeeritud ehitusinsener, tase 7 ... Rohkem

Kasutaja ikoon ID63676
Pakkuja profiil Väike nool paremale
800€ Sisaldab KM Sisaldab KM 18.05.2022 Vestlus (0)

Pakkumise kirjeldus:

Pakkumine sisaldab ehitusprojekti koostamist.

Ehitusprojekt sisaldab:

* Asendiplaan maa ameti ortofotol. (Geodeetilist alusplaani pakkumine ei sisalda).
* Põhiplaan
* Vaated
* Lõige
* Seletuskiri

Ehitusprojekt on nõuetekohane ja kohalikule omavalitsusele esitamiseks sobiv.

Vajadusel saab lisada ka kooskõlastamist kohaliku omavalitsusega ... Rohkem

Küsimused hanke korraldajale

Hanke korraldajale ei ole veel küsimusi esitatud.

Lisa küsimus

Lisa küsimus

Minu pakkumine

Reeglid

Pakkumise kirjelduse väli on mõeldud pakkumise detailsemaks lahti kirjutamiseks. Pikema teksti mugavaks sisestamiseks klikkige kasti paremal ülaservas oleval ikoonil.
Pakkumist tehes on keelatud postitada enda kontaktandmeid (nimi, telefon, aadress jne). Me jälgime ja analüüsime pakkumisi, et vältida pettuseid ja reeglite rikkumisi.
Rikkumise puhul kasutajakonto blokeeritakse.

 

Teisi töid samas valdkonnas

Valdkonnas "Projekteerimine" on 7 aktiivset tööd

no-img Pilt puudub

1-kordse 120 m2 elumaja põhiprojekt

Asukoht: Harjumaa, Metsanurme
Aega jäänud: 8p 5h
Tehtud pakkumisi: 4

no-img Pilt puudub

Saunamaja eelprojekt ehitusteatiseks

Asukoht: Lääne-Virumaa
Aega jäänud: 1p 5h
Tehtud pakkumisi: 3

Vanemad teated:

Vaata kõiki

Sellel veebilehel kasutatakse küpsiseid. Kasutamist jätkates nõustute küpsiste kasutamisega.

Sulge
 
Minu pakkumine

Reeglid

Pakkumise kirjelduse väli on mõeldud pakkumise detailsemaks lahti kirjutamiseks. Pikema teksti mugavaks sisestamiseks klikkige kasti paremal ülaservas oleval ikoonil.
Pakkumist tehes on keelatud postitada enda kontaktandmeid (nimi, telefon, aadress jne). Me jälgime ja analüüsime pakkumisi, et vältida pettuseid ja reeglite rikkumisi.
Rikkumise puhul kasutajakonto blokeeritakse.