+ Lisa oma töö      

Otsid ehitajat "Ehitusprojektid" valdkonnast?

Parima pakkumise ja teostaja leidmiseks lisa oma töö.

Hange on lõppenud!

Võitjaks osutus kasutaja ID 37465

Korraldaja hinnang tehtud tööle

5.0
28.06.2022
Töökiirus: 12345
Kvaliteet: 12345
Hind: 12345

Töö kiire ja korralik! Aitäh! - Mina O.

Väikemaja projekteerimine. Ehitusteatise saamiseks.

ID 71693

1434 vaatamist

Prindi

  • check Pakkumiste tegemine
    kuni 14.05.2022
  • check Võitja valik kuni
    21.05.2022
  • 3 Töö teostamine
    ja hinnang
Hanke lõpp: L, 14. mai, 2022
Maakond: Pärnumaa
Tööde algus: L, 14. mai, 2022 (Soovituslik)
Tööde lõpp: T, 14. juuni, 2022 (Soovituslik)
Ehitusmaterjalid: Töö tellija poolt
Soovin pakkumisi: Summa kogu projektile

Töö sisu

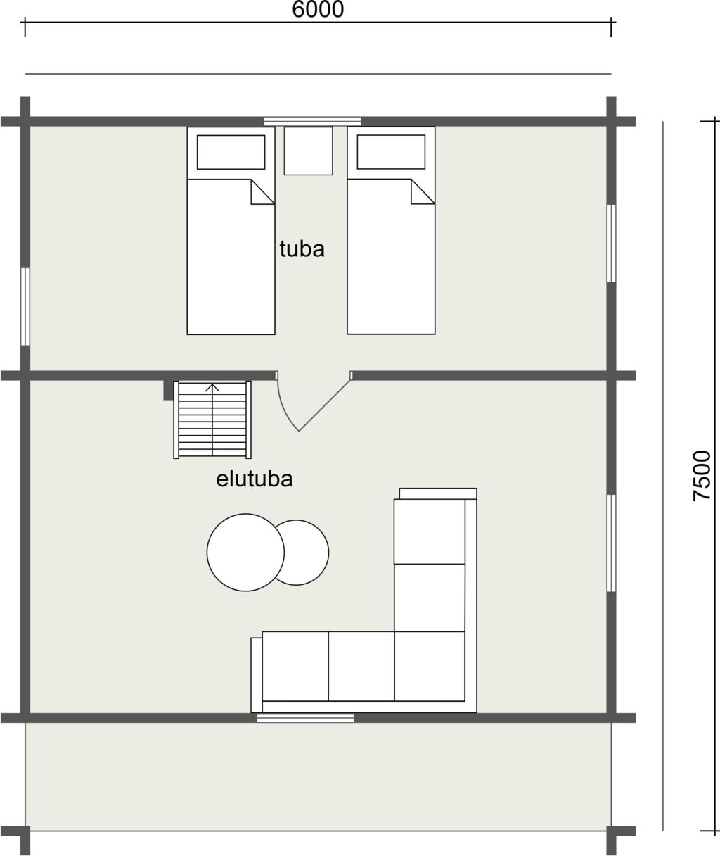
Vaja on jooniste järgi teha projekt suve/väikemajale, ehitusteatiseks.
Maja aluspindala 55 m2.
On olemas joonised.
Asendiplaan.
Asukoht: Saarde vald, Pärnu maakond.

Pildid, video ja failid

Hanke korraldaja: eraisik ID68810

Pakkumised

Pakkumisi kokku: 1

Ettevõte Summa Käibemaks Lisatud Vestlus
Kasutaja ikoon ID37465
Pakkuja profiil Väike nool paremale
800€ Ei ole KMKR Ei ole KMKR 13.05.2022 Vestlus (1)

Pakkumise kirjeldus:

Tere

Projekti koostamise hind sisaldab:

-Jooniseid: korruste plaanid, katuse ja vundamendi plaan, lõige, vaateid ja asendiplaani.
-Seletuskirja
-Projekti esitamine läbi ehitusregistri ja ehitisteatise esitamist.

Juhul, kui on vaja lisajooniseid või vald nõuab asendiplaani koostamist geoalusele (mitte maa-ameti kaardiservestist võetud plaanile ... Rohkem

Küsimused hanke korraldajale

Hanke korraldajale ei ole veel küsimusi esitatud.

Lisa küsimus

Lisa küsimus

Minu pakkumine

Reeglid

Pakkumise kirjelduse väli on mõeldud pakkumise detailsemaks lahti kirjutamiseks. Pikema teksti mugavaks sisestamiseks klikkige kasti paremal ülaservas oleval ikoonil.
Pakkumist tehes on keelatud postitada enda kontaktandmeid (nimi, telefon, aadress jne). Me jälgime ja analüüsime pakkumisi, et vältida pettuseid ja reeglite rikkumisi.
Rikkumise puhul kasutajakonto blokeeritakse.

 

Teisi töid samas valdkonnas

Valdkonnas "Ehitusprojektid" on 6 aktiivset tööd

no-img Pilt puudub

Ehitusinsener tase 7 vastutav allikiri

Asukoht: Pärnumaa, Pärnu
Aega jäänud: 21h 47 min
Tehtud pakkumisi: 2

Korteri elektri projekt

Asukoht: Harjumaa, Tallinn
Aega jäänud: 2p 21h
Tehtud pakkumisi: 2

Vanemad teated:

Vaata kõiki

Sellel veebilehel kasutatakse küpsiseid. Kasutamist jätkates nõustute küpsiste kasutamisega.

Sulge
 
Minu pakkumine

Reeglid

Pakkumise kirjelduse väli on mõeldud pakkumise detailsemaks lahti kirjutamiseks. Pikema teksti mugavaks sisestamiseks klikkige kasti paremal ülaservas oleval ikoonil.
Pakkumist tehes on keelatud postitada enda kontaktandmeid (nimi, telefon, aadress jne). Me jälgime ja analüüsime pakkumisi, et vältida pettuseid ja reeglite rikkumisi.
Rikkumise puhul kasutajakonto blokeeritakse.