+ Lisa oma töö      

Otsid ehitajat "Elektritööd" valdkonnast?

Parima pakkumise ja teostaja leidmiseks lisa oma töö.

2 toalise korteri elektrisüsteemi vahetus

ID 71389

1036 vaatamist

Prindi

  • check Pakkumiste tegemine
    kuni 06.05.2022
  • check Võitja valik kuni
    13.05.2022
  • 3 Töö teostamine
    ja hinnang
Hanke lõpp: R, 6. mai, 2022
Maakond: Tartumaa
Tööde algus: E, 15. august, 2022 (Soovituslik)
Tööde lõpp: K, 31. august, 2022 (Soovituslik)
Ehitusmaterjalid: Töö tellija poolt
Soovin pakkumisi: Summa kogu projektile

Töö sisu

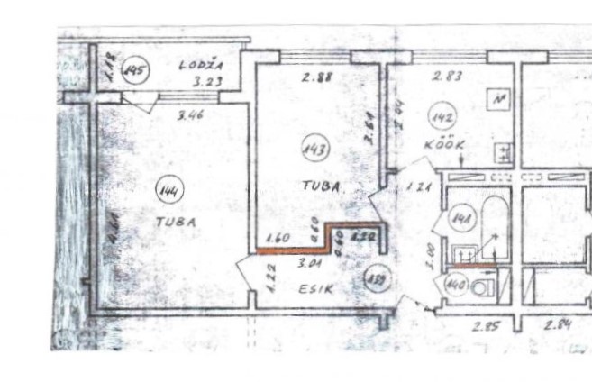
Soov on vahetada korteris välja kogu elektrisüsteem.

Asukoht: Tartumaa Luunja

Eeldatavad tööd:
Elektriprojekt
Korteri sisese el.kilbi paigaldus.
Vajadusel juhtme soonte freesimine (kuna tuleb ka uus põrand täiesti nullist, siis peaks saama kaabelduse viia osaliselt aluspõranda alla)
Kaablite vedamine
Lülitite ümberpaigutus
Pistikupesade paigaldus
El.kilbi ühendused

Materjalid tööde teostaja poolt.
Mõned lülitid tulevad ka trimmeriga.

Palun pakkumisse kindlasti märkida eeldatav tööde kestvus ja pakkumine lahti kirjutada.

Tööde teostaja peab olema elektritööde jaoks litsents.
Valgustite/lülitite/pistikute asukohad selgitamisel.

Pildid, video ja failid

Hanke korraldaja: eraisik ID59457

Pakkumised

Pakkumisi kokku: 3

Ettevõte Summa Käibemaks Lisatud Vestlus
Kasutaja ikoon ID68640
Pakkuja profiil Väike nool paremale
3 000€ Sisaldab KM Sisaldab KM 01.05.2022 Vestlus (0)

Pakkumise kirjeldus:

Tööde kestvus 2 päeva.Kuna pistikupesade,lülitite,dimmerite arv ega sari pole teada siis täpset pakkumist raske teha.Välja toodud hinnas arvestatud korralike keskmiste toodetega.

Kasutaja ikoon ID57636
Pakkuja profiil Väike nool paremale
2 800€ Sisaldab KM Sisaldab KM 02.05.2022 Vestlus (0)

Pakkumise kirjeldus:

Kogemustega elektrikud, töö kiire.

Kasutaja ikoon ID67947
Pakkuja profiil Väike nool paremale
4 000€ Sisaldab KM Sisaldab KM 03.05.2022 Vestlus (0)

Pakkumise kirjeldus:

Materjal:
Kaabel
Seadmetoosid
Pistikupesad ja lülitid
Põrandaküte termostaat

Töö:
Teostusjoonis
Montaažitööd:
Soonte ning toosiavade freesimine
Kaabeldustööd
Seadmetooside paigaldus
Pistikupesade ja lülitite paigaldus
Põrandaküte kaabli paigaldus
Termostaadi paigaldus
Kilbi paigaldus ning ühendus

Vajadusel audit ja mõõdist ... Rohkem

Küsimused hanke korraldajale

Küsimus: private ID31451   26.04.2022 23:24
Hanke korraldajale: Kui valite võitjat, jälgige ka palun et ettevõttel oleks pädevus elektritöid teostada Mtr-i järgi. Siin risustavad hanked torumehed, taksojuhid ja muidutöllerdised kellel puudub selle töö tegemise õigus.
Tänan tähelepanu eest:)

Teavita reeglite rikkumisest

Korraldaja vastus:
Hanke korraldaja ei ole küsimusele veel vastanud

Küsimus: private ID67947   03.05.2022 18:01
Tere
Kas uus põrand tuleb betoonist?
Kas vannituppa tuleb põrandaküte?
Pakkumisse ei saa materjali kulu lisada, kuna puudub info pistikupesade ja lülitite koguste ning asukohade kohta.
Millised tarbijad tulevad?

Teavita reeglite rikkumisest

Korraldaja vastus: 03.05.2022 18:22

Põrand tuleb laagidele. Jah vannituppa tuleb põrandaküte.
Vannituppa 2-3 pistikupesa (kuivati , pesumasin ja muuks otstarbeks)
Suurde tuppa kindlasti kaks kahest ja kaks ühest pistikupesa ja trimmeriga lüliti.
Esikusse kuni 2 ühest pistikupesa j üks lüliti
Magamistuppa 3-4 ühest pistikupesa ja trimmeriga lüliti.
Köök: pistikupesade arv 8 (pliit, ahi, külmik, mikrouun, jms. kodutehnika) ja üks lüliti

Teavita reeglite rikkumisest

Lisa küsimus

Lisa küsimus

Minu pakkumine

Reeglid

Pakkumise kirjelduse väli on mõeldud pakkumise detailsemaks lahti kirjutamiseks. Pikema teksti mugavaks sisestamiseks klikkige kasti paremal ülaservas oleval ikoonil.
Pakkumist tehes on keelatud postitada enda kontaktandmeid (nimi, telefon, aadress jne). Me jälgime ja analüüsime pakkumisi, et vältida pettuseid ja reeglite rikkumisi.
Rikkumise puhul kasutajakonto blokeeritakse.

 

Teisi töid samas valdkonnas

Valdkonnas "Elektritööd" on 5 aktiivset tööd

Vana talu elektrisüsteemi uuendamine (kilp, pistikud, välivalgustus, EV valmidus)

Asukoht: Raplamaa, Suurekivi
Aega jäänud: 1p 11h
Tehtud pakkumisi: 5

Kaablite vahetus paneelmaja korteris ja siseviimistlus

Asukoht: Harjumaa, Tallinn
Aega jäänud: 6p 11h
Tehtud pakkumisi: 3

Vanemad teated:

Vaata kõiki

Sellel veebilehel kasutatakse küpsiseid. Kasutamist jätkates nõustute küpsiste kasutamisega.

Sulge
 
Minu pakkumine

Reeglid

Pakkumise kirjelduse väli on mõeldud pakkumise detailsemaks lahti kirjutamiseks. Pikema teksti mugavaks sisestamiseks klikkige kasti paremal ülaservas oleval ikoonil.
Pakkumist tehes on keelatud postitada enda kontaktandmeid (nimi, telefon, aadress jne). Me jälgime ja analüüsime pakkumisi, et vältida pettuseid ja reeglite rikkumisi.
Rikkumise puhul kasutajakonto blokeeritakse.