+ Lisa oma töö      

Otsid ehitajat "Ehitusprojektid" valdkonnast?

Parima pakkumise ja teostaja leidmiseks lisa oma töö.

Eramu kasutusloa taotlemine

ID 70992

495 vaatamist

Prindi

  • check Pakkumiste tegemine
    kuni 25.04.2022
  • check Võitja valik kuni
    02.05.2022
  • 3 Töö teostamine
    ja hinnang
Hanke lõpp: E, 25. aprill, 2022
Maakond: Harjumaa
Linn: Tallinn
Tööde algus: E, 25. aprill, 2022 (Soovituslik)
Tööde lõpp: T, 31. mai, 2022 (Soovituslik)
Ehitusmaterjalid: Töö tellija poolt
Soovin pakkumisi: Summa kogu projektile

Töö sisu

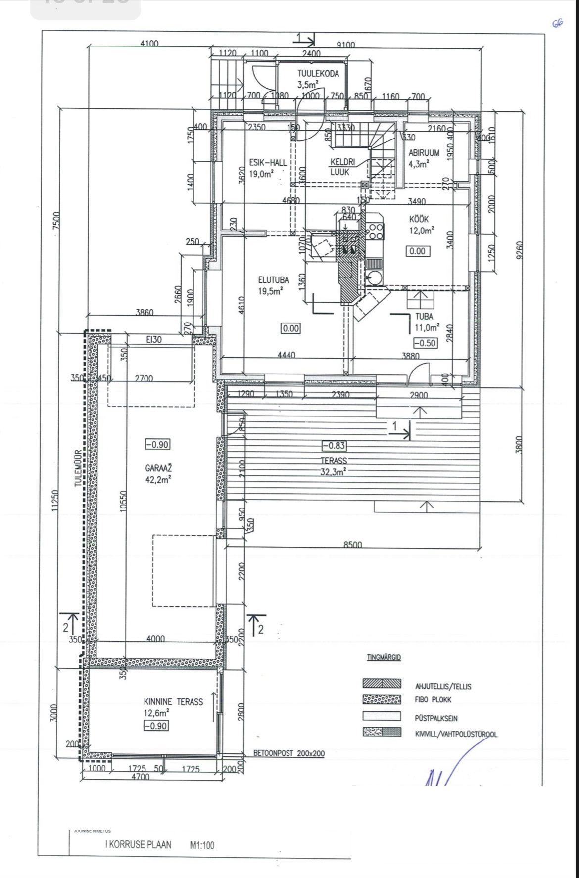
Vaja on abi nõukaaegse eramu kasutusloa taotlemisel Tallinnas Pirital.
Majal on üheksakümnendatel tehtud ümberehitusi ning 2010 on nende seadustamiseks ning puuduste likvideerimiseks taotletud ehitusluba mis toona ka väljastati. Tööd aga on tegemata jäetud ning ehitusluba on aegunud.
Tuleohutusnõuete täitmiseks on vaja garaaži katus ümber ehitada, eelmise ehitusloa projekt seda hõlmab aga tõenäoliselt tuleb seda kohendada ja võimalik et ka uutele nõuetele vastavaks projekteerida.

Vaja oleks:
- projektile teha korrektuurid ning ebatäpsused kõrvaldada. Olemas on digialus aga selles on puudusi ning ilmselt tuleb teostajal see mõnevõrra uuesti teha.
- võtta kogu linnavalitsuse ning teiste instantsidega suhtlemine endale
- nõustada garaaži katuse ehitusprojektiga

Lisaks võib pakkuda tuhaplokkidest ehitatud kõrvalhoone lammutamisloa taotlemist.

Taotlemise projekti käigus on tehtud ja kasutamiseks olemas järgnevad:
- Tallinna linna arhiist on saadud eelmine allkirjadega projekt
- Hoone ehitusekspertiis on koostatud
- Küttekollete audit on olemas
- Elektrisüsteemide audit on olemas
- Geodeedi geoalus

Töö teostajalt ootame aktiivset kaasa mõtlemist ning võimalikult vähest protsessi venimist.

Kindlasti esitage täpsustavaid küsimusi.

Pildid, video ja failid

Hanke korraldaja: eraisik ID42919

Pakkumised

Pakkumisi kokku: 2

Ettevõte Summa Käibemaks Lisatud Vestlus
Kasutaja ikoon ID53569
Pakkuja profiil Väike nool paremale
2 800€ Ei ole KMKR Ei ole KMKR 13.04.2022 Vestlus (0)

Pakkumise kirjeldus:

Olemasoleva info põhjal saan esitada hinnaks 2800 EUR.

Hind sisaldab kogu asja ajamist kohaliku omavalitsusega ja teie poolt olemasolevate dokumentide esitamist ning soovitud nõustamisi.

Tasu ei sisalda riigilõivusid.

Seadustamise töid teostavad kutsetunnistust omavad diplomeeritud inseneri tase 7 isikud.

Kasutaja ikoon ID46636
Pakkuja profiil Väike nool paremale
2 700€ Sisaldab KM Sisaldab KM 25.04.2022 Vestlus (0)

Pakkumise kirjeldus:

Tere . Teie esitatud teabe põhjal usume, et selles töös on vaja läbida kaks etappi. Esimene on uus ehitusluba, teine ​​kasutusluba. See töö võtab kokku umbes 4 kuud. meie pakkumine sisaldab kõiki võimalikke töid hinna kokkuleppimiseks 2.700 eurot .Ei sisalda kohustuslikke riigilõiv.

Küsimused hanke korraldajale

Hanke korraldajale ei ole veel küsimusi esitatud.

Lisa küsimus

Lisa küsimus

Minu pakkumine

Reeglid

Pakkumise kirjelduse väli on mõeldud pakkumise detailsemaks lahti kirjutamiseks. Pikema teksti mugavaks sisestamiseks klikkige kasti paremal ülaservas oleval ikoonil.
Pakkumist tehes on keelatud postitada enda kontaktandmeid (nimi, telefon, aadress jne). Me jälgime ja analüüsime pakkumisi, et vältida pettuseid ja reeglite rikkumisi.
Rikkumise puhul kasutajakonto blokeeritakse.

 

Teisi töid samas valdkonnas

Valdkonnas "Ehitusprojektid" on 5 aktiivset tööd

no-img Pilt puudub

Kortermaja kõigi ruumide mõõdistamine ja DWG faili koostamine

Asukoht: Harjumaa, Tallinn
Aega jäänud: 2p 2h
Tehtud pakkumisi: 2

Korterelamu mõõdistusprojekti koostamine ja jooniste digitaliseerimine

Asukoht: Lääne-Virumaa, Tapa
Aega jäänud: 5p 2h
Tehtud pakkumisi: 2

Vanemad teated:

Vaata kõiki

Sellel veebilehel kasutatakse küpsiseid. Kasutamist jätkates nõustute küpsiste kasutamisega.

Sulge
 
Minu pakkumine

Reeglid

Pakkumise kirjelduse väli on mõeldud pakkumise detailsemaks lahti kirjutamiseks. Pikema teksti mugavaks sisestamiseks klikkige kasti paremal ülaservas oleval ikoonil.
Pakkumist tehes on keelatud postitada enda kontaktandmeid (nimi, telefon, aadress jne). Me jälgime ja analüüsime pakkumisi, et vältida pettuseid ja reeglite rikkumisi.
Rikkumise puhul kasutajakonto blokeeritakse.