+ Lisa oma töö      

Otsid ehitajat "Ehitusprojektid" valdkonnast?

Parima pakkumise ja teostaja leidmiseks lisa oma töö.

Eramaja omanikujärelvalve

ID 70708

662 vaatamist

Prindi

  • check Pakkumiste tegemine
    kuni 18.04.2022
  • check Võitja valik kuni
    25.04.2022
  • 3 Töö teostamine
    ja hinnang
Hanke lõpp: E, 18. aprill, 2022
Maakond: Harjumaa
Muu asula: Tiskre
Tööde algus: K, 15. juuni, 2022 (Kohustuslik)
Tööde lõpp: N, 01. juuni, 2023 (Soovituslik)
Ehitusmaterjalid: Töö tellija poolt
Soovin pakkumisi: Summa kogu projektile

Töö sisu

Eramaja omanikujärelvalve
Tööde algus juuni keskel.
Vene keele valdamine on plussiks.

Pildid, video ja failid

Hanke korraldaja: eraisik ID4237

Pakkumised

Pakkumisi kokku: 2

Ettevõte Summa Käibemaks Lisatud Vestlus
Kasutaja ikoon ID59154
Pakkuja profiil Väike nool paremale
450€ KM lisandub KM lisandub 05.04.2022 Vestlus (3)

Pakkumise kirjeldus:

Hinnapakkumus sisaldab ühe kuu tasu.
Hinnapakkumus sisaldab pinnase kandevõime määramineInspector-seadmega (kuni 5 mõõtepunkti)
Hinnapakkumus sisaldab objekti lõpus termograafia pilte.
Omanikujärelevalve ehituse ajal (1 korda nädalas). Kui vajadus suureneb lepitakse hind eraldi kokku

Kasutaja ikoon ID58624
Pakkuja profiil Väike nool paremale
538€ Ei ole KMKR Ei ole KMKR 17.04.2022 Vestlus (0)

Pakkumise kirjeldus:

Makse ei lisandu.

Küsimused hanke korraldajale

Küsimus: private ID62289   04.04.2022 10:33
Tere,
Kas tegemist renoveerimisega ,või uue ehitamisega?

Teavita reeglite rikkumisest

Korraldaja vastus: 04.04.2022 10:45

Tere,
Uus ehitus

Teavita reeglite rikkumisest

Küsimus: private ID58624   04.04.2022 16:49
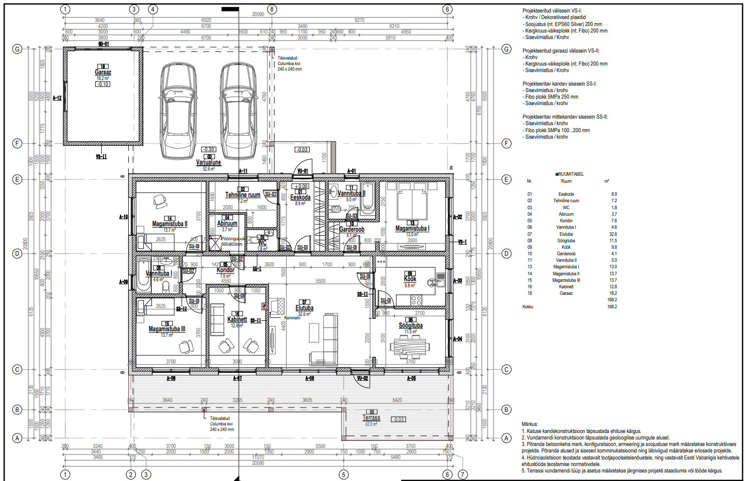
Kas ehitatavast majast on võimalik lisada vaated ja plaan?

Teavita reeglite rikkumisest

Korraldaja vastus: 04.04.2022 17:00

Tere,
Lisatud

Teavita reeglite rikkumisest

Küsimus: private ID58624   04.04.2022 17:03
Kas maja ehitab algusest lõpuni üks peatöövõtu firma?

Teavita reeglite rikkumisest

Korraldaja vastus: 04.04.2022 17:13

Saja protsendiliselt ei saa õelda et üks firma teostab kõik tõõd. Vöimalus on aga eu tea kuidas läheb.
Praegu vundamenti lepping all kirjutanud, seinad pakkutud.

Teavita reeglite rikkumisest

Lisa küsimus

Lisa küsimus

Minu pakkumine

Reeglid

Pakkumise kirjelduse väli on mõeldud pakkumise detailsemaks lahti kirjutamiseks. Pikema teksti mugavaks sisestamiseks klikkige kasti paremal ülaservas oleval ikoonil.
Pakkumist tehes on keelatud postitada enda kontaktandmeid (nimi, telefon, aadress jne). Me jälgime ja analüüsime pakkumisi, et vältida pettuseid ja reeglite rikkumisi.
Rikkumise puhul kasutajakonto blokeeritakse.

 

Teisi töid samas valdkonnas

Valdkonnas "Ehitusprojektid" on 5 aktiivset tööd

no-img Pilt puudub

Kortermaja kõigi ruumide mõõdistamine ja DWG faili koostamine

Asukoht: Harjumaa, Tallinn
Aega jäänud: 2p 2h
Tehtud pakkumisi: 2

Korterelamu mõõdistusprojekti koostamine ja jooniste digitaliseerimine

Asukoht: Lääne-Virumaa, Tapa
Aega jäänud: 5p 2h
Tehtud pakkumisi: 2

Vanemad teated:

Vaata kõiki

Sellel veebilehel kasutatakse küpsiseid. Kasutamist jätkates nõustute küpsiste kasutamisega.

Sulge
 
Minu pakkumine

Reeglid

Pakkumise kirjelduse väli on mõeldud pakkumise detailsemaks lahti kirjutamiseks. Pikema teksti mugavaks sisestamiseks klikkige kasti paremal ülaservas oleval ikoonil.
Pakkumist tehes on keelatud postitada enda kontaktandmeid (nimi, telefon, aadress jne). Me jälgime ja analüüsime pakkumisi, et vältida pettuseid ja reeglite rikkumisi.
Rikkumise puhul kasutajakonto blokeeritakse.