+ Lisa oma töö      

Otsid ehitajat "Projekteerimine" valdkonnast?

Parima pakkumise ja teostaja leidmiseks lisa oma töö.

Hange on lõppenud!

Võitjaks osutus kasutaja ID 68200

Vundamendi projekteerimine ja tööjoonised

ID 69931

524 vaatamist

Prindi

  • check Pakkumiste tegemine
    kuni 17.04.2022
  • check Võitja valik kuni
    17.04.2022
  • 3 Töö teostamine
    ja hinnang
Hanke lõpp: P, 17. aprill, 2022
Maakond: Harjumaa
Muu asula: Patika
Tööde algus: E, 14. märts, 2022 (Soovituslik)
Tööde lõpp: N, 31. märts, 2022 (Soovituslik)
Ehitusmaterjalid: Töö tegija poolt
Soovin pakkumisi: Summa kogu projektile

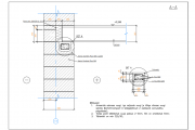
Töö sisu

Sooviks pakkumist eramu vundamendi projektile.
Ühekordne plaatvundamendiga eramu. Vundamendi pindala 166m2.

Projektis näeb ette 2xEPS100 soojustus kuid võimalusel kaaluks 3x soojustust.

Majal on elutoas planeeritud kamin.

Pildid, video ja failid

Hanke korraldaja: eraisik ID61417

Pakkumised

Pakkumisi kokku: 1

Ettevõte Summa Käibemaks Lisatud Vestlus
Kasutaja ikoon ID68200
Pakkuja profiil Väike nool paremale
1 400€ Ei ole KMKR Ei ole KMKR 01.04.2022 Vestlus (3)

Pakkumise kirjeldus:

1. Koormuste arvutus vundamendile;
2. Arvutuse seletuskirja koostamine;
3. Joonised koos armatuuri kogusega(kohtsõlmed)
4. Soovi korral soojustuse laotise joonised;

Küsimused hanke korraldajale

Küsimus: private ID68200   01.04.2022 13:33
Tere,

terrassi ei arvestata või soovite r/b poste paigaldada/lint/kruvivaid?

Kas teil on pinnaseuuring tehtud või mingeid andmed, et teada veetaset ja pinnase kihte.

Teavita reeglite rikkumisest

Korraldaja vastus: 02.04.2022 13:56

Tere,

Terassi võiks samuti arvestada kui aus olla. Milline kõige mõistlikum ja kuluefektiivsem lahendus oleks ? Kuna terass on suur, siis ehk raudbetoon taldimikud ?

Pinnaseuuringut ei ole tehtud. Kas Geoloogiliselt baaskaardilt vajalikku infot ei ole võimalik saada ?

Teavita reeglite rikkumisest

Küsimus: private ID68200   04.04.2022 10:31
Jah, ikka talmikud samuti sobivad.

Mõned asjad geokaardilt saan võtta.

Teavita reeglite rikkumisest

Korraldaja vastus:
Hanke korraldaja ei ole küsimusele veel vastanud

Lisa küsimus

Lisa küsimus

Minu pakkumine

Reeglid

Pakkumise kirjelduse väli on mõeldud pakkumise detailsemaks lahti kirjutamiseks. Pikema teksti mugavaks sisestamiseks klikkige kasti paremal ülaservas oleval ikoonil.
Pakkumist tehes on keelatud postitada enda kontaktandmeid (nimi, telefon, aadress jne). Me jälgime ja analüüsime pakkumisi, et vältida pettuseid ja reeglite rikkumisi.
Rikkumise puhul kasutajakonto blokeeritakse.

 

Teisi töid samas valdkonnas

Valdkonnas "Projekteerimine" on 6 aktiivset tööd

no-img Pilt puudub

1-kordse 120 m2 elumaja põhiprojekt

Asukoht: Harjumaa, Metsanurme
Aega jäänud: 8p 14h
Tehtud pakkumisi: 4

no-img Pilt puudub

Saunamaja eelprojekt ehitusteatiseks

Asukoht: Lääne-Virumaa
Aega jäänud: 1p 14h
Tehtud pakkumisi: 3

Vanemad teated:

Vaata kõiki

Sellel veebilehel kasutatakse küpsiseid. Kasutamist jätkates nõustute küpsiste kasutamisega.

Sulge
 
Minu pakkumine

Reeglid

Pakkumise kirjelduse väli on mõeldud pakkumise detailsemaks lahti kirjutamiseks. Pikema teksti mugavaks sisestamiseks klikkige kasti paremal ülaservas oleval ikoonil.
Pakkumist tehes on keelatud postitada enda kontaktandmeid (nimi, telefon, aadress jne). Me jälgime ja analüüsime pakkumisi, et vältida pettuseid ja reeglite rikkumisi.
Rikkumise puhul kasutajakonto blokeeritakse.