+ Lisa oma töö      

Otsid ehitajat "Põrandaküte, paigaldus" valdkonnast?

Parima pakkumise ja teostaja leidmiseks lisa oma töö.

Õhk-vesi soojuspumba ja vesipõrandakütte paigaldus

ID 69768

551 vaatamist

Prindi

  • check Pakkumiste tegemine
    kuni 20.03.2022
  • check Võitja valik kuni
    27.03.2022
  • 3 Töö teostamine
    ja hinnang
Hanke lõpp: P, 20. märts, 2022
Maakond: Tartumaa
Tööde algus: E, 13. juuni, 2022 (Soovituslik)
Tööde lõpp: R, 30. september, 2022 (Soovituslik)
Ehitusmaterjalid: Töö tegija poolt
Soovin pakkumisi: Summa kogu projektile

Töö sisu

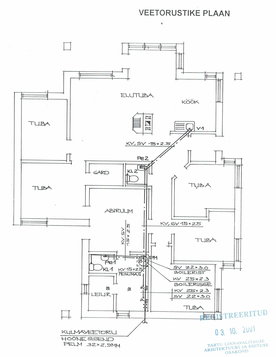
Olen huvitatud maja küttesüsteemi uuendamisest: paigaldada vesipõrandaküte ja õhk-vesi soojuspump. Tegemist on ühekorruselise kivimajaga Tartus, ehitusaasta 2002, köetavat pinda 145.5 m2.

Põrandaküttega ruumide pind oleks 128 m2, ehk kogu maja, v.a. leiliruum ja sauna eesruum, kuhu jääb alles praegune laudpõrand.

Vaja oleks üles võtta olemasolevad põrandad, paigaldada vesipõrandakütte
torustik, soojuspump (majasisene ja väline osa) ja ühendada torud. Esikus ja elutoas on võib-olla võimalik olemasolev parkett üles võtta ja tagasi maha panna.

Tööde teostamine peaks toimuma millalgi selle aasta suve jooksul (vahemikus
juuni-september). Lisan hoone joonised ja põrandaplaani. Plaan oleks paigaldada soojuspump millel on veepaak ka sisse ehitatud, ja see läheks samasse kohta, kus praegu on elektriboiler.

Pildid, video ja failid

Hanke korraldaja: eraisik ID63750

Pakkumised

Pakkumisi kokku: 0

Küsimused hanke korraldajale

Hanke korraldajale ei ole veel küsimusi esitatud.

Lisa küsimus

Lisa küsimus

Minu pakkumine

Reeglid

Pakkumise kirjelduse väli on mõeldud pakkumise detailsemaks lahti kirjutamiseks. Pikema teksti mugavaks sisestamiseks klikkige kasti paremal ülaservas oleval ikoonil.
Pakkumist tehes on keelatud postitada enda kontaktandmeid (nimi, telefon, aadress jne). Me jälgime ja analüüsime pakkumisi, et vältida pettuseid ja reeglite rikkumisi.
Rikkumise puhul kasutajakonto blokeeritakse.

 

Vanemad teated:

Vaata kõiki

Sellel veebilehel kasutatakse küpsiseid. Kasutamist jätkates nõustute küpsiste kasutamisega.

Sulge
 
Minu pakkumine

Reeglid

Pakkumise kirjelduse väli on mõeldud pakkumise detailsemaks lahti kirjutamiseks. Pikema teksti mugavaks sisestamiseks klikkige kasti paremal ülaservas oleval ikoonil.
Pakkumist tehes on keelatud postitada enda kontaktandmeid (nimi, telefon, aadress jne). Me jälgime ja analüüsime pakkumisi, et vältida pettuseid ja reeglite rikkumisi.
Rikkumise puhul kasutajakonto blokeeritakse.