+ Lisa oma töö      

Otsid ehitajat "Vundamenditööd" valdkonnast?

Parima pakkumise ja teostaja leidmiseks lisa oma töö.

Eramaja fibo vundamenti ehitus

ID 69474

810 vaatamist

Prindi

  • check Pakkumiste tegemine
    kuni 05.03.2022
  • check Võitja valik kuni
    12.03.2022
  • 3 Töö teostamine
    ja hinnang
Hanke lõpp: L, 5. märts, 2022
Maakond: Harjumaa
Muu asula: Tiskre
Tööde algus: P, 01. mai, 2022 (Soovituslik)
Tööde lõpp: T, 31. mai, 2022 (Soovituslik)
Ehitusmaterjalid: Töö tegija poolt
Soovin pakkumisi: Summa kogu projektile

Töö sisu

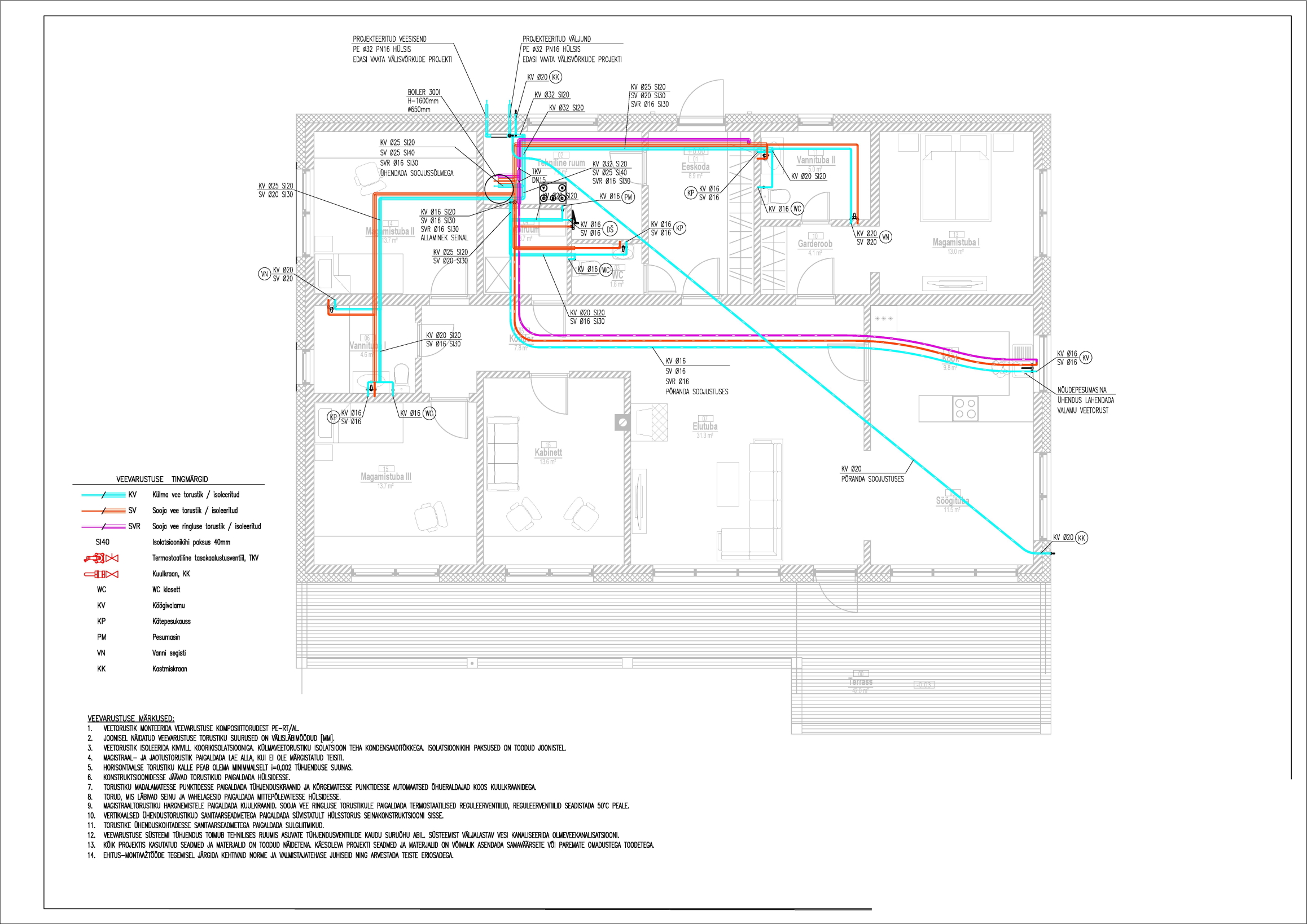
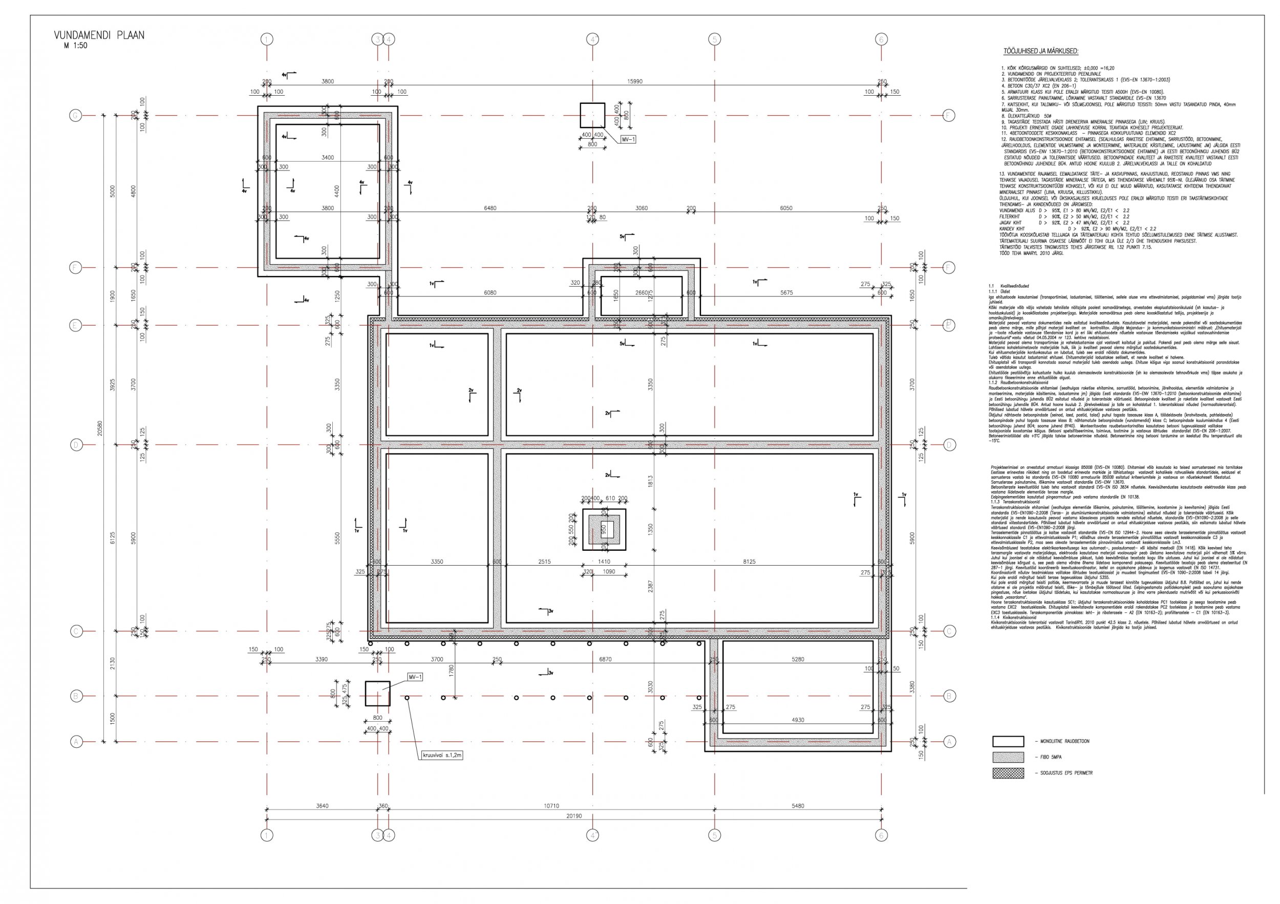
Eramaja vundamendi ja kõige kommunikatsioonide ehitus.
Krunt asub Tiskres, Harjumaal.
Lõpptulemusena peab olema soojustatud vundament vee, kanali ja küttetorudega vundament valmis maja karbi püstitamiseks.

Pildid, video ja failid

Hanke korraldaja: eraisik ID4237

Pakkumised

Pakkumisi kokku: 1

Ettevõte Summa Käibemaks Lisatud Vestlus
Kasutaja ikoon ID65365
Pakkuja profiil Väike nool paremale
39 975€ Sisaldab KM Sisaldab KM 21.02.2022 Vestlus (0)

Küsimused hanke korraldajale

Küsimus: private ID47813   20.02.2022 13:30
Tere

Kas saaksite jooniste PDF-id üles laadida?

Teavita reeglite rikkumisest

Korraldaja vastus: 20.02.2022 16:48

Tere,
Saan lisada PDFi ka. Kas midagi jäi puudu ?

Teavita reeglite rikkumisest

Küsimus: private ID50480   25.02.2022 16:41
Kas välistrassid liitumispunktist majani eraldi hankes või sama hanke raames. Kui on vaja teha -siis palun asendiplaan torustike joonistega lisada.

Teavita reeglite rikkumisest

Korraldaja vastus: 25.02.2022 16:50

Tere,
Tehke palun pakkumine llitumiseta.

Teavita reeglite rikkumisest

Küsimus: private ID50480   25.02.2022 16:53
Tere

kas kanalisatsiooni ja veetoru ots vundamendi alt välja jätte ja elektri/ side hülsid samuti?

Teavita reeglite rikkumisest

Korraldaja vastus: 25.02.2022 17:09

Tere,
Need siiski peavad olema pakkumises

Teavita reeglite rikkumisest

Küsimus: private ID59528   04.03.2022 06:42
Tere,

Oleme huvitatud katuse ehituse pakkumise tegemisest ?

Parimat,

Erik

Teavita reeglite rikkumisest

Korraldaja vastus:
Hanke korraldaja ei ole küsimusele veel vastanud

Lisa küsimus

Lisa küsimus

Minu pakkumine

Reeglid

Pakkumise kirjelduse väli on mõeldud pakkumise detailsemaks lahti kirjutamiseks. Pikema teksti mugavaks sisestamiseks klikkige kasti paremal ülaservas oleval ikoonil.
Pakkumist tehes on keelatud postitada enda kontaktandmeid (nimi, telefon, aadress jne). Me jälgime ja analüüsime pakkumisi, et vältida pettuseid ja reeglite rikkumisi.
Rikkumise puhul kasutajakonto blokeeritakse.

 

Vanemad teated:

Vaata kõiki

Sellel veebilehel kasutatakse küpsiseid. Kasutamist jätkates nõustute küpsiste kasutamisega.

Sulge
 
Minu pakkumine

Reeglid

Pakkumise kirjelduse väli on mõeldud pakkumise detailsemaks lahti kirjutamiseks. Pikema teksti mugavaks sisestamiseks klikkige kasti paremal ülaservas oleval ikoonil.
Pakkumist tehes on keelatud postitada enda kontaktandmeid (nimi, telefon, aadress jne). Me jälgime ja analüüsime pakkumisi, et vältida pettuseid ja reeglite rikkumisi.
Rikkumise puhul kasutajakonto blokeeritakse.