+ Lisa oma töö      

Otsid ehitajat "Projekteerimine" valdkonnast?

Parima pakkumise ja teostaja leidmiseks lisa oma töö.

Eelprojekti põhjal konstruktiivne projekt

ID 69165

466 vaatamist

Prindi

  • check Pakkumiste tegemine
    kuni 21.02.2022
  • check Võitja valik kuni
    28.02.2022
  • 3 Töö teostamine
    ja hinnang
Hanke lõpp: E, 21. veebruar, 2022
Maakond: Harjumaa
Muu asula: Vääna-Jõesuu
Tööde algus: T, 08. veebruar, 2022 (Soovituslik)
Tööde lõpp: E, 28. veebruar, 2022 (Soovituslik)
Ehitusmaterjalid: Töö tellija poolt
Soovin pakkumisi: Summa kogu projektile

Töö sisu

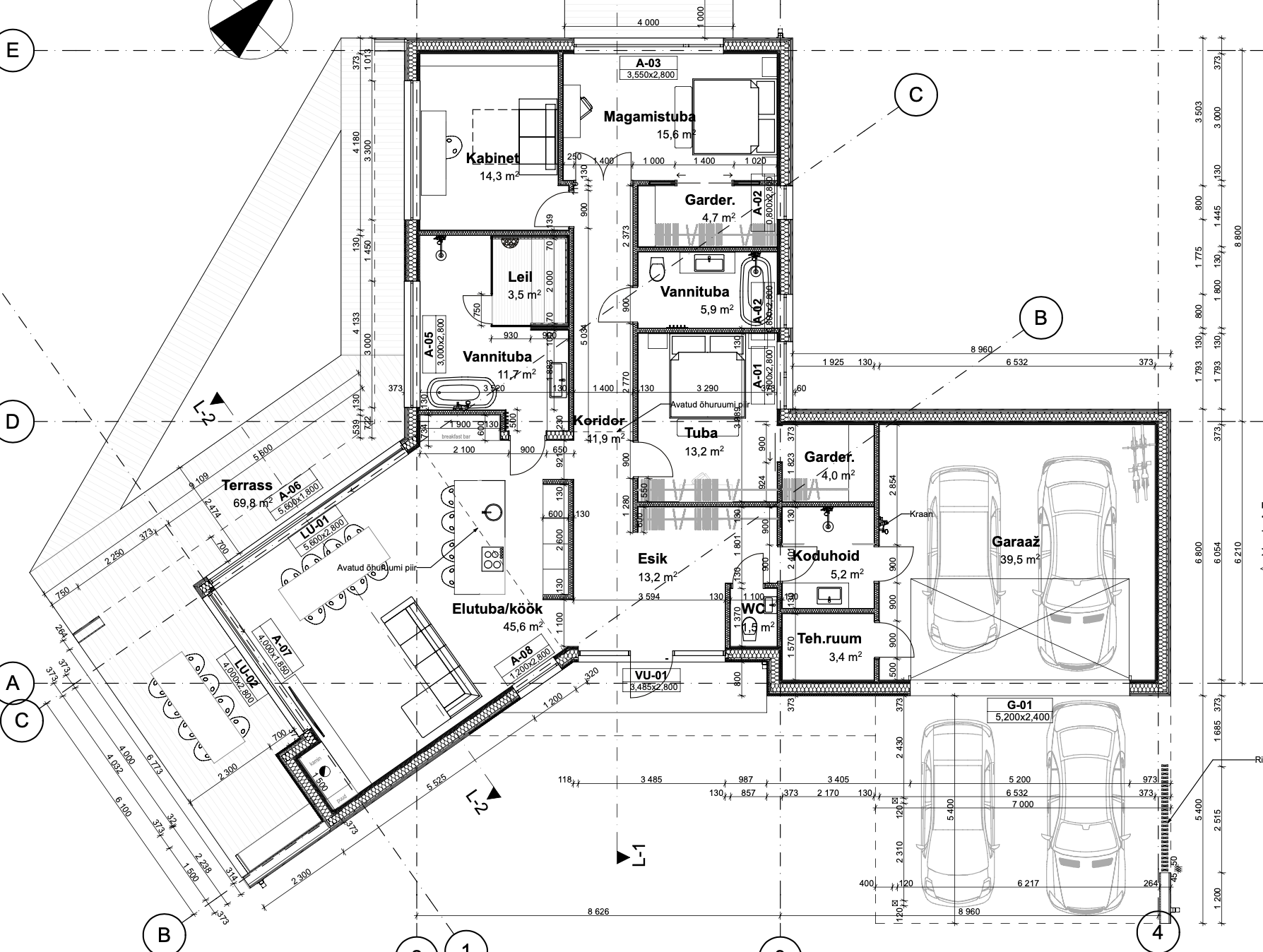
Olemas eelprojekt ja ehitusluba, vaja konstruktiivset projekti. 150m2 eramaja Vääna-Jõesuus.

Pildid, video ja failid

Hanke korraldaja: eraisik ID67348

Pakkumised

Pakkumisi kokku: 1

Ettevõte Summa Käibemaks Lisatud Vestlus
Kasutaja ikoon ID48870
Pakkuja profiil Väike nool paremale
4 850€ Ei ole KMKR Ei ole KMKR 21.02.2022 Vestlus (0)

Pakkumise kirjeldus:

Tere,
pakkumise hind sisaldab järgmist:
maja ehituskonstruktsioonide projekteerimine põhiprojekti staadiumis kooskõlas arhitektuurse projektiga (vt EVS 932:2017)
Projekti sisu:
1. konstruktsiooniarvutused
2. seletuskiri,
3. joonised
4. vundamendi plaan
5. aluspõrand - vajalikud lõiked, armatuuri mõõtmed, sammud,.
6. seinte/silluste-plaan, sõ ... Rohkem

Küsimused hanke korraldajale

Küsimus: private ID34784   08.02.2022 09:03
tere
kas oleks võimalik avaldada eelprojekti seletuskiri

Teavita reeglite rikkumisest

Korraldaja vastus: 08.02.2022 11:41

On ikka - https://www.dropbox.com/s/f7x5hhm6i5ryei8/LUIGE29_EP_AR-3-01_v01_Seletuskiri_2021-09-14.pdf?dl=0

Teavita reeglite rikkumisest

Küsimus: private ID47813   09.02.2022 22:42
Tere
Mis on projekti esitamise tähtaeg? Hankes märgitud tööde lõpp, 28.02 ei ole kindlasti tehtav.

Teavita reeglite rikkumisest

Korraldaja vastus: 09.02.2022 22:54

Olen avatud pakkumistele. Ilma kuupäevata polnud võimalik kuulutust üles laadida. :)

Teavita reeglite rikkumisest

Lisa küsimus

Lisa küsimus

Minu pakkumine

Reeglid

Pakkumise kirjelduse väli on mõeldud pakkumise detailsemaks lahti kirjutamiseks. Pikema teksti mugavaks sisestamiseks klikkige kasti paremal ülaservas oleval ikoonil.
Pakkumist tehes on keelatud postitada enda kontaktandmeid (nimi, telefon, aadress jne). Me jälgime ja analüüsime pakkumisi, et vältida pettuseid ja reeglite rikkumisi.
Rikkumise puhul kasutajakonto blokeeritakse.

 

Teisi töid samas valdkonnas

Valdkonnas "Projekteerimine" on 7 aktiivset tööd

no-img Pilt puudub

1-kordse 120 m2 elumaja põhiprojekt

Asukoht: Harjumaa, Metsanurme
Aega jäänud: 8p 10h
Tehtud pakkumisi: 4

no-img Pilt puudub

Saunamaja eelprojekt ehitusteatiseks

Asukoht: Lääne-Virumaa
Aega jäänud: 1p 10h
Tehtud pakkumisi: 3

Vanemad teated:

Vaata kõiki

Sellel veebilehel kasutatakse küpsiseid. Kasutamist jätkates nõustute küpsiste kasutamisega.

Sulge
 
Minu pakkumine

Reeglid

Pakkumise kirjelduse väli on mõeldud pakkumise detailsemaks lahti kirjutamiseks. Pikema teksti mugavaks sisestamiseks klikkige kasti paremal ülaservas oleval ikoonil.
Pakkumist tehes on keelatud postitada enda kontaktandmeid (nimi, telefon, aadress jne). Me jälgime ja analüüsime pakkumisi, et vältida pettuseid ja reeglite rikkumisi.
Rikkumise puhul kasutajakonto blokeeritakse.