+ Lisa oma töö      

Otsid ehitajat "Ehitusprojektid" valdkonnast?

Parima pakkumise ja teostaja leidmiseks lisa oma töö.

Hange on lõppenud!

Võitjaks osutus kasutaja ID 63115

Korraldaja hinnang tehtud tööle

5.0
14.04.2022
Töökiirus: 12345
Kvaliteet: 12345
Hind: 12345

Soovitan julgelt teistele! - Marko L.

Vee, kanalisatsiooni ja kütte projekt eramajale

ID 68981

1730 vaatamist

Prindi

  • check Pakkumiste tegemine
    kuni 23.02.2022
  • check Võitja valik kuni
    23.02.2022
  • 3 Töö teostamine
    ja hinnang
Hanke lõpp: K, 23. veebruar, 2022
Maakond: Lääne-Virumaa
Tööde algus: E, 31. jaanuar, 2022 (Soovituslik)
Tööde lõpp: E, 28. veebruar, 2022 (Soovituslik)
Ehitusmaterjalid: Töö tegija poolt
Soovin pakkumisi: Summa kogu projektile

Töö sisu

Vajalik siis eramaja jaoks,
Vee ja akanalisatsiooni projekti
Kütte projekti (õhk-vesi pump)

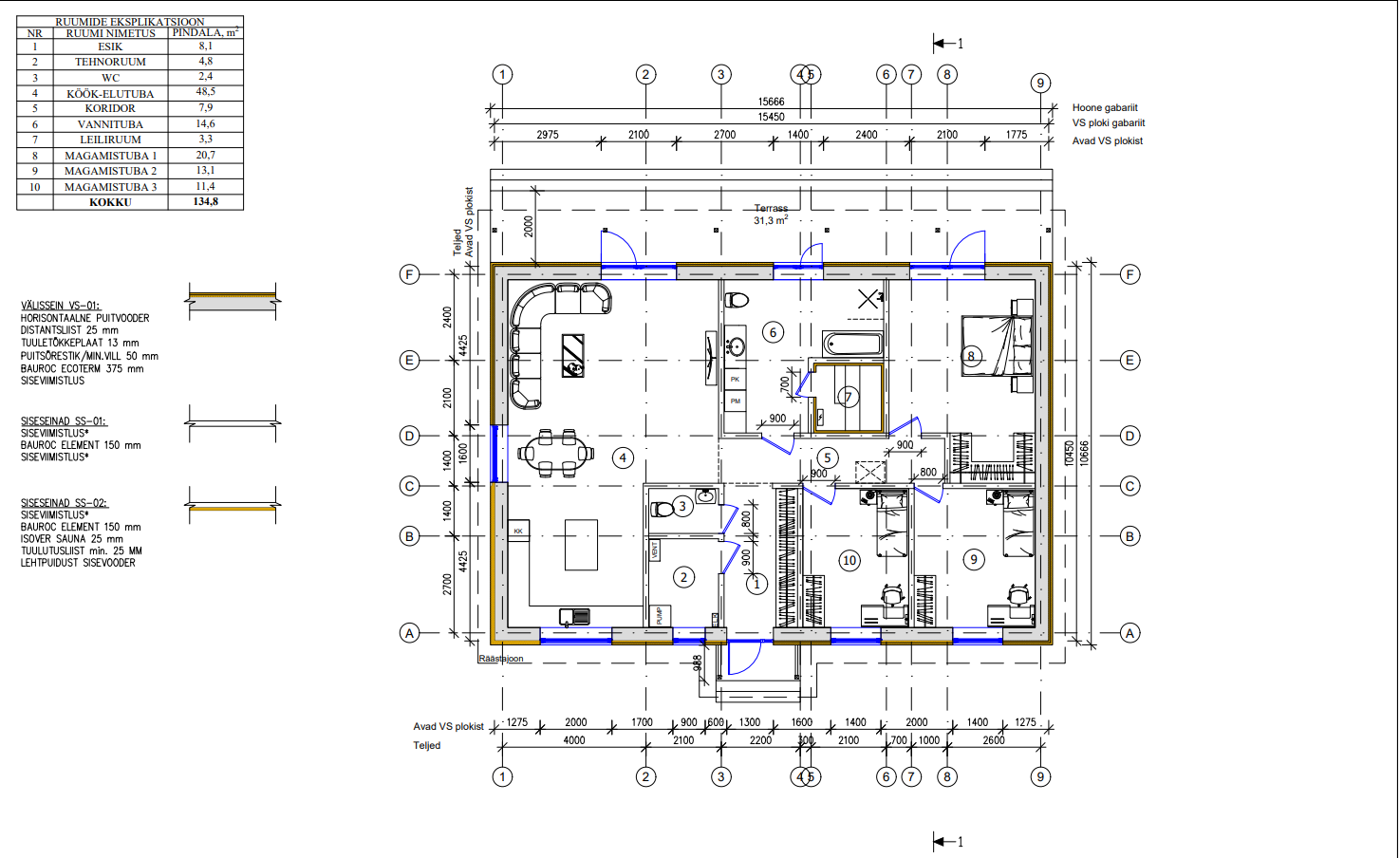
Pildid, video ja failid

Hanke korraldaja: eraisik ID64546

Pakkumised

Pakkumisi kokku: 3

Ettevõte Summa Käibemaks Lisatud Vestlus
Kasutaja ikoon ID63115
Pakkuja profiil Väike nool paremale
990€ Ei ole KMKR Ei ole KMKR 04.02.2022 Vestlus (0)

Pakkumise kirjeldus:

Tere

Hinnapakkumine sisaldab kütte-, sise- ja välisveevarustuse ja sisekanalisatsioonisüsteemide põhiprojekti.
Ettemaksu ei soovi ja käibemaksu ei lisandu.
Kütte pakkumine sisaldab soojuskadude arvutamist dünaamilises tarkvaras, põrandküttetorude projekteerimist, magistraalide jooniseid, põhiseadmete mahuloetelu ja seletuskirja. (vastavalt EVS ... Rohkem

Kasutaja ikoon ID66301
Pakkuja profiil Väike nool paremale
600€ Sisaldab KM Sisaldab KM 07.02.2022 Vestlus (0)

Pakkumise kirjeldus:

Tere,
AINULT küttesüsteemi põhiprojekt. Soojusallikas õhk-vesi soojuspump.
Teie poolt ARH joonised AutoCad formaadis.

Kasutaja ikoon ID66770
Pakkuja profiil Väike nool paremale
950€ Ikoon kell Sisaldab KM Sisaldab KM 23.02.2022 Vestlus (0)

Pakkumise kirjeldus:

Tere,
Antud hinnapakkumine sisaldab kütte-, veevarustuse- ja kanalisatsiooni hoonesiseste süsteemide põhiprojekti eramajale, maht vastavalt standardile EVS 932 "Ehitusprojekt”.
Kütte projektis sisalduvad soojuskadude arvutus, põrandakütte torude projekteerimine, magistraaltorude jooniseid, soojuspumba valimine, põhiseadmete mahtude loetelu ja sel ... Rohkem

Küsimused hanke korraldajale

Küsimus: private ID63115   31.01.2022 10:10
Tere,
Kas on vaja ainult sise tarbevee ja olmekanalisatsiooni projekti või välisvõrku projekti ka?

Teavita reeglite rikkumisest

Korraldaja vastus: 01.02.2022 08:18

Tere.
Vee puhul kaevust alates .
Biopuhastile teeb paigaladaja arvatavasti.

Teavita reeglite rikkumisest

Lisa küsimus

Lisa küsimus

Minu pakkumine

Reeglid

Pakkumise kirjelduse väli on mõeldud pakkumise detailsemaks lahti kirjutamiseks. Pikema teksti mugavaks sisestamiseks klikkige kasti paremal ülaservas oleval ikoonil.
Pakkumist tehes on keelatud postitada enda kontaktandmeid (nimi, telefon, aadress jne). Me jälgime ja analüüsime pakkumisi, et vältida pettuseid ja reeglite rikkumisi.
Rikkumise puhul kasutajakonto blokeeritakse.

 

Teisi töid samas valdkonnas

Valdkonnas "Ehitusprojektid" on 6 aktiivset tööd

no-img Pilt puudub

Ehitusinsener tase 7 vastutav allikiri

Asukoht: Pärnumaa, Pärnu
Aega jäänud: 21h 50 min
Tehtud pakkumisi: 2

Korteri elektri projekt

Asukoht: Harjumaa, Tallinn
Aega jäänud: 2p 21h
Tehtud pakkumisi: 2

Vanemad teated:

Vaata kõiki

Sellel veebilehel kasutatakse küpsiseid. Kasutamist jätkates nõustute küpsiste kasutamisega.

Sulge
 
Minu pakkumine

Reeglid

Pakkumise kirjelduse väli on mõeldud pakkumise detailsemaks lahti kirjutamiseks. Pikema teksti mugavaks sisestamiseks klikkige kasti paremal ülaservas oleval ikoonil.
Pakkumist tehes on keelatud postitada enda kontaktandmeid (nimi, telefon, aadress jne). Me jälgime ja analüüsime pakkumisi, et vältida pettuseid ja reeglite rikkumisi.
Rikkumise puhul kasutajakonto blokeeritakse.