+ Lisa oma töö      

Otsid ehitajat "Ehitusprojektid" valdkonnast?

Parima pakkumise ja teostaja leidmiseks lisa oma töö.

Elamu rekonstrueerimiseks kütte ja ventilatsiooni eelprojekti koostamine

ID 68441

528 vaatamist

Prindi

  • check Pakkumiste tegemine
    kuni 23.01.2022
  • check Võitja valik kuni
    30.01.2022
  • 3 Töö teostamine
    ja hinnang
Hanke lõpp: P, 23. jaanuar, 2022
Maakond: Harjumaa
Muu asula: Laulasmaa
Tööde algus: E, 24. jaanuar, 2022 (Soovituslik)
Tööde lõpp: E, 28. veebruar, 2022 (Soovituslik)
Ehitusmaterjalid: Töö tellija poolt
Soovin pakkumisi: Summa kogu projektile

Töö sisu

Lugupeetud Pakkujad,

Eesmärgiga renoveerida kahekordne suvila aastaringselt kasutatavaks elamuks, soovin pakkumusi kütte ja ventilatsiooni ehitusprojekti koostamiseks. Ehitusprojekti staadium PÕHIPROJEKT vastavalt Majandus- ja taristuminister määruse nr 97 "Nõuded ehitusprojektile" ja standardile EVS 932:2017 Ehitusprojekt.

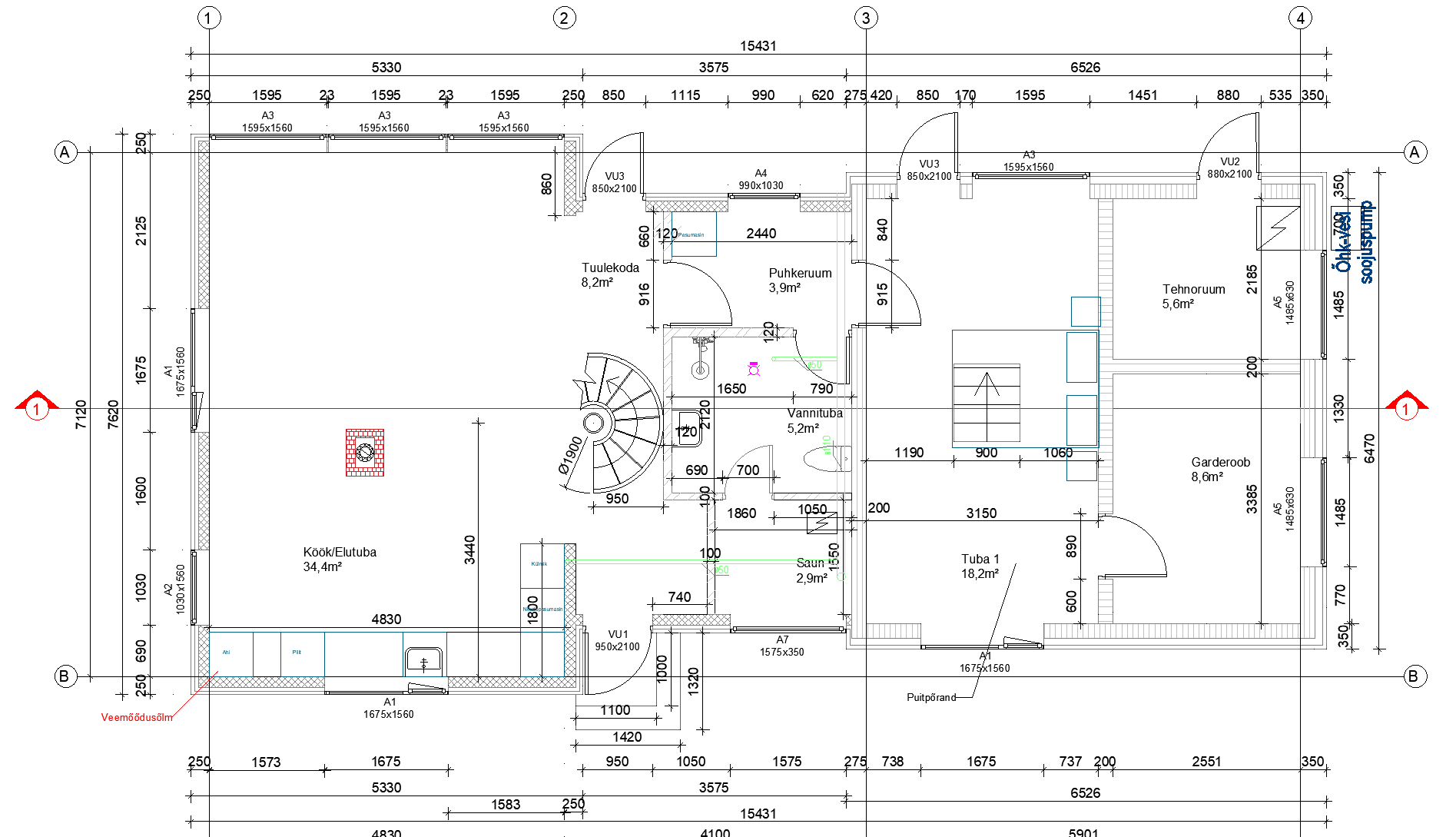
Üksikelamus on ettenähtud põrandkütte süsteem õhk-vesi soojuspumba baasil ja soojustagastusega sundventilatsiooni süsteem. Ventilatsiooniagregaat on ette nähtud paigutada kas hoone II korrusele või esimese korruse tehnoruumi.

Kõik elamu ruumid peavad olema köetud ja ventileeritud.

Projekt peab olema koostatud muu hulgas vastavalt:

EVS 932:2017 Ehitusprojekt
EVS 812-1:2017 Ehitiste tuleohutus. Osa 1: Sõnavara
EVS 812-2:2014 Ehitiste tuleohutus. Osa 2: Ventilatsioonisüsteemid
EVS 812-3:2018 Ehitiste tuleohutus. Osa 3: Küttesüsteemid
EVS 829-2003 Hoonete soojuskoormuse määramine
EVS 906:2018 Mitteeluhoonete ventilatsioon. Üldnõuded
ventilatsiooni-ja ruumiõhu
konditsioneerimissüsteemidele
EJKÜ TS1 Soojussõlmed juhised ja eeskirjad.
EVS-EN ISO 6946 Hoonete komponendid ja hoonekonstruktsioonid.
Soojustakistus ja soojusjuhtivus. Arvutusmeetod.
EVS 842:2003 Ehitiste heliisolatsiooninõuded. Kaitse müra eest
EVS 844:2016 Hoonete kütte projekteerimine
EVS 865-2:2014 Hoone ehitusprojekti kirjeldus. Osa2: Põhiprojekti
ehituskirjeldus nõuetele.
EVS-ISO 8421-2:1997 Tuleohutus. Sõnavara. Osa 2: Ehitiste tuleohutus
EVS-EN 15251:2007 Sisekliima algandmed hoonete energiatõhususe
projekteerimiseks ja hindamiseks, lähtudes siseõhu
kvaliteedist, soojuslikust mugavusest, valgustusest ja
akustikast
CEN/TR 14788:2006 Hoonete ventilatsioon. Elamute ventilatsioonisüsteemide
projekteerimine ja dimensioneerimine
EVS-EN ISO 6946:2017 Hoonete komponendid ja hoonekonstruktsioonid.
Soojustakistus ja soojusjuhtivus. Arvutusmeetod
EVS-EN 15423:2008 Hoonete ventilatsioon . Hoones olevate
õhujaotussüsteemide tulekaitse.
EVS-EN 13180:2002 Hoonete ventilatsioon. Õhutorustik. Painduvad torud,
mõõtmed ja mehaanilised nõuded.
EVS-EN 12236:2002 Hoonete ventilatsioon. Ventilatsioonikanalite riputid ja
toed. Nõuded tugevusele.
EVS-EN 13182:2002 Hoonete ventilatsioon. Nõuded mõõteriistadele õhu
liikumise kiiruse mõõtmisel ventileeritud aladel.
Vabariigi Valitsuse 27. oktoobri 2004.a. määrus nr 315 “Ehitisele ja selle osale esitatavad
tuleohutusnõuded.
Vabariigi Valitsuse 20. detsembri 2007. a määrus nr 258 “Energiatõhususe
miinimumnõuded“.
Hoone tehnosüsteemide RYL 2002. Ehitustööde üldised kvaliteedinõuded, I osa

Projekt peab sisaldama muu hulgas töömahtude loendit (spetsifikatsiooni) ning trasside plaane.

Fotode hulka on lisatud ka maja rekonstrueerimise projekti asendiplaanid ning pilt II korruse olemasolevast olukorrast.

Pildid, video ja failid

Hanke korraldaja: eraisik ID62313

Pakkumised

Pakkumisi kokku: 0

Küsimused hanke korraldajale

Hanke korraldajale ei ole veel küsimusi esitatud.

Lisa küsimus

Lisa küsimus

Minu pakkumine

Reeglid

Pakkumise kirjelduse väli on mõeldud pakkumise detailsemaks lahti kirjutamiseks. Pikema teksti mugavaks sisestamiseks klikkige kasti paremal ülaservas oleval ikoonil.
Pakkumist tehes on keelatud postitada enda kontaktandmeid (nimi, telefon, aadress jne). Me jälgime ja analüüsime pakkumisi, et vältida pettuseid ja reeglite rikkumisi.
Rikkumise puhul kasutajakonto blokeeritakse.

 

Teisi töid samas valdkonnas

Valdkonnas "Ehitusprojektid" on 6 aktiivset tööd

no-img Pilt puudub

Ehitusinsener tase 7 vastutav allikiri

Asukoht: Pärnumaa, Pärnu
Aega jäänud: 8h 54 min
Tehtud pakkumisi: 2

Korteri elektri projekt

Asukoht: Harjumaa, Tallinn
Aega jäänud: 2p 8h
Tehtud pakkumisi: 2

Vanemad teated:

Vaata kõiki

Sellel veebilehel kasutatakse küpsiseid. Kasutamist jätkates nõustute küpsiste kasutamisega.

Sulge
 
Minu pakkumine

Reeglid

Pakkumise kirjelduse väli on mõeldud pakkumise detailsemaks lahti kirjutamiseks. Pikema teksti mugavaks sisestamiseks klikkige kasti paremal ülaservas oleval ikoonil.
Pakkumist tehes on keelatud postitada enda kontaktandmeid (nimi, telefon, aadress jne). Me jälgime ja analüüsime pakkumisi, et vältida pettuseid ja reeglite rikkumisi.
Rikkumise puhul kasutajakonto blokeeritakse.