+ Lisa oma töö      

Otsid ehitajat "Ehitusprojektid" valdkonnast?

Parima pakkumise ja teostaja leidmiseks lisa oma töö.

Rekonstrueeritava elamu hoonesisese veevarustuse ja kanalisatsiooni ehitusprojekti koostamine

ID 68431

468 vaatamist

Prindi

  • check Pakkumiste tegemine
    kuni 21.01.2022
  • check Võitja valik kuni
    28.01.2022
  • 3 Töö teostamine
    ja hinnang
Hanke lõpp: R, 21. jaanuar, 2022
Maakond: Harjumaa
Muu asula: Laulasmaa
Tööde algus: R, 21. jaanuar, 2022 (Soovituslik)
Tööde lõpp: E, 28. veebruar, 2022 (Soovituslik)
Ehitusmaterjalid: Töö tellija poolt
Soovin pakkumisi: Summa kogu projektile

Töö sisu

Lugupeetud Pakkujad,

Eesmärgiga renoveerida kahekordne suvila aastaringselt kasutatavaks elamuks , soovin pakkumusi veevarustuse ja kanalisatsiooni ehitusprojekti koostamiseks. Ehitusprojekti staadium EELPROJEKT vastavalt Majandus- ja taristuminister määruse nr 97 "Nõuded ehitusprojektile" ja standardile EVS 932:2017 Ehitusprojekt.

Projekt peab olema koostatud muu hulgas vastavalt:

1. EVS 932:2017 Ehitusprojekt;
2. EVS 846:2013 Hoone kanalisatsioon;
3. EVS 835:2014 Hoone veevärk;
4. "Joogivee kvaliteedile- ja kontrollinõuded ning analüüsi meetodid" 31.07.2001.a. sotsiaalministri määrus nr. 82;
5. RYL 2002 Hoone tehnosüsteemide ehitustööde üldised kvaliteedinõuded;
6. Majandus- ja taristuministri 17.07.2015 määrus nr. 97 "Nõuded ehitusprojektile";
7. Majandus- ja taristuministri 05.06.2015 määrus nr. 57 „Ehitise tehniliste andmete loetelu ja arvestamise alused“

Projekt peab sisaldama muu hulgas töömahtude loendit (spetsifikatsiooni) ning trasside plaane.

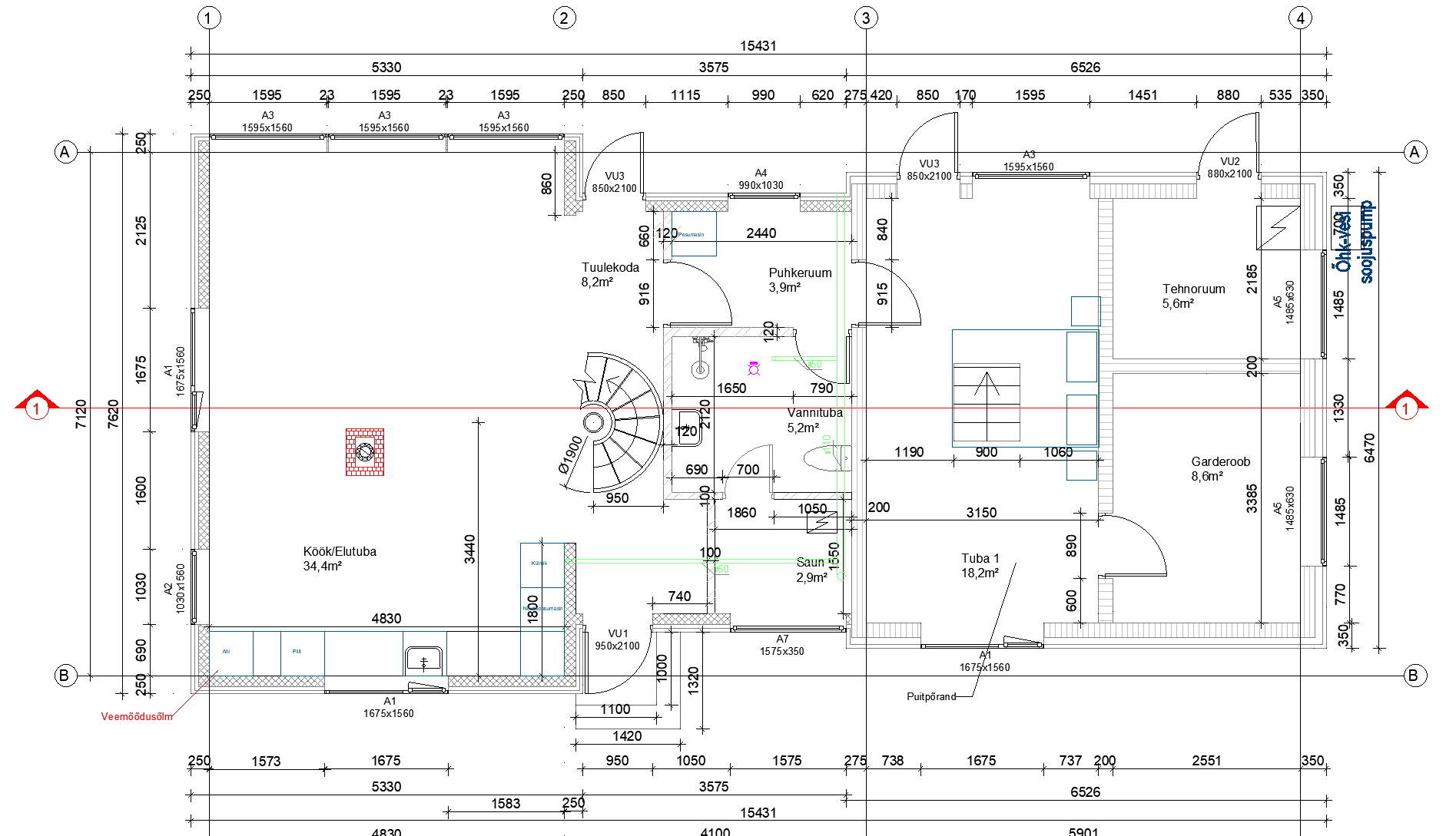
Fotode hulka on lisatud ka maja rekonstrueerimise projekti asendiplaanid ning rajatud veemõõdusõlme joonis. Hoonel on rajatud betoonpõrandasse kanalisatsioonitrassi, mis säilitatakse.

Hoone varustamiseks sooja veega on näha ette nähtud sooja vee süsteem. Soe tarbevesi valmistatakse soojussõlmes (soojasõlme projekteerimine ei kuulu töö mahtu).

Veevarustuallikaks on ÜVK.

Pildid, video ja failid

Hanke korraldaja: eraisik ID62313

Pakkumised

Pakkumisi kokku: 0

Küsimused hanke korraldajale

Hanke korraldajale ei ole veel küsimusi esitatud.

Lisa küsimus

Lisa küsimus

Minu pakkumine

Reeglid

Pakkumise kirjelduse väli on mõeldud pakkumise detailsemaks lahti kirjutamiseks. Pikema teksti mugavaks sisestamiseks klikkige kasti paremal ülaservas oleval ikoonil.
Pakkumist tehes on keelatud postitada enda kontaktandmeid (nimi, telefon, aadress jne). Me jälgime ja analüüsime pakkumisi, et vältida pettuseid ja reeglite rikkumisi.
Rikkumise puhul kasutajakonto blokeeritakse.

 

Teisi töid samas valdkonnas

Valdkonnas "Ehitusprojektid" on 5 aktiivset tööd

Korteri elektri projekt

Asukoht: Harjumaa, Tallinn
Aega jäänud: 1p 20h
Tehtud pakkumisi: 2

no-img Pilt puudub

Kortermaja kõigi ruumide mõõdistamine ja DWG faili koostamine

Asukoht: Harjumaa, Tallinn
Aega jäänud: 10p 20h
Tehtud pakkumisi: 1

Vanemad teated:

Vaata kõiki

Sellel veebilehel kasutatakse küpsiseid. Kasutamist jätkates nõustute küpsiste kasutamisega.

Sulge
 
Minu pakkumine

Reeglid

Pakkumise kirjelduse väli on mõeldud pakkumise detailsemaks lahti kirjutamiseks. Pikema teksti mugavaks sisestamiseks klikkige kasti paremal ülaservas oleval ikoonil.
Pakkumist tehes on keelatud postitada enda kontaktandmeid (nimi, telefon, aadress jne). Me jälgime ja analüüsime pakkumisi, et vältida pettuseid ja reeglite rikkumisi.
Rikkumise puhul kasutajakonto blokeeritakse.