+ Lisa oma töö      

Otsid ehitajat "Projekteerimine" valdkonnast?

Parima pakkumise ja teostaja leidmiseks lisa oma töö.

Hange on lõppenud!

Võitjaks osutus kasutaja ID 48870

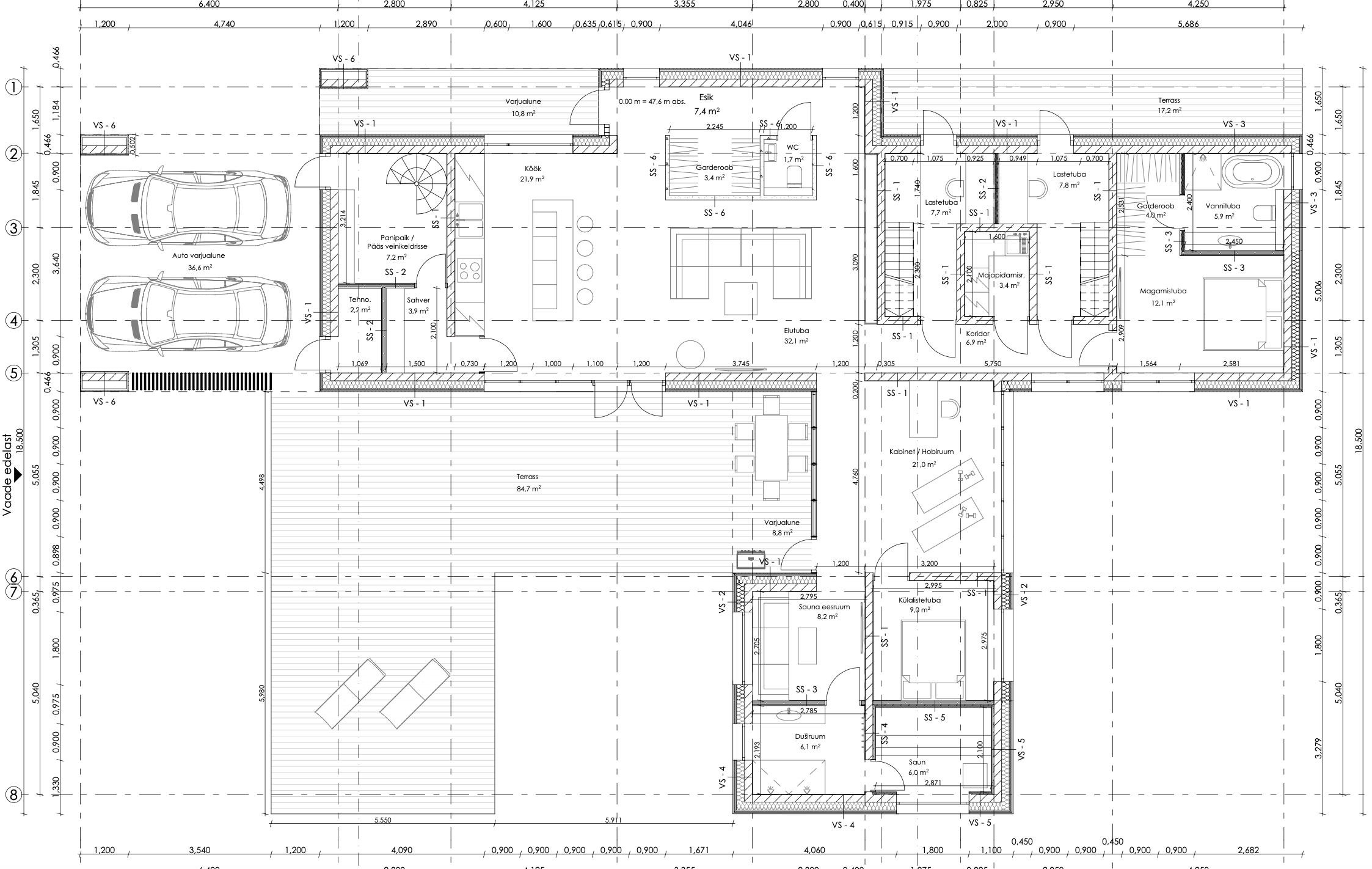
Eramaja konstruktiivne projekt

ID 67864

1255 vaatamist

Prindi

  • check Pakkumiste tegemine
    kuni 17.12.2021
  • check Võitja valik kuni
    24.12.2021
  • 3 Töö teostamine
    ja hinnang
Hanke lõpp: R, 17. detsember, 2021
Maakond: Harjumaa
Muu asula: Saku
Tööde algus: E, 13. detsember, 2021 (Soovituslik)
Tööde lõpp: E, 17. jaanuar, 2022 (Soovituslik)
Ehitusmaterjalid: Töö tegija poolt
Soovin pakkumisi: Summa kogu projektile

Töö sisu

Soovin tellida eramajale konstruktiivset põhiprojekti. Eelprojekt valmis, vallas ehitusluba taotlemisel. Hoone pind ca 200 ruutmeetrit.

Ehitusgeoloogiline uuring teostatud.

Pildid, video ja failid

Hanke korraldaja: eraisik ID64605

Pakkumised

Pakkumisi kokku: 3

Ettevõte Summa Käibemaks Lisatud Vestlus
Kasutaja ikoon ID44039
Pakkuja profiil Väike nool paremale
4 200€ Sisaldab KM Sisaldab KM 09.12.2021 Vestlus (0)

Pakkumise kirjeldus:

Hinnapakkumine sisaldab hoone ehituskonstruktsioonide põhiprojekti koostamist vastavalt kehtivale standardile EVS 932:2017.
Hinnapakkujale on väljastatud Eesti Ehitusinseneride Liidu poolt kutsetunnistus (diplomeeritud ehitusinsener tase 7). Hinnapakkuja omab MTR registreeringuid projekteerimiseks, ehitusprojekti ekspertiisi ja ehitise auditi koostamisek ... Rohkem

Kasutaja ikoon ID44908
Pakkuja profiil Väike nool paremale
2 500€ Sisaldab KM Sisaldab KM 14.12.2021 Vestlus (0)

Pakkumise kirjeldus:

Tellimuse tingimused:
• 50% ettemaks enne töödega alustamist (tasumine arve alusel);
• 50% projekti esitamisel (tasumine arve alusel);
• Ettemaksu tasumisel nõustub tellija tellimuse tingimustega;
• Projekteerimine kaugtööna elektroonilise suhtluse kaudu - kohale sõitmine ainult erijuhtudel ja kokkuleppel;
• Tööde algus ja projekti val ... Rohkem

Kasutaja ikoon ID48870
Pakkuja profiil Väike nool paremale
2 950€ Ei ole KMKR Ei ole KMKR 14.12.2021 Vestlus (0)

Pakkumise kirjeldus:

Tere,
pakkumise hind sisaldab järgmist:
maja ehituskonstruktsioonide projekteerimine põhiprojekti staadiumis kooskõlas arhitektuurse projektiga (vt EVS 932:2017)
Projekti sisu:
1. konstruktsiooniarvutused
2. seletuskiri,
3. joonised
4. vundamendi plaan
5. aluspõrand - vajalikud lõiked, armatuuri mõõtmed, sammud,.
6. seinte/silluste-plaan, sõ ... Rohkem

Küsimused hanke korraldajale

Küsimus: private ID44908   08.12.2021 07:06
Tere!

Kas eelprojekt on koostatud 3D programmis näiteks ArchiCAD või Revit, või on koostatud 2D-s, näiteks AutoCAD-is?

Teavita reeglite rikkumisest

Korraldaja vastus: 08.12.2021 08:59

Eelprojekt on 3D programmis koostatud ning dwg fail kogu vajaliku infoga olemas.

Teavita reeglite rikkumisest

Lisa küsimus

Lisa küsimus

Minu pakkumine

Reeglid

Pakkumise kirjelduse väli on mõeldud pakkumise detailsemaks lahti kirjutamiseks. Pikema teksti mugavaks sisestamiseks klikkige kasti paremal ülaservas oleval ikoonil.
Pakkumist tehes on keelatud postitada enda kontaktandmeid (nimi, telefon, aadress jne). Me jälgime ja analüüsime pakkumisi, et vältida pettuseid ja reeglite rikkumisi.
Rikkumise puhul kasutajakonto blokeeritakse.

 

Teisi töid samas valdkonnas

Valdkonnas "Projekteerimine" on 6 aktiivset tööd

no-img Pilt puudub

1-kordse 120 m2 elumaja põhiprojekt

Asukoht: Harjumaa, Metsanurme
Aega jäänud: 8p 16h
Tehtud pakkumisi: 4

no-img Pilt puudub

Saunamaja eelprojekt ehitusteatiseks

Asukoht: Lääne-Virumaa
Aega jäänud: 1p 16h
Tehtud pakkumisi: 3

Vanemad teated:

Vaata kõiki

Sellel veebilehel kasutatakse küpsiseid. Kasutamist jätkates nõustute küpsiste kasutamisega.

Sulge
 
Minu pakkumine

Reeglid

Pakkumise kirjelduse väli on mõeldud pakkumise detailsemaks lahti kirjutamiseks. Pikema teksti mugavaks sisestamiseks klikkige kasti paremal ülaservas oleval ikoonil.
Pakkumist tehes on keelatud postitada enda kontaktandmeid (nimi, telefon, aadress jne). Me jälgime ja analüüsime pakkumisi, et vältida pettuseid ja reeglite rikkumisi.
Rikkumise puhul kasutajakonto blokeeritakse.