+ Lisa oma töö      

Otsid ehitajat "Ehitusprojektid" valdkonnast?

Parima pakkumise ja teostaja leidmiseks lisa oma töö.

Maja projekt

ID 67802

872 vaatamist

Prindi

  • check Pakkumiste tegemine
    kuni 14.12.2021
  • check Võitja valik kuni
    21.12.2021
  • 3 Töö teostamine
    ja hinnang
Hanke lõpp: T, 14. detsember, 2021
Maakond: Harjumaa
Muu asula: Vääna-Jõesuu
Tööde algus: E, 13. detsember, 2021 (Soovituslik)
Tööde lõpp: E, 28. veebruar, 2022 (Soovituslik)
Ehitusmaterjalid: Töö tegija poolt
Soovin pakkumisi: Summa kogu projektile

Töö sisu

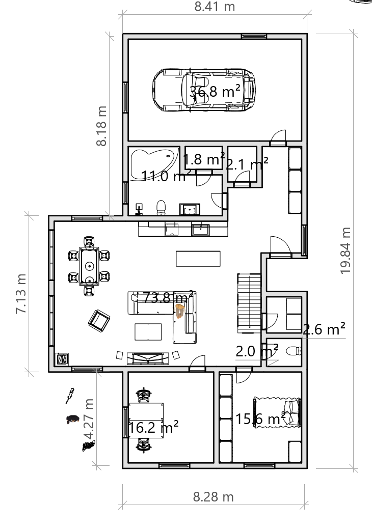
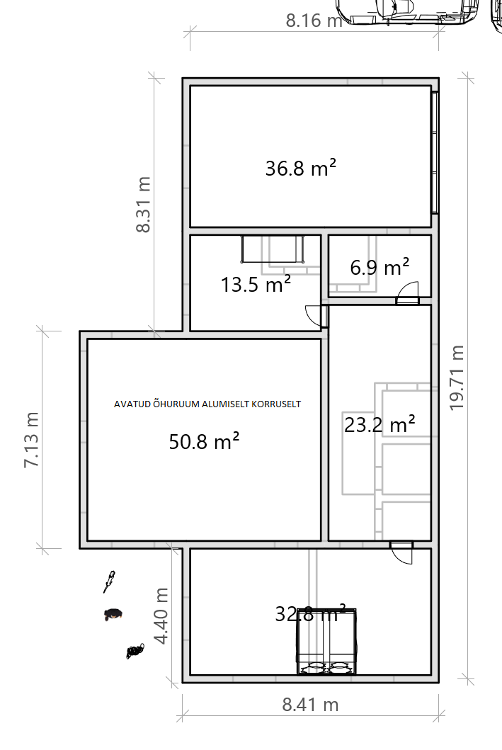
Soovin maja projekti. Krunt asub Harku vallas.
Maksimaalne lubatud ehitusalune pind 250m2, teine korrus katusekorrusena.

Robustsel kujul on visioon olemas, paiknemine krundil kah. Aga otsin arhitekti/projekteerijat, kes:
- mõtleks kaasa ja annaks täiendavaid ideid üldisele arhitektuursele lahendusele
- aitaks paigutada asju, mida hetkel pole osanud veel paigutada (auto varjualune, talveaed)
- optimeeriks ruumide paigutust ja suuruseid, et maja tuleks mõistliku suurusega
- vormistaks projekti selliselt, et oleks võimalik taodelda ehitusluba ja küsida pakkumisi majakarbi ehitusele

Ruumide hulk, mis majaks peaks/võiks olla:
- 3 magamistuba (teise korruse ühel magamistoal võiks olla rõdu)
- 1 kontoriruum
- avatud elutuba köök, kõrge avatud laega, suurte otsaseina akendega
- 1 vannituba/wc /leiliruum (kui mahub siis saun koos eesruumiga eraldi)
- 1 wc
- garaaž (võibolla mõistlikum eraldi hoonena)
- tehnoruum
- pesuruum
- 2 väiksemat panipaika
- auto varjualune
- kinnine talveaed

Stiililt/visuaalselt võiks olla midagi selle sarnast:
https://soomemaja.ee/project/p22suke/

Olemas on:
- detailplaneering
- liitumistingimused kanalisatsiooni/veega
- liitumine elektrileviga
- geoalus

Ehitamisega sooviks alustada kevadel.

Pakkumise juurde lisada tehtud töid ja kirjeldus, kuidas maja projekt valmib (kuidas toimub suhtlus, kui palju muudatusi on hinnas, palju mingid etapid aega võtavad jne).

Pildid, video ja failid

Hanke korraldaja: eraisik ID62619

Pakkumised

Pakkumisi kokku: 3

Ettevõte Summa Käibemaks Lisatud Vestlus
Kasutaja ikoon ID42152
Pakkuja profiil Väike nool paremale
1 325€ Ei ole KMKR Ei ole KMKR 30.11.2021 Vestlus (4)

Pakkumise kirjeldus:

Ehitusprojekt eelprojekti staadiumis (arh-eh osa koos eriosadega)
PAkkumishind sisaldab:
Seletuskiri
Energiaarvutused
Asendiplaan
Vund plaan
Korruste plaan
Katuse plaan
Hoone lõige
Hoone vaated
Avatäidete joonised
Jm asjakohased vajalikud joonised

Kooskõlastused ehitusloa saamiseks
Ehitusloa taotluse esitamine KOV
Suhtlus KOV ehitusloa vä ... Rohkem

Kasutaja ikoon ID63311
Pakkuja profiil Väike nool paremale
1 100€ Ei ole KMKR Ei ole KMKR 30.11.2021 Vestlus (0)

Pakkumise kirjeldus:

Pakkumises ehitusprojekt eelprojekti staadiumis vastavalt eelprojektile esitatavatele nõuetele. Kasutusloaga seonduvat pakkumises ei ole. Ehitusloa taotlemine on riigilõivuga. Pakkumine ei sisalda hoone mõõdistust, riigilõivusid, tehnosüsteeme, energiamärgist, uuringuid ega tasulisi kooskõlastusi ja taotlusi.
Küsimuste korral esitage need julgelt h ... Rohkem

Kasutaja ikoon ID5128
Pakkuja profiil Väike nool paremale
2 400€ KM lisandub KM lisandub 13.12.2021 Vestlus (0)

Pakkumise kirjeldus:

Hinnas arhitektuuriosa ja inseneriosad teostatud pädevate projekteerijate poolt, mis on elamu uusehituse puhul nõutav. Hinnas energiamärgis. Hinnas ehr-ile esitamine kuni ehitusloa saamiseni.

Küsimused hanke korraldajale

Hanke korraldajale ei ole veel küsimusi esitatud.

Lisa küsimus

Lisa küsimus

Minu pakkumine

Reeglid

Pakkumise kirjelduse väli on mõeldud pakkumise detailsemaks lahti kirjutamiseks. Pikema teksti mugavaks sisestamiseks klikkige kasti paremal ülaservas oleval ikoonil.
Pakkumist tehes on keelatud postitada enda kontaktandmeid (nimi, telefon, aadress jne). Me jälgime ja analüüsime pakkumisi, et vältida pettuseid ja reeglite rikkumisi.
Rikkumise puhul kasutajakonto blokeeritakse.

 

Teisi töid samas valdkonnas

Valdkonnas "Ehitusprojektid" on 5 aktiivset tööd

Korteri elektri projekt

Asukoht: Harjumaa, Tallinn
Aega jäänud: 1p 20h
Tehtud pakkumisi: 2

no-img Pilt puudub

Kortermaja kõigi ruumide mõõdistamine ja DWG faili koostamine

Asukoht: Harjumaa, Tallinn
Aega jäänud: 10p 20h
Tehtud pakkumisi: 1

Vanemad teated:

Vaata kõiki

Sellel veebilehel kasutatakse küpsiseid. Kasutamist jätkates nõustute küpsiste kasutamisega.

Sulge
 
Minu pakkumine

Reeglid

Pakkumise kirjelduse väli on mõeldud pakkumise detailsemaks lahti kirjutamiseks. Pikema teksti mugavaks sisestamiseks klikkige kasti paremal ülaservas oleval ikoonil.
Pakkumist tehes on keelatud postitada enda kontaktandmeid (nimi, telefon, aadress jne). Me jälgime ja analüüsime pakkumisi, et vältida pettuseid ja reeglite rikkumisi.
Rikkumise puhul kasutajakonto blokeeritakse.