+ Lisa oma töö      

Otsid ehitajat "Projekteerimine" valdkonnast?

Parima pakkumise ja teostaja leidmiseks lisa oma töö.

Eramaja elektri projekt

ID 67379

657 vaatamist

Prindi

  • check Pakkumiste tegemine
    kuni 04.01.2022
  • check Võitja valik kuni
    11.01.2022
  • 3 Töö teostamine
    ja hinnang
Hanke lõpp: T, 4. jaanuar, 2022
Maakond: Harjumaa
Muu asula: Tiskre
Tööde algus: T, 21. detsember, 2021 (Soovituslik)
Tööde lõpp: P, 23. jaanuar, 2022 (Soovituslik)
Ehitusmaterjalid: Töö tegija poolt
Soovin pakkumisi: Summa kogu projektile

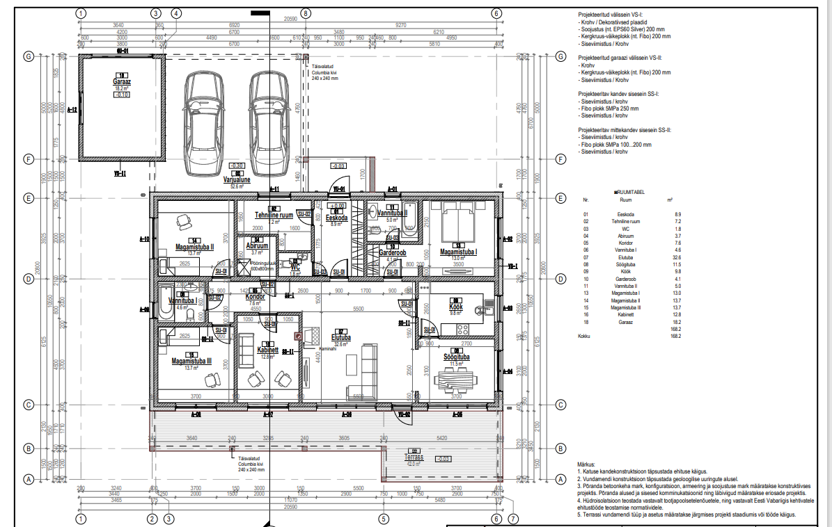
Töö sisu

Soovin tellida eramaja elektriprojekti, põhiprojekti mahus. Kütte ja ventilatsiooni projektid tehtud ja nendega tuleb arvestada.
Projekteerida jargmised osad:
1) Tugev vool, maja, garaazi ja tuleviku abihoone liitumine
2) Nõrk vool (LAN, soe põranda andurid)

Pildid, video ja failid

Hanke korraldaja: eraisik ID4237

Pakkumised

Pakkumisi kokku: 2

Ettevõte Summa Käibemaks Lisatud Vestlus
Kasutaja ikoon ID59037
Pakkuja profiil Väike nool paremale
450€ Ei ole KMKR Ei ole KMKR 19.12.2021 Vestlus (0)

Pakkumise kirjeldus:

Tere,
Teostan pakkumise hoone tugevvoolu ja nõrkvoolu
projektidele.

Projekti kuulub elektri tugevvoolu paigaldise osa alatest Elektrilevi liitumiskilbist. sh: elektrikilpide joonised, pistikud, maanduspaigaldis, lülitite ja valgustite asukohad ( vastavalt kliendi soovile) toitekohad seadmetele ( nt õhksoojuspump, ventilatsioon jms ) .

Nõrkvoolu o ... Rohkem

Kasutaja ikoon ID34425
Pakkuja profiil Väike nool paremale
300€ KM lisandub KM lisandub 22.12.2021 Vestlus (0)

Küsimused hanke korraldajale

Küsimus: private ID31470   19.12.2021 10:15
Tere, kas nõrkvoolu osas oleks tarvis arvestada ka valvekaamerate ja suitsuandurite/valveanduritega? Kas peaks arvestama ka väliste elektritrassidega ning Telia sidekanalisatsiooniga liitumise projekti osaga?

Lugupidamisega,
V

Teavita reeglite rikkumisest

Korraldaja vastus: 19.12.2021 11:20

Tere,
Jah arvestame liitumised sidega ja suitsuandurid. Kui on võimalik lisage detailid pakkumisele tugev + nõrk osadele.

Teavita reeglite rikkumisest

Lisa küsimus

Lisa küsimus

Minu pakkumine

Reeglid

Pakkumise kirjelduse väli on mõeldud pakkumise detailsemaks lahti kirjutamiseks. Pikema teksti mugavaks sisestamiseks klikkige kasti paremal ülaservas oleval ikoonil.
Pakkumist tehes on keelatud postitada enda kontaktandmeid (nimi, telefon, aadress jne). Me jälgime ja analüüsime pakkumisi, et vältida pettuseid ja reeglite rikkumisi.
Rikkumise puhul kasutajakonto blokeeritakse.

 

Teisi töid samas valdkonnas

Valdkonnas "Projekteerimine" on 6 aktiivset tööd

no-img Pilt puudub

1-kordse 120 m2 elumaja põhiprojekt

Asukoht: Harjumaa, Metsanurme
Aega jäänud: 8p 16h
Tehtud pakkumisi: 4

no-img Pilt puudub

Saunamaja eelprojekt ehitusteatiseks

Asukoht: Lääne-Virumaa
Aega jäänud: 1p 16h
Tehtud pakkumisi: 3

Vanemad teated:

Vaata kõiki

Sellel veebilehel kasutatakse küpsiseid. Kasutamist jätkates nõustute küpsiste kasutamisega.

Sulge
 
Minu pakkumine

Reeglid

Pakkumise kirjelduse väli on mõeldud pakkumise detailsemaks lahti kirjutamiseks. Pikema teksti mugavaks sisestamiseks klikkige kasti paremal ülaservas oleval ikoonil.
Pakkumist tehes on keelatud postitada enda kontaktandmeid (nimi, telefon, aadress jne). Me jälgime ja analüüsime pakkumisi, et vältida pettuseid ja reeglite rikkumisi.
Rikkumise puhul kasutajakonto blokeeritakse.