+ Lisa oma töö      

Otsid ehitajat "Projekteerimine" valdkonnast?

Parima pakkumise ja teostaja leidmiseks lisa oma töö.

Hange on lõppenud!

Võitjaks osutus kasutaja ID 42152

Korraldaja hinnang tehtud tööle

5.0
29.06.2022
Töökiirus: 12345
Kvaliteet: 12345
Hind: 12345

Ehitusluba olemas, projektiga olen rahul, suhtlus projekteerijaga professionaalne. Teen ka edaspidi koostööd projekteerijaga. - Henri N.

Ehitusprojekti koostamine ja ehitusloa taotlus

ID 67301

1125 vaatamist

Prindi

  • check Pakkumiste tegemine
    kuni 25.11.2021
  • check Võitja valik kuni
    25.11.2021
  • 3 Töö teostamine
    ja hinnang
Hanke lõpp: N, 25. november, 2021
Maakond: Tartumaa
Linn: Elva
Tööde algus: E, 13. detsember, 2021 (Soovituslik)
Tööde lõpp: E, 31. jaanuar, 2022 (Soovituslik)
Ehitusmaterjalid: Töö tegija poolt
Soovin pakkumisi: Summa kogu projektile

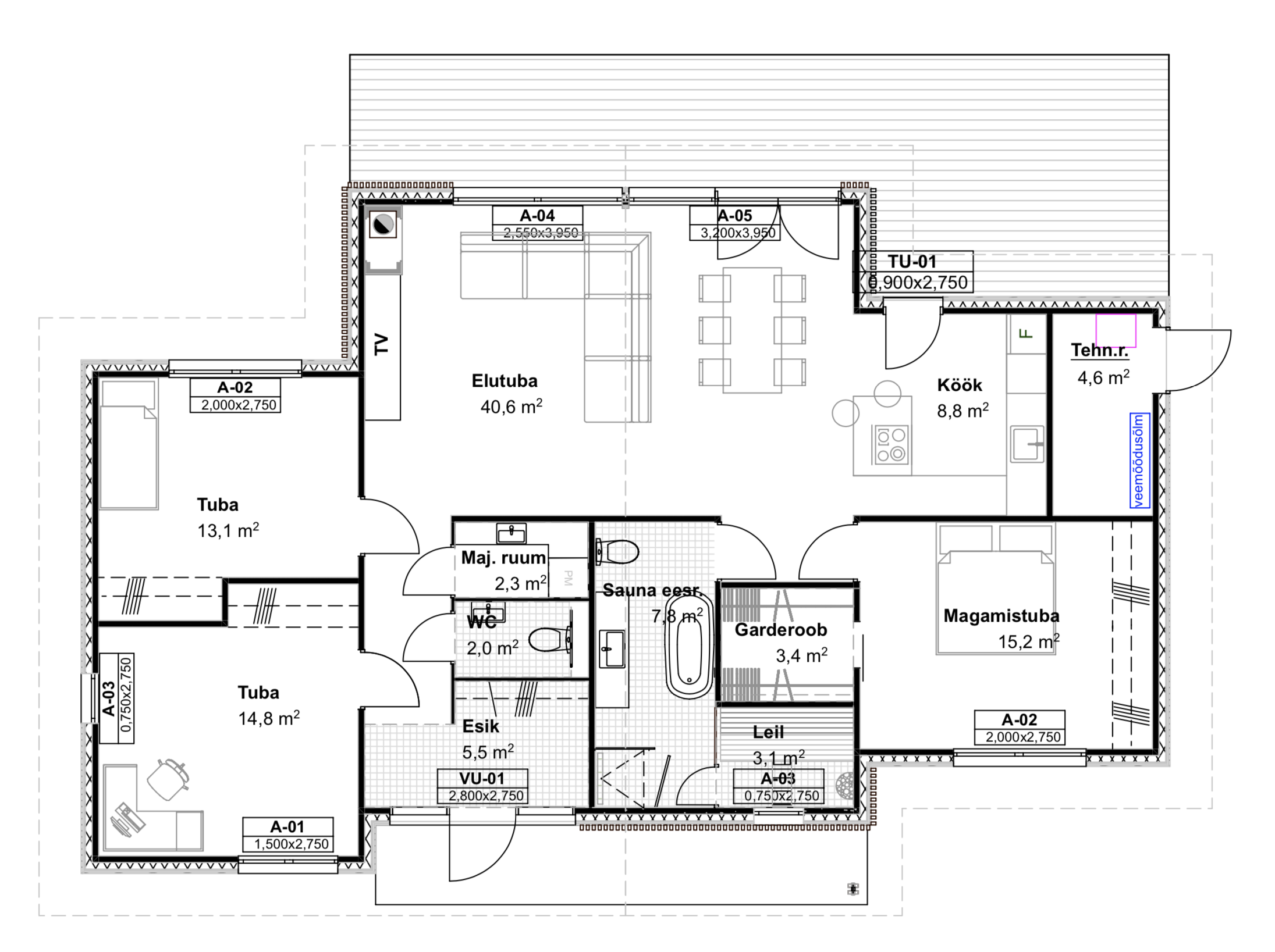
Töö sisu

Ehitusloa taotlemiseks esitatav ehitusprojekt eramule. Projekteerimistingimuste taotlus hetkel veel menetluses.

Ehitise teenindamiseks vajalike rajatiste võimalik asukoht- lahendada ehitusprojektiga;

Haljastuse ja heakorra põhimõtted - lahendada ehitusprojektiga.

Piirdeaed tänava serval lahendada ehitusprojektiga.

Pildid, video ja failid

Hanke korraldaja: eraisik ID37301

Pakkumised

Pakkumisi kokku: 2

Ettevõte Summa Käibemaks Lisatud Vestlus
Kasutaja ikoon ID42152
Pakkuja profiil Väike nool paremale
1 195€ Ei ole KMKR Ei ole KMKR 12.11.2021 Vestlus (4)

Pakkumise kirjeldus:

Ehitusprojekt eelprojekti staadiumis (arh-eh osa koos eriosadega)
PAkkumishind sisaldab:
Seletuskiri
Energiaarvutused
Asendiplaan (vajalik geoalus, mille hind eraldi tööna on 600EUR)
Vund ja korruse plaan
Katuse plaan
Hoone lõige
Hoone vaated
Avatäidete joonised
Jm asjakohased vajalikud joonised

Kooskõlastused ehitusloa saamiseks
Ehitusloa ... Rohkem

Kasutaja ikoon ID5128
Pakkuja profiil Väike nool paremale
2 000€ KM lisandub KM lisandub 15.11.2021 Vestlus (1)

Pakkumise kirjeldus:

Hinnas kõik nõutavad projekti osad ehitusloa samiseks

Küsimused hanke korraldajale

Hanke korraldajale ei ole veel küsimusi esitatud.

Lisa küsimus

Lisa küsimus

Minu pakkumine

Reeglid

Pakkumise kirjelduse väli on mõeldud pakkumise detailsemaks lahti kirjutamiseks. Pikema teksti mugavaks sisestamiseks klikkige kasti paremal ülaservas oleval ikoonil.
Pakkumist tehes on keelatud postitada enda kontaktandmeid (nimi, telefon, aadress jne). Me jälgime ja analüüsime pakkumisi, et vältida pettuseid ja reeglite rikkumisi.
Rikkumise puhul kasutajakonto blokeeritakse.

 

Teisi töid samas valdkonnas

Valdkonnas "Projekteerimine" on 6 aktiivset tööd

no-img Pilt puudub

1-kordse 120 m2 elumaja põhiprojekt

Asukoht: Harjumaa, Metsanurme
Aega jäänud: 8p 21h
Tehtud pakkumisi: 4

no-img Pilt puudub

Saunamaja eelprojekt ehitusteatiseks

Asukoht: Lääne-Virumaa
Aega jäänud: 1p 21h
Tehtud pakkumisi: 3

Vanemad teated:

Vaata kõiki

Sellel veebilehel kasutatakse küpsiseid. Kasutamist jätkates nõustute küpsiste kasutamisega.

Sulge
 
Minu pakkumine

Reeglid

Pakkumise kirjelduse väli on mõeldud pakkumise detailsemaks lahti kirjutamiseks. Pikema teksti mugavaks sisestamiseks klikkige kasti paremal ülaservas oleval ikoonil.
Pakkumist tehes on keelatud postitada enda kontaktandmeid (nimi, telefon, aadress jne). Me jälgime ja analüüsime pakkumisi, et vältida pettuseid ja reeglite rikkumisi.
Rikkumise puhul kasutajakonto blokeeritakse.