+ Lisa oma töö      

Otsid ehitajat "Ehitusprojektid" valdkonnast?

Parima pakkumise ja teostaja leidmiseks lisa oma töö.

Majasisese vee, kanalisatsiooni, keskkütte projekteerimine ja väljaehitus

ID 67191

604 vaatamist

Prindi

  • check Pakkumiste tegemine
    kuni 22.11.2021
  • check Võitja valik kuni
    29.11.2021
  • 3 Töö teostamine
    ja hinnang
Hanke lõpp: E, 22. november, 2021
Maakond: Harjumaa
Muu asula: Kasemetsa
Tööde algus: E, 15. november, 2021 (Soovituslik)
Tööde lõpp: T, 30. november, 2021 (Soovituslik)
Ehitusmaterjalid: Töö tellija poolt
Soovin pakkumisi: Summa kogu projektile

Töö sisu

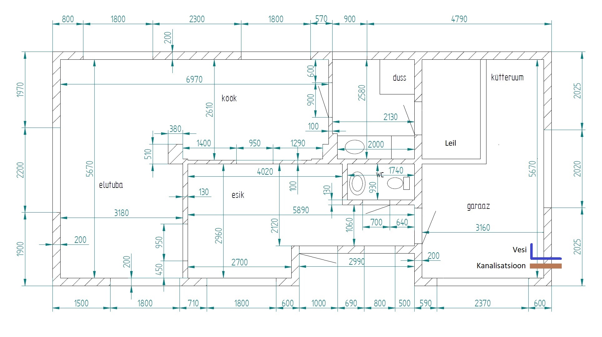
1990ndatel valminud tuhaplokkidest eramaja 1. korruse põrandasisese vee, kanalisatsiooni ja keskküttesüsteemi projekteerimine ehitusregistrile esitamiseks ja välja ehitamiseks.

Kogu aluspõrand koosneb betoonpaneelidest. Põrand tõuseb 150mm, kuhu sisse tuleb mahutada soojustus (50-75mm) ja torustikud, mis lõpuks kaetakse betooniga. Garaazi alune osa on täiskelder, kus asuvad majja sisenevad kanalisatsiooni ja vee ühendused.
Keskküttesüsteem koosneks vesipõrandaküttest 1. korrusel ja radiaatoritest 2. korrusel. Kütteseadmeks õhk-vesi soojuspump, mis kütab ka tarbeveeboilerit.

Võib pakkuda ka ehitustööde teostamist.

Pildid, video ja failid

Hanke korraldaja: eraisik ID46549

Pakkumised

Pakkumisi kokku: 1

Ettevõte Summa Käibemaks Lisatud Vestlus
Kasutaja ikoon ID63115
Pakkuja profiil Väike nool paremale
1 000€ Ikoon kell Ei ole KMKR Ei ole KMKR 11.11.2021 Vestlus (3)

Pakkumise kirjeldus:

Tere

Hinnapakkumine sisaldab kütte-, veevarustuse- ja kanalisatsioonisüsteemide projekteerimist.
Ettemaksu ei soovi ja käibemaksu ei lisandu.
Vastava spetsialisti allkiri on hinna sees.

Kütte pakkumine sisaldab soojuskadude arvutamist dünaamilises tarkvaras,
põrandküttetorude
projekteerimist, radiaatorite valimist, magistraalide jooniseid, ... Rohkem

Küsimused hanke korraldajale

Hanke korraldajale ei ole veel küsimusi esitatud.

Lisa küsimus

Lisa küsimus

Minu pakkumine

Reeglid

Pakkumise kirjelduse väli on mõeldud pakkumise detailsemaks lahti kirjutamiseks. Pikema teksti mugavaks sisestamiseks klikkige kasti paremal ülaservas oleval ikoonil.
Pakkumist tehes on keelatud postitada enda kontaktandmeid (nimi, telefon, aadress jne). Me jälgime ja analüüsime pakkumisi, et vältida pettuseid ja reeglite rikkumisi.
Rikkumise puhul kasutajakonto blokeeritakse.

 

Teisi töid samas valdkonnas

Valdkonnas "Ehitusprojektid" on 5 aktiivset tööd

no-img Pilt puudub

Kortermaja kõigi ruumide mõõdistamine ja DWG faili koostamine

Asukoht: Harjumaa, Tallinn
Aega jäänud: 1p 21h
Tehtud pakkumisi: 2

Korterelamu mõõdistusprojekti koostamine ja jooniste digitaliseerimine

Asukoht: Lääne-Virumaa, Tapa
Aega jäänud: 4p 21h
Tehtud pakkumisi: 2

Vanemad teated:

Vaata kõiki

Sellel veebilehel kasutatakse küpsiseid. Kasutamist jätkates nõustute küpsiste kasutamisega.

Sulge
 
Minu pakkumine

Reeglid

Pakkumise kirjelduse väli on mõeldud pakkumise detailsemaks lahti kirjutamiseks. Pikema teksti mugavaks sisestamiseks klikkige kasti paremal ülaservas oleval ikoonil.
Pakkumist tehes on keelatud postitada enda kontaktandmeid (nimi, telefon, aadress jne). Me jälgime ja analüüsime pakkumisi, et vältida pettuseid ja reeglite rikkumisi.
Rikkumise puhul kasutajakonto blokeeritakse.