+ Lisa oma töö      

Otsid ehitajat "Projekteerimine" valdkonnast?

Parima pakkumise ja teostaja leidmiseks lisa oma töö.

Hange on lõppenud!

Võitjaks osutus kasutaja ID 46459

Korraldaja hinnang tehtud tööle

5.0
14.01.2022
Töökiirus: 12345
Kvaliteet: 12345
Hind: 12345

Töö kiire ja korralik. Suhtlus professionaalne. - Mihkel L.

Eramaja elektriprojekt

ID 66974

698 vaatamist

Prindi

  • check Pakkumiste tegemine
    kuni 16.11.2021
  • check Võitja valik kuni
    23.11.2021
  • 3 Töö teostamine
    ja hinnang
Hanke lõpp: T, 16. november, 2021
Maakond: Harjumaa
Muu asula: Alliku
Tööde algus: E, 15. november, 2021 (Soovituslik)
Tööde lõpp: R, 31. detsember, 2021 (Soovituslik)
Ehitusmaterjalid: Töö tellija poolt
Soovin pakkumisi: Summa kogu projektile

Töö sisu

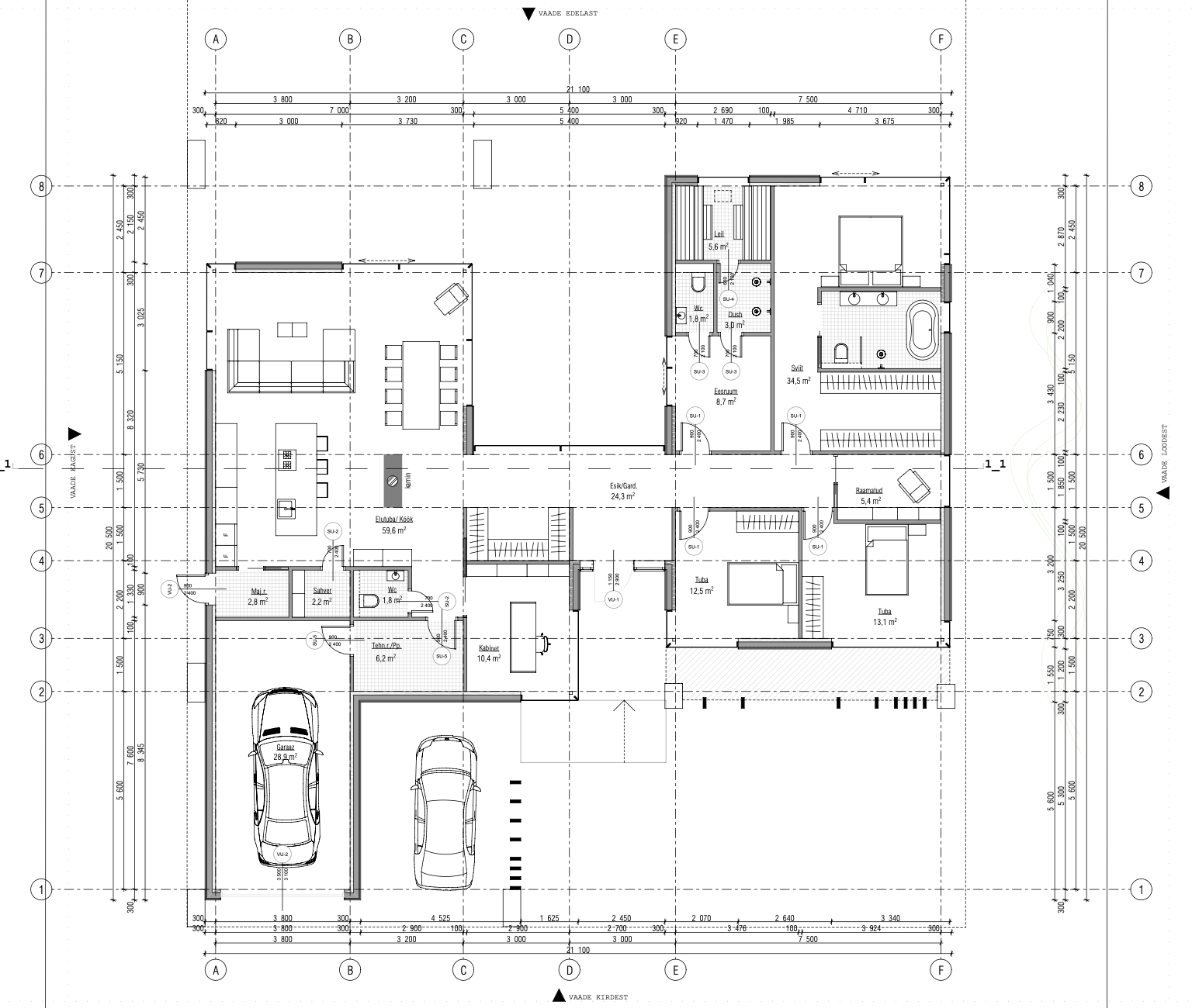
Eramu tugev- ja nõrkvoolu osa ning targa kodu lahenduste (Fibaro baasil) projekti koostamine põhiprojekti staadiumis. Maja koos garaaziga ca 220m2.

Pildid, video ja failid

Hanke korraldaja: eraisik ID63360

Pakkumised

Pakkumisi kokku: 1

Ettevõte Summa Käibemaks Lisatud Vestlus
Kasutaja ikoon ID46459
Pakkuja profiil Väike nool paremale
800€ Sisaldab KM Sisaldab KM 03.11.2021 Vestlus (0)

Pakkumise kirjeldus:

Tere,
EL + NV põhiprojekt antud majale - 800.-
Targamaja lahendust saab hiljem pakkuda eraldi tasu eest,hetkel pole teada mis on planeeritud ja mis mahus. Hinnaliselt umbes sama palju nagu EL+NV projekt.

Küsimused hanke korraldajale

Hanke korraldajale ei ole veel küsimusi esitatud.

Lisa küsimus

Lisa küsimus

Minu pakkumine

Reeglid

Pakkumise kirjelduse väli on mõeldud pakkumise detailsemaks lahti kirjutamiseks. Pikema teksti mugavaks sisestamiseks klikkige kasti paremal ülaservas oleval ikoonil.
Pakkumist tehes on keelatud postitada enda kontaktandmeid (nimi, telefon, aadress jne). Me jälgime ja analüüsime pakkumisi, et vältida pettuseid ja reeglite rikkumisi.
Rikkumise puhul kasutajakonto blokeeritakse.

 

Teisi töid samas valdkonnas

Valdkonnas "Projekteerimine" on 6 aktiivset tööd

no-img Pilt puudub

1-kordse 120 m2 elumaja põhiprojekt

Asukoht: Harjumaa, Metsanurme
Aega jäänud: 8p 18h
Tehtud pakkumisi: 4

no-img Pilt puudub

Saunamaja eelprojekt ehitusteatiseks

Asukoht: Lääne-Virumaa
Aega jäänud: 1p 18h
Tehtud pakkumisi: 3

Vanemad teated:

Vaata kõiki

Sellel veebilehel kasutatakse küpsiseid. Kasutamist jätkates nõustute küpsiste kasutamisega.

Sulge
 
Minu pakkumine

Reeglid

Pakkumise kirjelduse väli on mõeldud pakkumise detailsemaks lahti kirjutamiseks. Pikema teksti mugavaks sisestamiseks klikkige kasti paremal ülaservas oleval ikoonil.
Pakkumist tehes on keelatud postitada enda kontaktandmeid (nimi, telefon, aadress jne). Me jälgime ja analüüsime pakkumisi, et vältida pettuseid ja reeglite rikkumisi.
Rikkumise puhul kasutajakonto blokeeritakse.