+ Lisa oma töö      

Otsid ehitajat "Projekteerimine" valdkonnast?

Parima pakkumise ja teostaja leidmiseks lisa oma töö.

Hange on lõppenud!

Võitjaks osutus kasutaja ID 39199

Eramaja konstruktiivne projekt

ID 66662

706 vaatamist

Prindi

  • check Pakkumiste tegemine
    kuni 06.11.2021
  • check Võitja valik kuni
    06.11.2021
  • 3 Töö teostamine
    ja hinnang
Hanke lõpp: L, 6. november, 2021
Maakond: Harjumaa
Linn: Tallinn
Tööde algus: E, 15. november, 2021 (Soovituslik)
Tööde lõpp: R, 31. detsember, 2021 (Soovituslik)
Ehitusmaterjalid: Töö tellija poolt
Soovin pakkumisi: Summa kogu projektile

Töö sisu

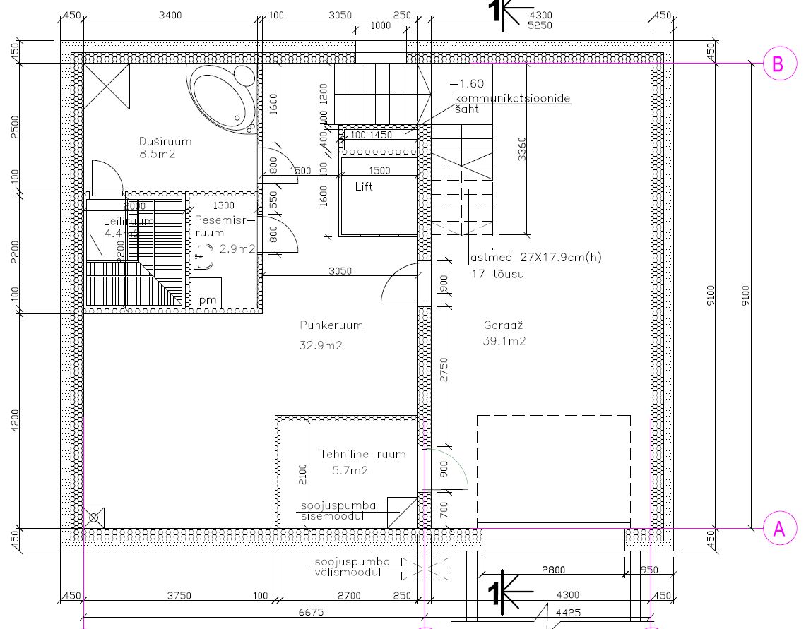
Vaja teha konstruktiivne projekti eramaja jaoks. Eelprojekt on tehtud ja ehitusluba saanud. Geoloogiauring tehtud. Maatükk asub Pirital. Ehitusaluse pind - 120m2

Projekteeritud üksikelamu on kahekordne täiskeldriga lamekatusega kivikonstruktsioonis riskülikukujulise põhiplaaniga hoone, Elamu lõuna-ja idaküljele on projekteeritud terrassid. Elamu esimesel korrusel on ette nähtud esik, garderoob, panipaik, elutuba-hall kööginišiga, WCduširuum ja üks magamistuba. Elutoast pääseb terrassile. Teisel korrusel paiknevad trepihall, 4 magamistuba, garderoob, duširuum ja vannituba. Keldrikorrusel paknevad garaaž, saun, pesupesemisruum, puhkeruum ja tehniline ruum.

Praegu eraldi tegelen VK+KV ja EL projektidega.

On vaja teha vajalikud joonised ja lõiged. (vundament, sokkel, 1 ja 2 korrus, katuslagi), mitte standartsete silluste tugevusarvutused, koostada üldmaterjalide (plokid, betoon, armatuur, jne.) spetsifikatsioon (kogused). Maja arhitektuur on päris standardne ja ma ei oota, et seal on vaja palju ebastandatseid lahenduseid.

Eelprojektist tahaks teha mitu muudatust - välistrepp soklist maa tasemele, katuse lükk ja trep teiselt korruselt, uurin kui võimalik võta õhku ventillatsiooni maaaluse toru kaudu maa tasemelt.

Pildid, video ja failid

Hanke korraldaja: eraisik ID64540

Pakkumised

Pakkumisi kokku: 4

Ettevõte Summa Käibemaks Lisatud Vestlus
Kasutaja ikoon ID44039
Pakkuja profiil Väike nool paremale
5 800€ Sisaldab KM Sisaldab KM 25.10.2021 Vestlus (0)

Pakkumise kirjeldus:

Hinnapakkumine sisaldab hoone ehituskonstruktsioonide põhiprojekti vastavalt kehtivale standardile EVS 932:2017. Hinnapakkumine ei sisalda ehituskonstruktsioonide 3D modelleerimist.
Hinnapakkujale on väljastatud Eesti Ehitusinseneride Liidu poolt kutsetunnistus (diplomeeritud ehitusinsener tase 7). Hinnapakkuja omab MTR registreeringuid projekteerimiseks, ... Rohkem

Kasutaja ikoon ID39199
Pakkuja profiil Väike nool paremale
2 500€ Ei ole KMKR Ei ole KMKR 26.10.2021 Vestlus (5)

Pakkumise kirjeldus:

Tere! Hinnapakkumine sisaldab ehituskonstruktsioonide tööprojekti koostamist hoonele vastavalt standardis EVS 932:2017 toodule (hetkel kehtiv projekteerimisstandard). Tellija poolt vajalik arhitektuursete jooniste olemasolu .dwg formaadis.
Tellija poolt oleks hea, kui oleks olemas krundi geoloogilise uuringu aruanne. Jooniseid hakkaks üle andma etappide ... Rohkem

Kasutaja ikoon ID44908
Pakkuja profiil Väike nool paremale
2 500€ KM lisandub KM lisandub 04.11.2021 Vestlus (0)

Pakkumise kirjeldus:

Tellimuse tingimused:
• 50% ettemaks enne töödega alustamist (tasumine arve alusel);
• 50% enne vormistatud projekti väljastamist (tasumine arve alusel);
• Ettemaksu tasumisel nõustub tellija tellimuse tingimustega;
• Projekteerimine kaugtööna elektroonilise suhtluse kaudu - kohale sõitmine ainult erijuhtudel ja kokkuleppel;
• Tööde a ... Rohkem

Kasutaja ikoon ID48870
Pakkuja profiil Väike nool paremale
3 450€ Ei ole KMKR Ei ole KMKR 06.11.2021 Vestlus (0)

Pakkumise kirjeldus:

Tere,
pakkumise hind sisaldab järgmist:
maja ehituskonstruktsioonide projekteerimine põhiprojekti staadiumis kooskõlas arhitektuurse projektiga (vt EVS 932:2017)
Projekti sisu:
1. konstruktsiooniarvutused
2. seletuskiri,
3. joonised
4. vundamendi plaan
5. aluspõrand - vajalikud lõiked, armatuuri mõõtmed, sammud,.
6. seinte/silluste-plaan, sõ ... Rohkem

Küsimused hanke korraldajale

Küsimus: private ID44908   28.10.2021 07:37
Tere!
Millises formaadis on eelprojekt? Kas ainult dwg või saab ka ifc faili?

Teavita reeglite rikkumisest

Korraldaja vastus: 28.10.2021 09:07

Tere, ainult DWGs praege . Aga saan küsida arhitekti poolt kui ifc on olemas.

Teavita reeglite rikkumisest

Küsimus: private ID44908   28.10.2021 09:28
Infoks. dwg puhul tuleb kogu hoone üles ehitada 3D mudelina. Sõltuvalt ifc kvaliteedist, on töö maht oluliselt väiksem. Arhitektilt võib küsida kas neil on pakkuda pln/pla formaati.

Teavita reeglite rikkumisest

Korraldaja vastus: 28.10.2021 12:10

Sain vastust et Temal on kahjuks ainult dwg .

Teavita reeglite rikkumisest

Küsimus: private ID33328   29.10.2021 08:15
Tere, kas oleks võimalik saada veidi rohkem infot( kõigi korruste plaanid, konstruktsioonitüübid - st. mida on ette näinud arhitekt - S1, S2, KL1, ... . Ette tänades.

Teavita reeglite rikkumisest

Korraldaja vastus:
Hanke korraldaja ei ole küsimusele veel vastanud

Lisa küsimus

Lisa küsimus

Minu pakkumine

Reeglid

Pakkumise kirjelduse väli on mõeldud pakkumise detailsemaks lahti kirjutamiseks. Pikema teksti mugavaks sisestamiseks klikkige kasti paremal ülaservas oleval ikoonil.
Pakkumist tehes on keelatud postitada enda kontaktandmeid (nimi, telefon, aadress jne). Me jälgime ja analüüsime pakkumisi, et vältida pettuseid ja reeglite rikkumisi.
Rikkumise puhul kasutajakonto blokeeritakse.

 

Teisi töid samas valdkonnas

Valdkonnas "Projekteerimine" on 7 aktiivset tööd

no-img Pilt puudub

1-kordse 120 m2 elumaja põhiprojekt

Asukoht: Harjumaa, Metsanurme
Aega jäänud: 8p 10h
Tehtud pakkumisi: 4

no-img Pilt puudub

Saunamaja eelprojekt ehitusteatiseks

Asukoht: Lääne-Virumaa
Aega jäänud: 1p 10h
Tehtud pakkumisi: 3

Vanemad teated:

Vaata kõiki

Sellel veebilehel kasutatakse küpsiseid. Kasutamist jätkates nõustute küpsiste kasutamisega.

Sulge
 
Minu pakkumine

Reeglid

Pakkumise kirjelduse väli on mõeldud pakkumise detailsemaks lahti kirjutamiseks. Pikema teksti mugavaks sisestamiseks klikkige kasti paremal ülaservas oleval ikoonil.
Pakkumist tehes on keelatud postitada enda kontaktandmeid (nimi, telefon, aadress jne). Me jälgime ja analüüsime pakkumisi, et vältida pettuseid ja reeglite rikkumisi.
Rikkumise puhul kasutajakonto blokeeritakse.