+ Lisa oma töö      

Otsid ehitajat "Projekteerimine" valdkonnast?

Parima pakkumise ja teostaja leidmiseks lisa oma töö.

1- toalise korteri rekonstrueerimise projekt/ elektriprojekt/ vee ja kanalisatsiooni projekt

ID 66542

788 vaatamist

Prindi

  • check Pakkumiste tegemine
    kuni 03.11.2021
  • check Võitja valik kuni
    10.11.2021
  • 3 Töö teostamine
    ja hinnang
Hanke lõpp: K, 3. november, 2021
Maakond: Tartumaa
Linn: Tartu
Tööde algus: E, 25. oktoober, 2021 (Soovituslik)
Tööde lõpp: P, 31. oktoober, 2021 (Soovituslik)
Ehitusmaterjalid: Töö tegija poolt
Soovin pakkumisi: Summa kogu projektile

Töö sisu

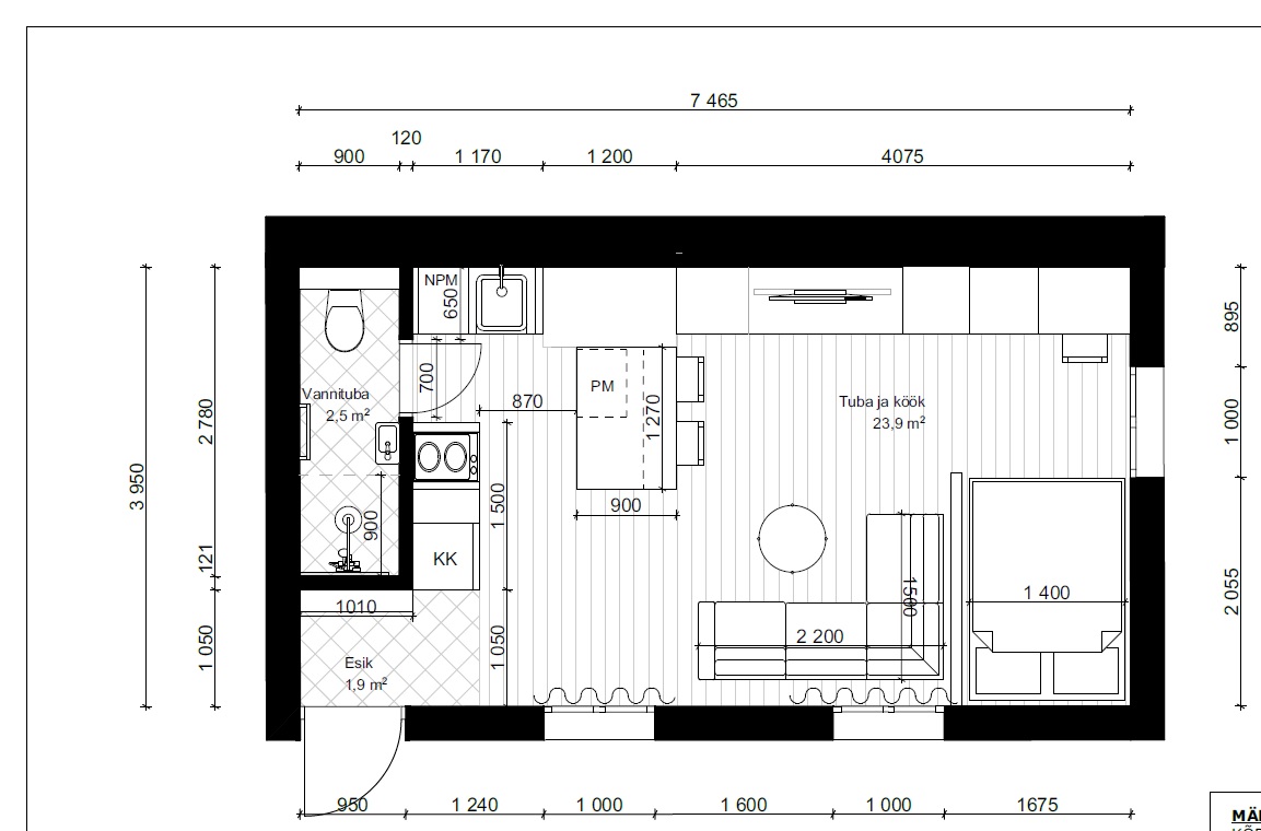
Koostatavad projektid peavad olema kooskõlastatud kohaliku omavalitsusega ja võimaldama ümberehituse alustamist projekti üleandmise hetkest hanke korraldajale. Projekt peab võimaldama 3- kordse puit(palk)maja esimese korruse 1-toalise korteri ümberehituse selliselt, et pingestatud seinas nihutatakse ukse ava seina keskelt seina äärde ning samasse seina lisatakse teine ukseava. Täiendavalt peab projekt sisaldama ühe mittekandva seina lammutamist toas. Ahju lammutamist.

Lisaks on tarvis koostada elektriprojekt. Elektripaigaldiste ja pistikute/lülitite asukohad on olemas täiustatud sisekujundusprojektis.

Vee ja kanalisatsiooni projekt.
Samuti täiustatud sisekujundusprojekti alusel.

Hinnad igale projektile eraldi.

Objekt asub Tartus.

Pildid, video ja failid

Hanke korraldaja: eraisik ID57714

Pakkumised

Pakkumisi kokku: 0

Küsimused hanke korraldajale

Küsimus: private ID31470   20.10.2021 13:30
Tere, saan pakkuda ainult elektriprojekti, Kas pakun või pigem ootate kogu komplekti pakkumist? Lugupidamisega, V.

Teavita reeglite rikkumisest

Korraldaja vastus: 20.10.2021 14:17

Tere. Võib ka eraldi projekte pakkuda.
Peakaitse on 20A. Mul on tarvis teada kui võimsaid seadmeid ma saan kasutada ja kas 20A on piisav kui küttelahenduseks on soov paigaldada 5kw õhk-vesi soojuspump.

Teavita reeglite rikkumisest

Lisa küsimus

Lisa küsimus

Minu pakkumine

Reeglid

Pakkumise kirjelduse väli on mõeldud pakkumise detailsemaks lahti kirjutamiseks. Pikema teksti mugavaks sisestamiseks klikkige kasti paremal ülaservas oleval ikoonil.
Pakkumist tehes on keelatud postitada enda kontaktandmeid (nimi, telefon, aadress jne). Me jälgime ja analüüsime pakkumisi, et vältida pettuseid ja reeglite rikkumisi.
Rikkumise puhul kasutajakonto blokeeritakse.

 

Teisi töid samas valdkonnas

Valdkonnas "Projekteerimine" on 7 aktiivset tööd

no-img Pilt puudub

1-kordse 120 m2 elumaja põhiprojekt

Asukoht: Harjumaa, Metsanurme
Aega jäänud: 8p 9h
Tehtud pakkumisi: 4

no-img Pilt puudub

Saunamaja eelprojekt ehitusteatiseks

Asukoht: Lääne-Virumaa
Aega jäänud: 1p 9h
Tehtud pakkumisi: 3

Vanemad teated:

Vaata kõiki

Sellel veebilehel kasutatakse küpsiseid. Kasutamist jätkates nõustute küpsiste kasutamisega.

Sulge
 
Minu pakkumine

Reeglid

Pakkumise kirjelduse väli on mõeldud pakkumise detailsemaks lahti kirjutamiseks. Pikema teksti mugavaks sisestamiseks klikkige kasti paremal ülaservas oleval ikoonil.
Pakkumist tehes on keelatud postitada enda kontaktandmeid (nimi, telefon, aadress jne). Me jälgime ja analüüsime pakkumisi, et vältida pettuseid ja reeglite rikkumisi.
Rikkumise puhul kasutajakonto blokeeritakse.