+ Lisa oma töö      

Otsid ehitajat "Projekteerimine" valdkonnast?

Parima pakkumise ja teostaja leidmiseks lisa oma töö.

Ehitusprojekti koostamine ja ehitusloa taotlus

ID 65544

414 vaatamist

Prindi

  • check Pakkumiste tegemine
    kuni 25.09.2021
  • check Võitja valik kuni
    02.10.2021
  • 3 Töö teostamine
    ja hinnang
Hanke lõpp: L, 25. september, 2021
Maakond: Harjumaa
Tööde algus: R, 24. september, 2021 (Soovituslik)
Tööde lõpp: R, 08. oktoober, 2021 (Soovituslik)
Ehitusmaterjalid: Töö tegija poolt
Soovin pakkumisi: Summa kogu projektile

Töö sisu

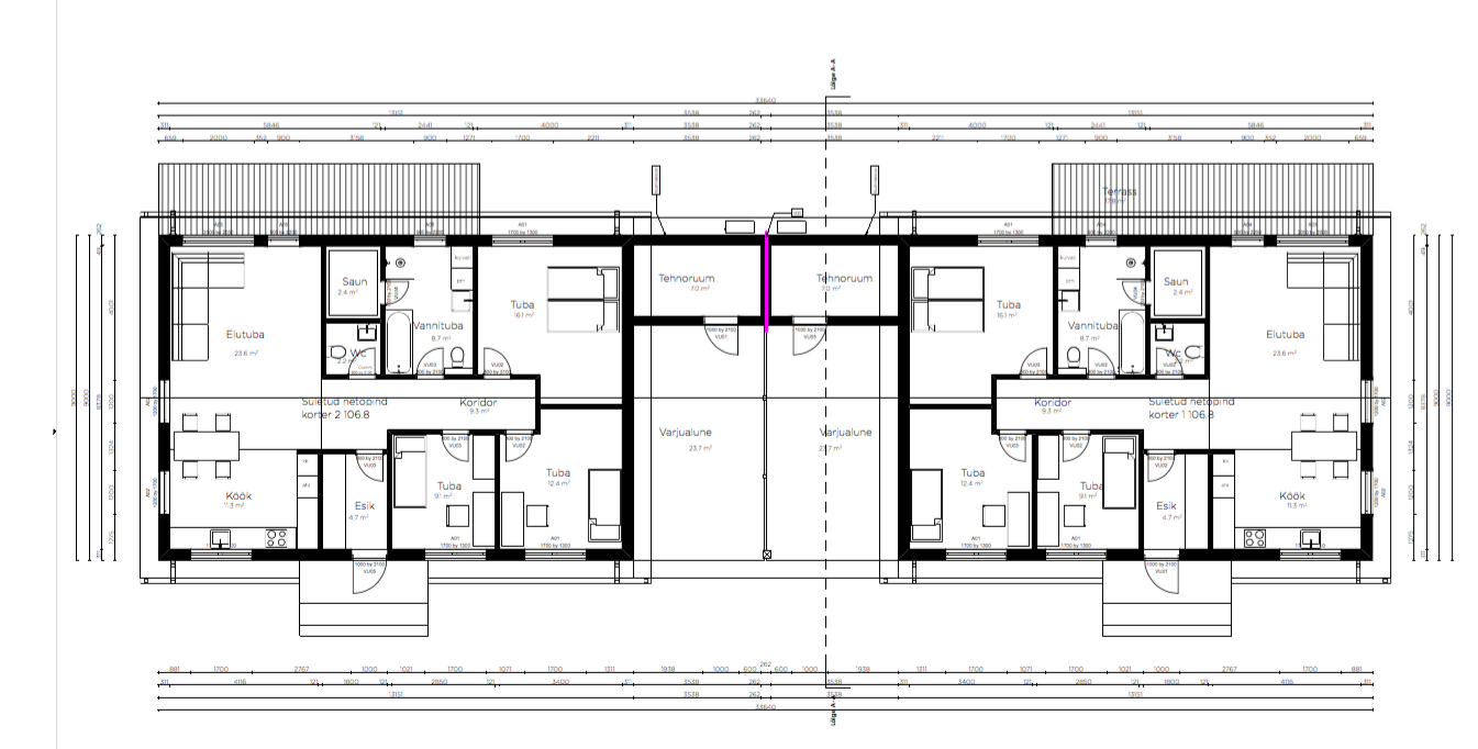
Otsin ehitusprojekti koostajat, et Kose vallas Harjumaal taotleda ehitusluba. Tegemist on paarismajaga, joonis lisas.

Pildid, video ja failid

Hanke korraldaja: eraisik ID63121

Pakkumised

Pakkumisi kokku: 3

Ettevõte Summa Käibemaks Lisatud Vestlus
Kasutaja ikoon ID63311
Pakkuja profiil Väike nool paremale
1 850€ Ei ole KMKR Ei ole KMKR 22.09.2021 Vestlus (6)

Pakkumise kirjeldus:

Pakkumises ehitusprojekt eelprojekti staadiumis vastavalt eelprojektile esitatavatele nõuetele. Kasutusloaga seonduvat pakkumises ei ole. Ehitusloa taotlemine on riigilõivuga. Pakkumine ei sisalda riigilõivusid, eriosasid, energiamärgist ega muid tasulisi kooskõlastusi ja taotlusi.
Küsimuste korral esitage need julgelt hanke keskkonnas pakkumise juurd ... Rohkem

Kasutaja ikoon ID42152
Pakkuja profiil Väike nool paremale
1 385€ Ei ole KMKR Ei ole KMKR 22.09.2021 Vestlus (5)

Pakkumise kirjeldus:

Ehitusprojekt eelprojekti staadiumis (arh-eh osa koos eriosadega)
PAkkumishind sisaldab:
Seletuskiri
Energiamärgis
Asendiplaan (vajalik geoalus, mille hind eraldi tööna on 600EUR)
Vund ja korruse plaan
Katuse plaan
Hoone lõige
Hoone vaated
Avatäidete joonised
Jm asjakohased vajalikud joonised

Kooskõlastused ehitusloa saamiseks
Ehitusloa t ... Rohkem

Kasutaja ikoon ID48870
Pakkuja profiil Väike nool paremale
1 950€ Ei ole KMKR Ei ole KMKR 25.09.2021 Vestlus (3)

Pakkumise kirjeldus:

Ehitusprojekt eelprojekti staadiumis ehitisregistrile esitamiseks
Pakkumishind sisaldab:
Seletuskiri,Korruste plaanid, Katuse plaan,Hoone lõige, Hoone vaated, Avatäidete joonised, jm asjakohased vajalikud joonised, Asendiplaan
Vajalik geoalus mis tuleb eraldi tellida
Kooskõlastused ehitusloa saamiseks
Ehitusloa taotluse esitamine ehistisregistrisse
... Rohkem

Küsimused hanke korraldajale

Hanke korraldajale ei ole veel küsimusi esitatud.

Lisa küsimus

Lisa küsimus

Minu pakkumine

Reeglid

Pakkumise kirjelduse väli on mõeldud pakkumise detailsemaks lahti kirjutamiseks. Pikema teksti mugavaks sisestamiseks klikkige kasti paremal ülaservas oleval ikoonil.
Pakkumist tehes on keelatud postitada enda kontaktandmeid (nimi, telefon, aadress jne). Me jälgime ja analüüsime pakkumisi, et vältida pettuseid ja reeglite rikkumisi.
Rikkumise puhul kasutajakonto blokeeritakse.

 

Teisi töid samas valdkonnas

Valdkonnas "Projekteerimine" on 7 aktiivset tööd

no-img Pilt puudub

1-kordse 120 m2 elumaja põhiprojekt

Asukoht: Harjumaa, Metsanurme
Aega jäänud: 8p 8h
Tehtud pakkumisi: 4

no-img Pilt puudub

Saunamaja eelprojekt ehitusteatiseks

Asukoht: Lääne-Virumaa
Aega jäänud: 1p 8h
Tehtud pakkumisi: 3

Vanemad teated:

Vaata kõiki

Sellel veebilehel kasutatakse küpsiseid. Kasutamist jätkates nõustute küpsiste kasutamisega.

Sulge
 
Minu pakkumine

Reeglid

Pakkumise kirjelduse väli on mõeldud pakkumise detailsemaks lahti kirjutamiseks. Pikema teksti mugavaks sisestamiseks klikkige kasti paremal ülaservas oleval ikoonil.
Pakkumist tehes on keelatud postitada enda kontaktandmeid (nimi, telefon, aadress jne). Me jälgime ja analüüsime pakkumisi, et vältida pettuseid ja reeglite rikkumisi.
Rikkumise puhul kasutajakonto blokeeritakse.