+ Lisa oma töö      

Otsid ehitajat "Projekteerimine" valdkonnast?

Parima pakkumise ja teostaja leidmiseks lisa oma töö.

Eramaja ehitus projekt

ID 65448

651 vaatamist

Prindi

  • check Pakkumiste tegemine
    kuni 01.10.2021
  • check Võitja valik kuni
    08.10.2021
  • 3 Töö teostamine
    ja hinnang
Hanke lõpp: R, 1. oktoober, 2021
Maakond: Harjumaa
Muu asula: Tiskre
Tööde algus: N, 30. september, 2021 (Soovituslik)
Tööde lõpp: T, 30. november, 2021 (Soovituslik)
Ehitusmaterjalid: Töö tegija poolt
Soovin pakkumisi: Summa kogu projektile

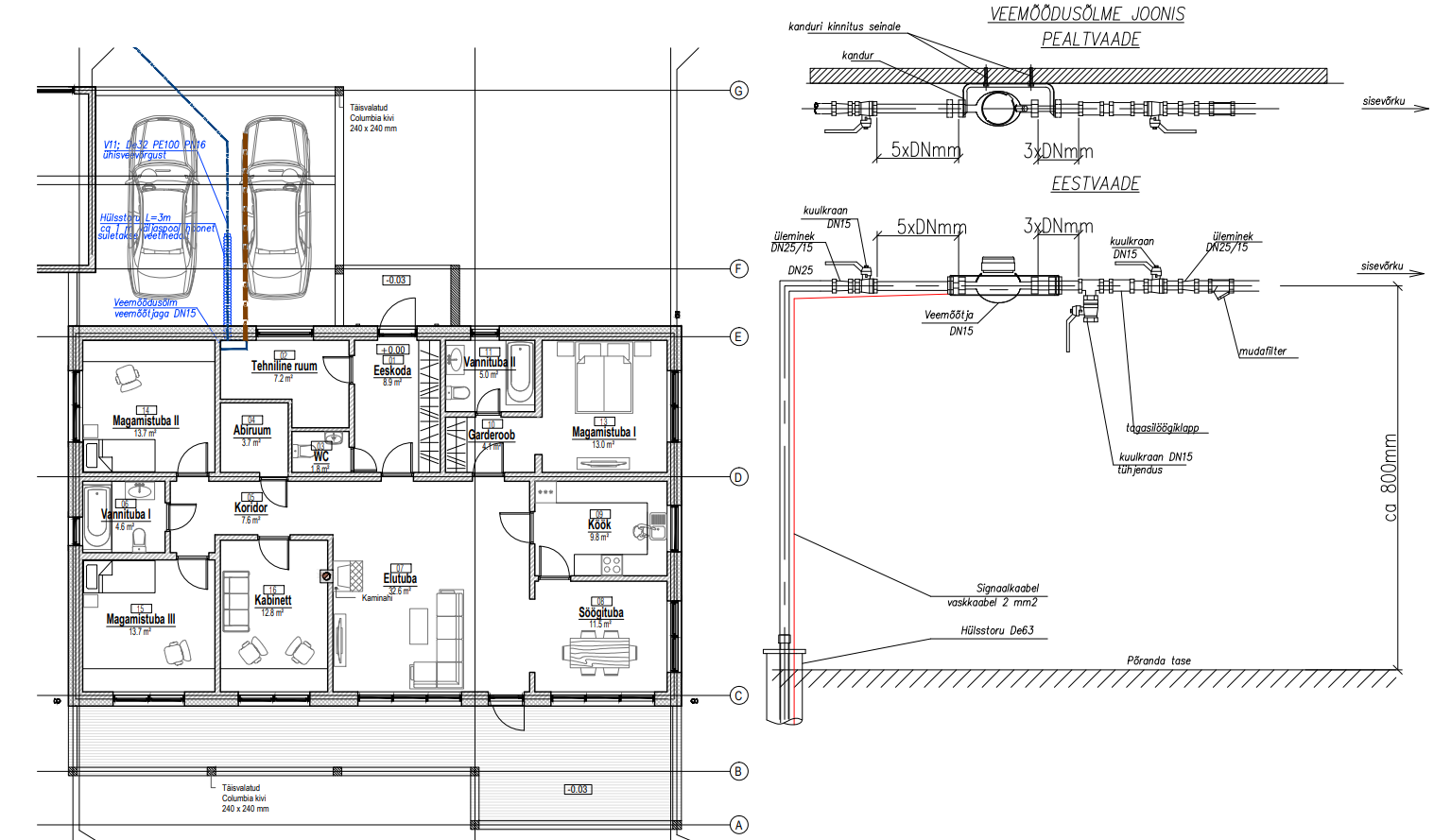
Töö sisu

Eramaja ehitus projekt põhiprojekti mahus.
Eelprojekt, vee litumine on tehtud

Pildid, video ja failid

Hanke korraldaja: eraisik ID4237

Pakkumised

Pakkumisi kokku: 1

Ettevõte Summa Käibemaks Lisatud Vestlus
Kasutaja ikoon ID63311
Pakkuja profiil Väike nool paremale
2 500€ Ei ole KMKR Ei ole KMKR 22.09.2021 Vestlus (0)

Pakkumise kirjeldus:

Pakkumises ehitusprojekt põhiprojekti staadiumis vastavalt põhiprojektile esitatavatele nõuetele. Kasutusloaga seonduvat pakkumises ei ole. Pakkumine ei sisalda geodeetilist alusplaani, riigilõivusid, eriosasid, energiamärgist, uuringuid, tasulisi kooskõlastusi ja taotlusi ega muid tasulisi lisateenuseid.
Pakkumine sisaldab konstruktsioonide osa sele ... Rohkem

Küsimused hanke korraldajale

Hanke korraldajale ei ole veel küsimusi esitatud.

Lisa küsimus

Lisa küsimus

Minu pakkumine

Reeglid

Pakkumise kirjelduse väli on mõeldud pakkumise detailsemaks lahti kirjutamiseks. Pikema teksti mugavaks sisestamiseks klikkige kasti paremal ülaservas oleval ikoonil.
Pakkumist tehes on keelatud postitada enda kontaktandmeid (nimi, telefon, aadress jne). Me jälgime ja analüüsime pakkumisi, et vältida pettuseid ja reeglite rikkumisi.
Rikkumise puhul kasutajakonto blokeeritakse.

 

Teisi töid samas valdkonnas

Valdkonnas "Projekteerimine" on 6 aktiivset tööd

no-img Pilt puudub

1-kordse 120 m2 elumaja põhiprojekt

Asukoht: Harjumaa, Metsanurme
Aega jäänud: 8p 16h
Tehtud pakkumisi: 4

no-img Pilt puudub

Saunamaja eelprojekt ehitusteatiseks

Asukoht: Lääne-Virumaa
Aega jäänud: 1p 16h
Tehtud pakkumisi: 3

Vanemad teated:

Vaata kõiki

Sellel veebilehel kasutatakse küpsiseid. Kasutamist jätkates nõustute küpsiste kasutamisega.

Sulge
 
Minu pakkumine

Reeglid

Pakkumise kirjelduse väli on mõeldud pakkumise detailsemaks lahti kirjutamiseks. Pikema teksti mugavaks sisestamiseks klikkige kasti paremal ülaservas oleval ikoonil.
Pakkumist tehes on keelatud postitada enda kontaktandmeid (nimi, telefon, aadress jne). Me jälgime ja analüüsime pakkumisi, et vältida pettuseid ja reeglite rikkumisi.
Rikkumise puhul kasutajakonto blokeeritakse.