+ Lisa oma töö      

Otsid ehitajat "Projekteerimine" valdkonnast?

Parima pakkumise ja teostaja leidmiseks lisa oma töö.

Eramu konstruktiivse osa projekt

ID 64992

641 vaatamist

Prindi

  • check Pakkumiste tegemine
    kuni 13.09.2021
  • check Võitja valik kuni
    20.09.2021
  • 3 Töö teostamine
    ja hinnang
Hanke lõpp: E, 13. september, 2021
Maakond: Harjumaa
Linn: Tallinn
Tööde algus: R, 10. september, 2021 (Soovituslik)
Tööde lõpp: R, 24. september, 2021 (Soovituslik)
Ehitusmaterjalid: Töö tellija poolt
Soovin pakkumisi: Summa kogu projektile

Töö sisu

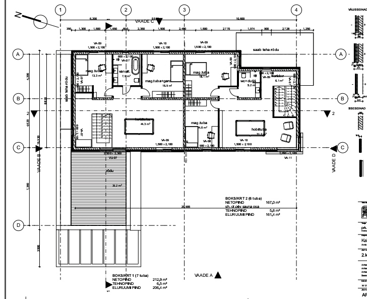
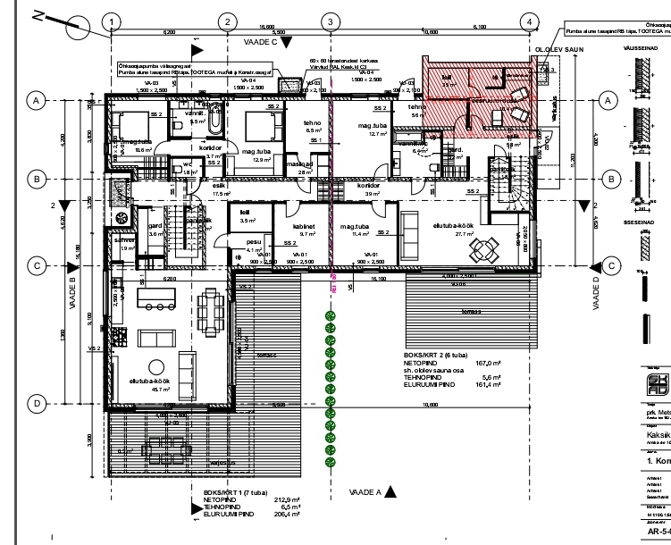
Otsime paarismaja 400m2 konstruktiivse töö projekti teostajat. Eelmisesse hankesse pilte lisada ei õnnestunud, lihtsam oli alustada uut.
Ootaksime suunda andvat hinda, väike hilisem kõikumine projektiga põhjalikumal tutvumisel on ok.
Aitäh!

Pildid, video ja failid

Hanke korraldaja: eraisik ID59642

Pakkumised

Pakkumisi kokku: 4

Ettevõte Summa Käibemaks Lisatud Vestlus
Kasutaja ikoon ID48870
Pakkuja profiil Väike nool paremale
2 950€ Ei ole KMKR Ei ole KMKR 10.09.2021 Vestlus (0)

Pakkumise kirjeldus:

Tere,
pakkumise hind sisaldab järgmist:
maja ehituskonstruktsioonide projekteerimine põhiprojekti staadiumis kooskõlas ehitusprojekt (vt EVS 932:2017)
Projekti sisu:
1. konstruktsiooniarvutused
2. joonised
3. aluspõrand - vajalikud lõiked, armatuuri mõõtmed, sammud,.
4. vajalikud sõlmed, lõiked.
5. Toepostide dimensioneerimine.
Omame MTR re ... Rohkem

Kasutaja ikoon ID39199
Pakkuja profiil Väike nool paremale
2 450€ Sisaldab KM Sisaldab KM 10.09.2021 Vestlus (0)

Pakkumise kirjeldus:

Tere! Hinnapakkumine sisaldab ehituskonstruktsioonide tööprojekti koostamist tervele hoonele vastavalt standardis EVS 932:2017 toodule (hetkel kehtiv projekteerimisstandard). Tellija poolt vajalik arhitektuursete jooniste olemasolu .dwg formaadis.
Tellija poolt oleks hea, kui oleks olemas krundi geoloogilise uuringu aruanne. Tööde valmimistähtaeg oleks ... Rohkem

Kasutaja ikoon ID44908
Pakkuja profiil Väike nool paremale
2 500€ KM lisandub KM lisandub 11.09.2021 Vestlus (0)
Kasutaja ikoon ID63311
Pakkuja profiil Väike nool paremale
3 000€ Ei ole KMKR Ei ole KMKR 12.09.2021 Vestlus (0)

Pakkumise kirjeldus:

Pakkumises ehitusprojekt tööprojekti staadiumis vastavalt allpool kirjeldatule (konstruktsioonide EK osa). Jooniste kogus vastavalt vajadusele kuid tööprojekti nõuete kohaselt. Kasutusloaga või kasutusteatisega seonduvat pakkumises ei ole.
Hinna kõikumine on oletuslik, kuna etteantud informatsioon ei ole piisav täpse pakkumise tegemiseks.
Küsimus ... Rohkem

Küsimused hanke korraldajale

Küsimus: private ID47813   10.09.2021 18:08
Tere

Kas saaksite lisada PDF/DWG?

Teavita reeglite rikkumisest

Korraldaja vastus: 10.09.2021 20:42

Tere. Viibin kahjuks Eestist hetkel eemal, joonised koduarvutis ja telefoni kaudu siia keskkonda kahjuks lisada ei lase.

Teavita reeglite rikkumisest

Küsimus: private ID63311   10.09.2021 19:19
Kui võimalik, siis sooviks ka pigem vaadata PDF või DWG jooniseid ja kui on olemas, siis lõike võiks ka panna.

Teavita reeglite rikkumisest

Korraldaja vastus: 10.09.2021 20:42

Tere. Viibin kahjuks Eestist hetkel eemal, joonised koduarvutis ja telefoni kaudu siia keskkonda kahjuks lisada ei lase.

Teavita reeglite rikkumisest

Lisa küsimus

Lisa küsimus

Minu pakkumine

Reeglid

Pakkumise kirjelduse väli on mõeldud pakkumise detailsemaks lahti kirjutamiseks. Pikema teksti mugavaks sisestamiseks klikkige kasti paremal ülaservas oleval ikoonil.
Pakkumist tehes on keelatud postitada enda kontaktandmeid (nimi, telefon, aadress jne). Me jälgime ja analüüsime pakkumisi, et vältida pettuseid ja reeglite rikkumisi.
Rikkumise puhul kasutajakonto blokeeritakse.

 

Teisi töid samas valdkonnas

Valdkonnas "Projekteerimine" on 6 aktiivset tööd

no-img Pilt puudub

1-kordse 120 m2 elumaja põhiprojekt

Asukoht: Harjumaa, Metsanurme
Aega jäänud: 8p 11h
Tehtud pakkumisi: 4

no-img Pilt puudub

Saunamaja eelprojekt ehitusteatiseks

Asukoht: Lääne-Virumaa
Aega jäänud: 1p 11h
Tehtud pakkumisi: 3

Vanemad teated:

Vaata kõiki

Sellel veebilehel kasutatakse küpsiseid. Kasutamist jätkates nõustute küpsiste kasutamisega.

Sulge
 
Minu pakkumine

Reeglid

Pakkumise kirjelduse väli on mõeldud pakkumise detailsemaks lahti kirjutamiseks. Pikema teksti mugavaks sisestamiseks klikkige kasti paremal ülaservas oleval ikoonil.
Pakkumist tehes on keelatud postitada enda kontaktandmeid (nimi, telefon, aadress jne). Me jälgime ja analüüsime pakkumisi, et vältida pettuseid ja reeglite rikkumisi.
Rikkumise puhul kasutajakonto blokeeritakse.