+ Lisa oma töö      

Otsid ehitajat "Eramu ehitus" valdkonnast?

Parima pakkumise ja teostaja leidmiseks lisa oma töö.

Ilmastikukindel majakarp

ID 64514

1059 vaatamist

Prindi

  • check Pakkumiste tegemine
    kuni 29.09.2021
  • check Võitja valik kuni
    06.10.2021
  • 3 Töö teostamine
    ja hinnang
Hanke lõpp: K, 29. september, 2021
Maakond: Harjumaa
Muu asula: Juuliku
Tööde algus: E, 30. august, 2021 (Soovituslik)
Tööde lõpp: T, 30. august, 2022 (Soovituslik)
Ehitusmaterjalid: Töö tegija poolt
Soovin pakkumisi: Summa kogu projektile

Töö sisu

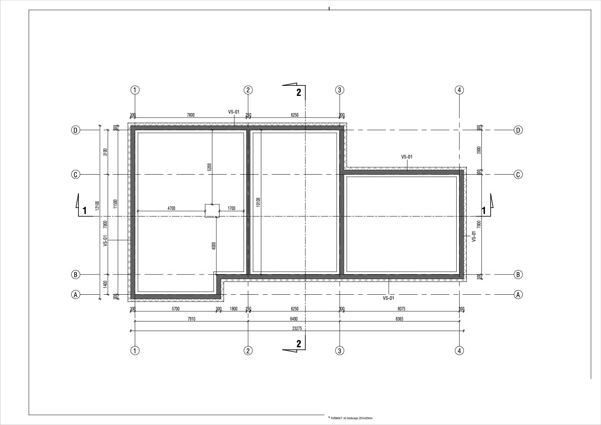
Kas oleks võimalik koostada mingisugune umbkaudne hinnapakkumine ühekordsele ilmastikukindlale majakarbile eelprojekti alusel. Vundament on valmis ja selle järgi tuleks siis orjenteeruda. Neto pinda 201m2. Esialgne plaan oli ehitada kivimaja, aga ootan ka pakkumisi puitmaja kohta.

Pildid, video ja failid

Hanke korraldaja: eraisik ID36262

Pakkumised

Pakkumisi kokku: 6

Ettevõte Summa Käibemaks Lisatud Vestlus
Kasutaja ikoon ID32936
Pakkuja profiil Väike nool paremale
350 000€ Sisaldab KM Sisaldab KM 31.08.2021 Vestlus (0)

Pakkumise kirjeldus:

Puitkarkass majale tehtud hind

Kasutaja ikoon ID52608
Pakkuja profiil Väike nool paremale
125 000€ Ikoon kell Sisaldab KM Sisaldab KM 27.09.2021 Vestlus (0)

Pakkumise kirjeldus:

Pakume Benpan-Nordic tehnoloogial põhinevat maja karpi (raudbetoonelementid, U väärtusega 0,15)
Hind sisaldaks:
1. maja seinad (osaliselt maakivi imitatsioonid, osaliselt puitfassaadiga) koos betoonist siseseintega (võib olla, et osaliselt peame mõned seinad lahendama kipsseinana), katusefermid, katuse katteplekk, koos tööga.
Ukse/aknad tuleks vali ... Rohkem

Kasutaja ikoon ID59528
Pakkuja profiil Väike nool paremale
200 000€ KM lisandub KM lisandub 28.09.2021 Vestlus (0)
Kasutaja ikoon ID44458
Pakkuja profiil Väike nool paremale
86 000€ KM lisandub KM lisandub 29.09.2021 Vestlus (2)

Pakkumise kirjeldus:

Tere.

Pakkumises välissinad Aeroc 375, Siseseinad kandvad Aeroc 250 töö + materjal ilma viimistluseta.
Vahelaegi õõnespaneel töö+materjal,
Katuse ehitamine, katusekatteks on kiviprofiiliga teraskatus töö + materjal.

Aknad uksed ei sisaldu hinnas aga saame abiks olla valiku tegemisel ja hinnapakkumiste võtmiseks . Aknad tuleb igaljuhul akna ... Rohkem

Kasutaja ikoon ID31957
Pakkuja profiil Väike nool paremale
200 000€ KM lisandub KM lisandub 29.09.2021 Vestlus (0)

Pakkumise kirjeldus:

Tere,

Pakkumine maja karbile.

Lugupidamisega

Kasutaja ikoon ID33904
Pakkuja profiil Väike nool paremale
121 360€ Sisaldab KM Sisaldab KM 29.09.2021 Vestlus (4)

Pakkumise kirjeldus:

Tere

Pakkumine maja karbile ehk seinad, katus ja aknad/uksed jne.

Koostööle lootes,
Aigar

Küsimused hanke korraldajale

Hanke korraldajale ei ole veel küsimusi esitatud.

Lisa küsimus

Lisa küsimus

Minu pakkumine

Reeglid

Pakkumise kirjelduse väli on mõeldud pakkumise detailsemaks lahti kirjutamiseks. Pikema teksti mugavaks sisestamiseks klikkige kasti paremal ülaservas oleval ikoonil.
Pakkumist tehes on keelatud postitada enda kontaktandmeid (nimi, telefon, aadress jne). Me jälgime ja analüüsime pakkumisi, et vältida pettuseid ja reeglite rikkumisi.
Rikkumise puhul kasutajakonto blokeeritakse.

 

Vanemad teated:

Vaata kõiki

Sellel veebilehel kasutatakse küpsiseid. Kasutamist jätkates nõustute küpsiste kasutamisega.

Sulge
 
Minu pakkumine

Reeglid

Pakkumise kirjelduse väli on mõeldud pakkumise detailsemaks lahti kirjutamiseks. Pikema teksti mugavaks sisestamiseks klikkige kasti paremal ülaservas oleval ikoonil.
Pakkumist tehes on keelatud postitada enda kontaktandmeid (nimi, telefon, aadress jne). Me jälgime ja analüüsime pakkumisi, et vältida pettuseid ja reeglite rikkumisi.
Rikkumise puhul kasutajakonto blokeeritakse.