+ Lisa oma töö      

Otsid ehitajat "Ehitusprojektid" valdkonnast?

Parima pakkumise ja teostaja leidmiseks lisa oma töö.

Hange on lõppenud!

Võitjaks osutus kasutaja ID 56531

Korraldaja hinnang tehtud tööle

5.0
18.11.2021
Töökiirus: 12345
Kvaliteet: 12345
Hind: 12345

Soovitan. Tehtud kiiresti ja minu soovitused arvestatud ja parandatud - Vjatsheslav P.

Ventilatsiooni, vee ja kanalisatsiooni projekt eramajale

ID 64466

1219 vaatamist

Prindi

  • check Pakkumiste tegemine
    kuni 12.09.2021
  • check Võitja valik kuni
    19.09.2021
  • 3 Töö teostamine
    ja hinnang
Hanke lõpp: P, 12. september, 2021
Maakond: Harjumaa
Linn: Tallinn
Tööde algus: E, 30. august, 2021 (Soovituslik)
Tööde lõpp: E, 27. september, 2021 (Soovituslik)
Ehitusmaterjalid: Töö tegija poolt
Soovin pakkumisi: Summa kogu projektile

Töö sisu

Soovin tellida eramaja ventilatsiooni- vee- ja kanalisatsiooni projekti, põhiprojekti mahus

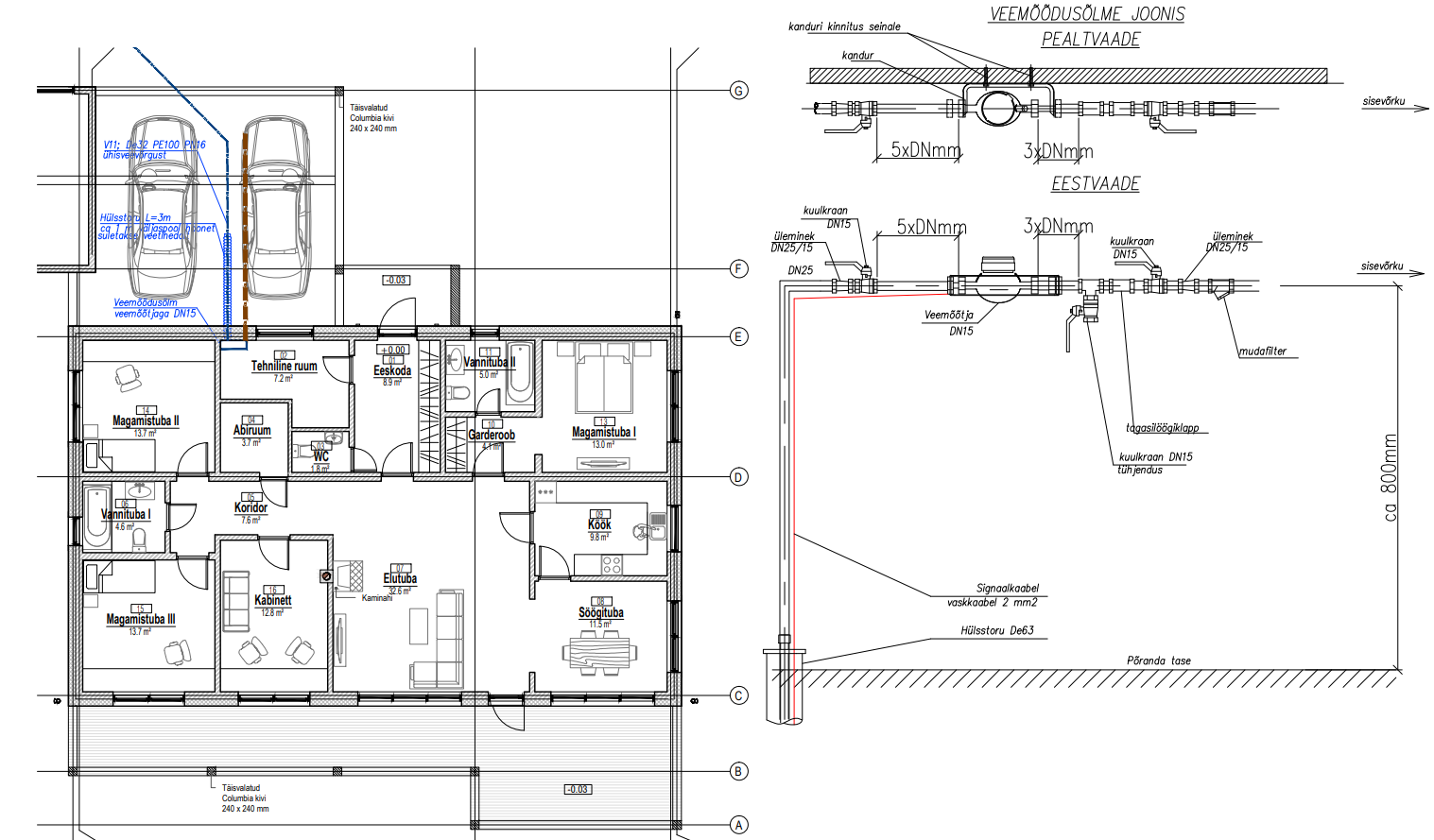
Pildid, video ja failid

Hanke korraldaja: eraisik ID4237

Pakkumised

Pakkumisi kokku: 5

Ettevõte Summa Käibemaks Lisatud Vestlus
Kasutaja ikoon ID63115
Pakkuja profiil Väike nool paremale
850€ Sisaldab KM Sisaldab KM 30.08.2021 Vestlus (0)

Pakkumise kirjeldus:

Tere

Hinnapakkumine sisaldab ventilatsiooni-veevarustuse- ja kanalisatsioonisüsteemide projekteerimist põhiprojekti mahus.
Ventilatsiooni pakkumine sisaldab õhuhulkade arvutamist, ventilatsiooni süsteemi projekteerimist, ventilatsiooni seadme valimist, magistraalide jooniseid, põhiseadmete mahuloetelu ja seletuskirja. (vastavalt EVS:906 2018).
Vee ... Rohkem

Kasutaja ikoon ID63696
Pakkuja profiil Väike nool paremale
800€ Ei ole KMKR Ei ole KMKR 31.08.2021 Vestlus (0)

Pakkumise kirjeldus:

Üksikelamu ventilatsiooni-, vee- ja kanalisatsioonisüsteemi projekteerimistööde pakkumine sisaldab:

- Ventilatsiooniprojekt (joonised, seletuskiri, materjalide spetsifikatsioon).
- Vee- ja kanalisatsiooniprojekt (joonised, seletuskiri, materjalide spetsifikatsioon).

Meie poolt valminud projektid arvestavad alati kehtivaid standardeid, head ehitust ... Rohkem

Kasutaja ikoon ID64325
Pakkuja profiil Väike nool paremale
800€ KM lisandub KM lisandub 03.09.2021 Vestlus (0)

Pakkumise kirjeldus:

Ventilatsiooni põhiprojekt:
- sissepuhe eluruumidest
- väljatõmme köögist ja märgadest ruumidest
- kööki eraldi kohtäratõmme (e. kubu)
- ventilatsiooniseade tehnilise ruumi seinale
- õhuvõtt restiga fassaadilt, väljavise elemendiga katusele
- torustiku näeb ette pööningule villa sisse

Vee- ja kanalisatsiooni põhiprojekt:
- veevarus ... Rohkem

Kasutaja ikoon ID64694
Pakkuja profiil Väike nool paremale
750€ Ei ole KMKR Ei ole KMKR 04.09.2021 Vestlus (0)

Pakkumise kirjeldus:

Tere

Hinnapakkumine sisaldab veevarustuse, kanalisatsiooni ja ventilatsiooni põhiprojekti (maht vastavalt EVS 932 "Ehitusprojekt"). Pakkumine sisaldab õhuvahetuse, torustike ja õhujagajate dimensioneerimist, vent.seadme, jooniseid, seletuskirja ja põhiseadmete spetsifikatsiooni.

Samuti hind sisaldab veevarustuse ja kanalisatsiooni põhiprojekti (ho ... Rohkem

Kasutaja ikoon ID56531
Pakkuja profiil Väike nool paremale
730€ KM lisandub KM lisandub 06.09.2021 Vestlus (2)

Pakkumise kirjeldus:

Tere

Hinnapakkumine sisaldab veevarustuse, kanalisatsiooni ja ventilatsiooni põhiprojekti vastavalt esitatud plaanile.

Olemas MTR registreering kütte, ventilatsiooni, veevarustuse ja kanalisatsiooni projekteerimiseks

Pakkumine ei sisalda teostusjooniste tegemist.

Tööde eelduseks dwg formaadis arhitektuursed alused

Vastutava spetsialisti al ... Rohkem

Küsimused hanke korraldajale

Hanke korraldajale ei ole veel küsimusi esitatud.

Lisa küsimus

Lisa küsimus

Minu pakkumine

Reeglid

Pakkumise kirjelduse väli on mõeldud pakkumise detailsemaks lahti kirjutamiseks. Pikema teksti mugavaks sisestamiseks klikkige kasti paremal ülaservas oleval ikoonil.
Pakkumist tehes on keelatud postitada enda kontaktandmeid (nimi, telefon, aadress jne). Me jälgime ja analüüsime pakkumisi, et vältida pettuseid ja reeglite rikkumisi.
Rikkumise puhul kasutajakonto blokeeritakse.

 

Teisi töid samas valdkonnas

Valdkonnas "Ehitusprojektid" on 7 aktiivset tööd

Eramu ehitusprojekt

Asukoht: Tartumaa
Aega jäänud: 10p 20h
Tehtud pakkumisi: 8

no-img Pilt puudub

Maja mõõdistus

Asukoht: Valgamaa, Vanamõisa
Aega jäänud: 20h 44 min
Tehtud pakkumisi: 4

Vanemad teated:

Vaata kõiki

Sellel veebilehel kasutatakse küpsiseid. Kasutamist jätkates nõustute küpsiste kasutamisega.

Sulge
 
Minu pakkumine

Reeglid

Pakkumise kirjelduse väli on mõeldud pakkumise detailsemaks lahti kirjutamiseks. Pikema teksti mugavaks sisestamiseks klikkige kasti paremal ülaservas oleval ikoonil.
Pakkumist tehes on keelatud postitada enda kontaktandmeid (nimi, telefon, aadress jne). Me jälgime ja analüüsime pakkumisi, et vältida pettuseid ja reeglite rikkumisi.
Rikkumise puhul kasutajakonto blokeeritakse.