+ Lisa oma töö      

Otsid ehitajat "Ehitusprojektid" valdkonnast?

Parima pakkumise ja teostaja leidmiseks lisa oma töö.

Vee ja kanalisatsiooni projekt

ID 64313

796 vaatamist

Prindi

  • check Pakkumiste tegemine
    kuni 28.08.2021
  • check Võitja valik kuni
    04.09.2021
  • 3 Töö teostamine
    ja hinnang
Hanke lõpp: L, 28. august, 2021
Maakond: Tartumaa
Tööde algus: K, 25. august, 2021 (Soovituslik)
Tööde lõpp: N, 30. september, 2021 (Soovituslik)
Ehitusmaterjalid: Töö tellija poolt
Soovin pakkumisi: Summa kogu projektile

Töö sisu

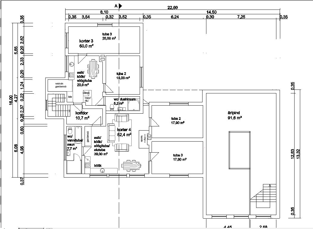
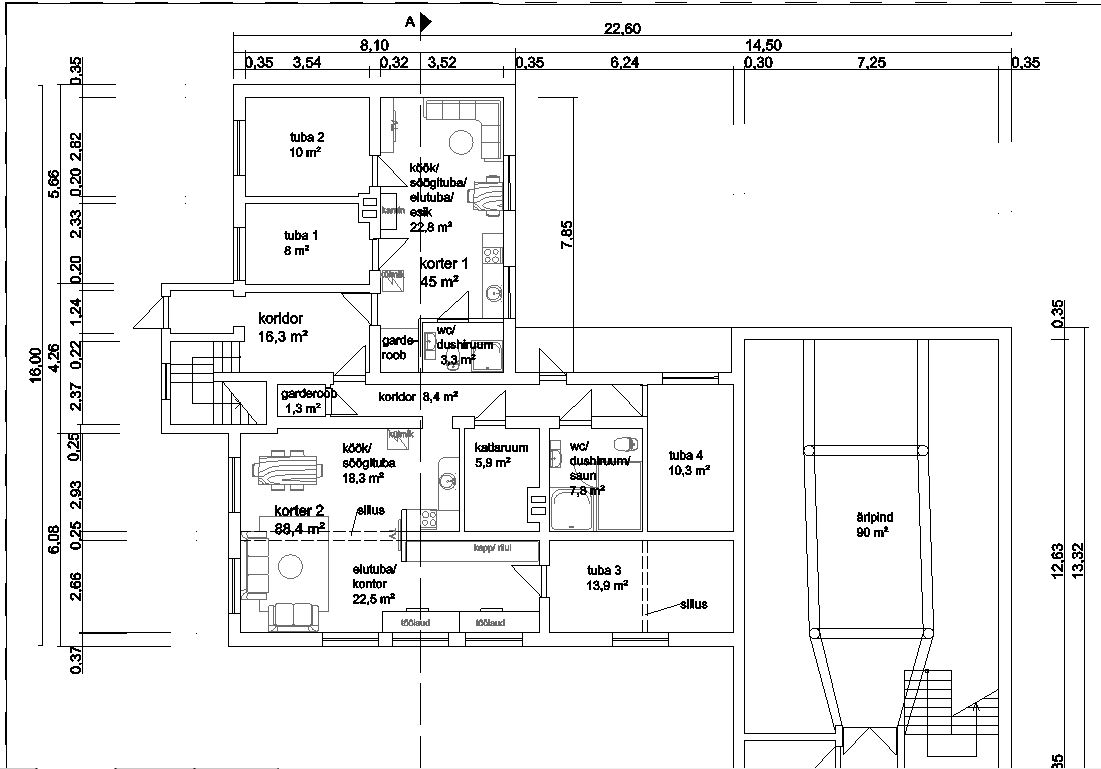
Tartu linnas ümberehitusprojekti raames vaja ehitusteatis võtta, mille juurde nõutakse eriosade lahendused (https://tartu.ee/et/hoone-laiendamine-ja-umberehitamine). Sellega seoses otsin vee- ja kanalisatsiooni joonistajat. põhiplaanist on DWG olemas. Osaliselt on veetorustik ja kanal olemas, lihtsalt vaja joonisele kanda.

Pildid, video ja failid

Hanke korraldaja: eraisik ID64445

Pakkumised

Pakkumisi kokku: 2

Ettevõte Summa Käibemaks Lisatud Vestlus
Kasutaja ikoon ID63115
Pakkuja profiil Väike nool paremale
550€ Sisaldab KM Sisaldab KM 26.08.2021 Vestlus (4)

Pakkumise kirjeldus:

Tere,

Pakkumine sisaldab Vee ja kanalisatsioonisüsteemide ümberjoonestamine vastavalt Teie plaanidele. Joonised saadame PDF kujul (vajadusel ka DWG)

Kasutaja ikoon ID48857
Pakkuja profiil Väike nool paremale
780€ KM lisandub KM lisandub 26.08.2021 Vestlus (0)

Pakkumise kirjeldus:

Veevarustuse ja kanalisatsiooni osa koostamine hoone laiendamise ja/või ümberehitamise projekti juurde veevarustuse ja kanalisatsiooni projekteerimise MTR registreeringut omavalt ettevõttelt ja kutsetunnistusega inseneri poolt.

Küsimused hanke korraldajale

Hanke korraldajale ei ole veel küsimusi esitatud.

Lisa küsimus

Lisa küsimus

Minu pakkumine

Reeglid

Pakkumise kirjelduse väli on mõeldud pakkumise detailsemaks lahti kirjutamiseks. Pikema teksti mugavaks sisestamiseks klikkige kasti paremal ülaservas oleval ikoonil.
Pakkumist tehes on keelatud postitada enda kontaktandmeid (nimi, telefon, aadress jne). Me jälgime ja analüüsime pakkumisi, et vältida pettuseid ja reeglite rikkumisi.
Rikkumise puhul kasutajakonto blokeeritakse.

 

Teisi töid samas valdkonnas

Valdkonnas "Ehitusprojektid" on 5 aktiivset tööd

no-img Pilt puudub

Kortermaja kõigi ruumide mõõdistamine ja DWG faili koostamine

Asukoht: Harjumaa, Tallinn
Aega jäänud: 1p 20h
Tehtud pakkumisi: 2

Korterelamu mõõdistusprojekti koostamine ja jooniste digitaliseerimine

Asukoht: Lääne-Virumaa, Tapa
Aega jäänud: 4p 20h
Tehtud pakkumisi: 2

Vanemad teated:

Vaata kõiki

Sellel veebilehel kasutatakse küpsiseid. Kasutamist jätkates nõustute küpsiste kasutamisega.

Sulge
 
Minu pakkumine

Reeglid

Pakkumise kirjelduse väli on mõeldud pakkumise detailsemaks lahti kirjutamiseks. Pikema teksti mugavaks sisestamiseks klikkige kasti paremal ülaservas oleval ikoonil.
Pakkumist tehes on keelatud postitada enda kontaktandmeid (nimi, telefon, aadress jne). Me jälgime ja analüüsime pakkumisi, et vältida pettuseid ja reeglite rikkumisi.
Rikkumise puhul kasutajakonto blokeeritakse.