+ Lisa oma töö      

Otsid ehitajat "Ehitusprojektid" valdkonnast?

Parima pakkumise ja teostaja leidmiseks lisa oma töö.

Projekteerimine

ID 62517

449 vaatamist

Prindi

  • check Pakkumiste tegemine
    kuni 19.07.2021
  • check Võitja valik kuni
    26.07.2021
  • 3 Töö teostamine
    ja hinnang
Hanke lõpp: E, 19. juuli, 2021
Maakond: Harjumaa
Linn: Keila
Tööde algus: E, 19. juuli, 2021 (Soovituslik)
Tööde lõpp: T, 31. august, 2021
Ehitusmaterjalid: Töö tellija poolt
Soovin pakkumisi: Summa kogu projektile

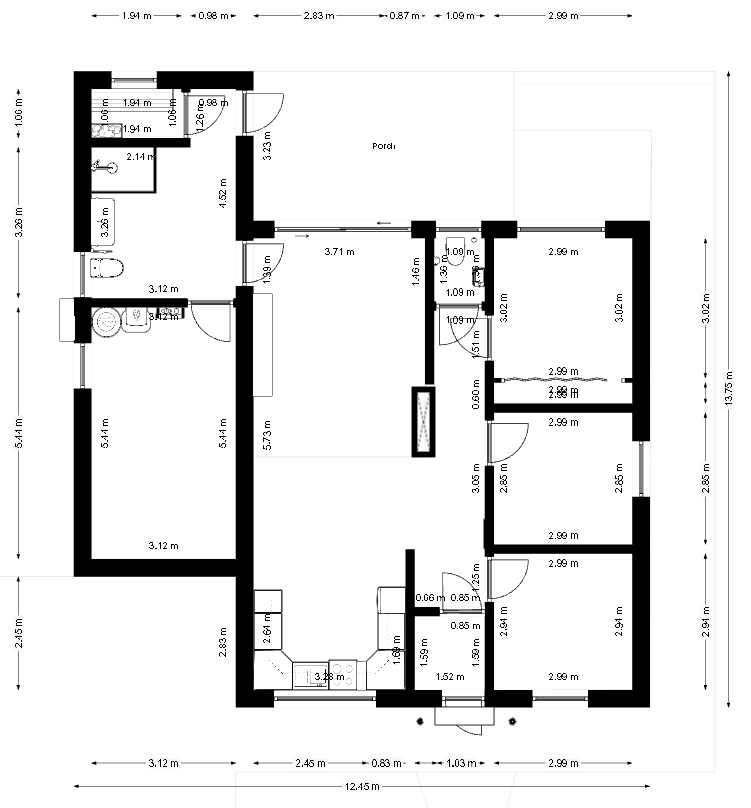
Töö sisu

Soovin projekti 1 korruseliselse eramule.
Projekt peab sisaldama kõiki dokumente ehitusloa saamiseks.
Vundament plaat, seinad puitkarkass/laudis, katus fermid/plekk.

Pildid, video ja failid

Hanke korraldaja: eraisik ID56574

Pakkumised

Pakkumisi kokku: 2

Ettevõte Summa Käibemaks Lisatud Vestlus
Kasutaja ikoon ID49405
Pakkuja profiil Väike nool paremale
1 500€ Ei ole KMKR Ei ole KMKR 17.07.2021 Vestlus (0)

Pakkumise kirjeldus:

Tere.
Ehitusprojekt ehitusloa taotlemiseksvajalikus eelprojekti mahus, vastavalt normidele ja standartidele ning Teie kirjeldusele. Kõik kooskõlastused ja asjaajamised kuni ehitusloa registreerimiseni. Projekt hõlmab kõike, mis on ette nähtud eelprojektis: Hoone arhitektuurne välimus (toonid, kasutatavad materjalid jne) jooniste ja seletuskirjana, hoo ... Rohkem

Kasutaja ikoon ID43351
Pakkuja profiil Väike nool paremale
1 500€ Ei ole KMKR Ei ole KMKR 17.07.2021 Vestlus (0)

Pakkumise kirjeldus:

Hind hõlmab:

1. arhitektuurse lahenduse eskiis kooskõlastusega;

2. eelprojekt ja ehitusloa hankimine (lisandub riigilõiv 250 eur):
seletuskiri (arhitektuuri- ja eriosade kirjeldus, tuleohutus, keskkonnakaitse jm), asendiplaan katenditega,
plaanid,
vaated,
lõike ... Rohkem

Küsimused hanke korraldajale

Hanke korraldajale ei ole veel küsimusi esitatud.

Lisa küsimus

Lisa küsimus

Minu pakkumine

Reeglid

Pakkumise kirjelduse väli on mõeldud pakkumise detailsemaks lahti kirjutamiseks. Pikema teksti mugavaks sisestamiseks klikkige kasti paremal ülaservas oleval ikoonil.
Pakkumist tehes on keelatud postitada enda kontaktandmeid (nimi, telefon, aadress jne). Me jälgime ja analüüsime pakkumisi, et vältida pettuseid ja reeglite rikkumisi.
Rikkumise puhul kasutajakonto blokeeritakse.

 

Teisi töid samas valdkonnas

Valdkonnas "Ehitusprojektid" on 6 aktiivset tööd

no-img Pilt puudub

Ehitusinsener tase 7 vastutav allikiri

Asukoht: Pärnumaa, Pärnu
Aega jäänud: 14h 41 min
Tehtud pakkumisi: 2

Korteri elektri projekt

Asukoht: Harjumaa, Tallinn
Aega jäänud: 2p 14h
Tehtud pakkumisi: 2

Vanemad teated:

Vaata kõiki

Sellel veebilehel kasutatakse küpsiseid. Kasutamist jätkates nõustute küpsiste kasutamisega.

Sulge
 
Minu pakkumine

Reeglid

Pakkumise kirjelduse väli on mõeldud pakkumise detailsemaks lahti kirjutamiseks. Pikema teksti mugavaks sisestamiseks klikkige kasti paremal ülaservas oleval ikoonil.
Pakkumist tehes on keelatud postitada enda kontaktandmeid (nimi, telefon, aadress jne). Me jälgime ja analüüsime pakkumisi, et vältida pettuseid ja reeglite rikkumisi.
Rikkumise puhul kasutajakonto blokeeritakse.