+ Lisa oma töö      

Otsid ehitajat "Projekteerimine" valdkonnast?

Parima pakkumise ja teostaja leidmiseks lisa oma töö.

Projekt korteri laiendamiseks ja renoveerimiseks

ID 61909

522 vaatamist

Prindi

  • check Pakkumiste tegemine
    kuni 09.09.2021
  • check Võitja valik kuni
    16.09.2021
  • 3 Töö teostamine
    ja hinnang
Hanke lõpp: N, 9. september, 2021
Maakond: Harjumaa
Linn: Tallinn
Tööde algus: E, 13. september, 2021 (Soovituslik)
Tööde lõpp: N, 30. september, 2021 (Soovituslik)
Ehitusmaterjalid: Töö tegija poolt
Soovin pakkumisi: Summa kogu projektile

Töö sisu

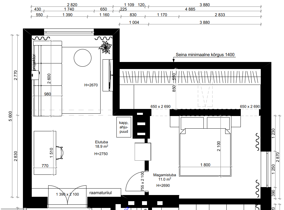
Taustainfo: planeerimises on korteri remont Põhja-Tallinnas 3-korruselise maja kolmandal korrusel, mis asub viilkatuse all. Remondi käigus on soov korteri pinda laiendada katuse viilu alla jääva osa arvelt ning lisada katuseaknad. Välja ehitada vannituba ning sellega kaasnevad tehnosüsteemide muudatused. Elektri-, vee-, kanalisatsiooni-, ventilatisooni- ja gaasisüsteemide uuendamine. Uus siseviimistlus.

Käesoleva hankega otsin projekti tegijat korteri laienduseks ja renoveerimiseks. Projekti väljundiks on:
-ehitusteatise esitamine ning selle positiivne vastus kohalikult omavalitsuselt
-ehitisregistrisse andmete uuendamine
-muinsuskaitsega suhtlemine katuseakende asukoha ja suuruse osas
-projekt on ehitustööde teostemise aluseks ning projekti alusel on võimalik ehitajal vastavad ehitustööd planeerida


Projekt peaks sisaldama:
-Ehitatavate seinte ja kaldlagede ja põrandate konsruktsioonilist infot: nätieks milliseid materjale kasutada, kui paksu ja millist soojustusmaterjali tuleb kasutada jne. Soojustuse planeerimiseks on olemas ka termograafia raport kogu korterist.
-Katuseakende asukohta, suurust, välimust jms infot, mida nõuatakse linnaplaneerimise ameti poolt, kes ehitusteatise üle vaatab.
-Ventilasiooniprojekt. Kavandada ventilatsiooniavad. Eluruumidesse ja vannituppa.
-Gaasiprojekt (valikuline). Pakkumises ära märkida, kas antud tehnosüsteem sisaldub kogu projektis.
-Elektriprojekt (valikuline). Pakkumises ära märkida, kas antud tehnosüsteem sisaldub kogu projektis.
-Projektis tuleks ära märkida ka kavandatav põrandaküte vannituppa ning olemasolevad küttesüsteemi osad (keskkütte radiaatorid ja tahkekütte ahi)
-vee- ja kanalisatsioonitorude muutusi seoses vannitoa ehitamisega uude asukohta.

Projekti aluseks võib kasutada juba olemasolevat sisearhitektuurset plaani, kus on juba tulevaste ruumide, mööbli, valgustuse ja tehnika paigutus määratletud.

Olen avatud täpsustavatele küsimustele.

Pildid, video ja failid

Hanke korraldaja: eraisik ID62239

Pakkumised

Pakkumisi kokku: 0

Küsimused hanke korraldajale

Hanke korraldajale ei ole veel küsimusi esitatud.

Lisa küsimus

Lisa küsimus

Minu pakkumine

Reeglid

Pakkumise kirjelduse väli on mõeldud pakkumise detailsemaks lahti kirjutamiseks. Pikema teksti mugavaks sisestamiseks klikkige kasti paremal ülaservas oleval ikoonil.
Pakkumist tehes on keelatud postitada enda kontaktandmeid (nimi, telefon, aadress jne). Me jälgime ja analüüsime pakkumisi, et vältida pettuseid ja reeglite rikkumisi.
Rikkumise puhul kasutajakonto blokeeritakse.

 

Teisi töid samas valdkonnas

Valdkonnas "Projekteerimine" on 7 aktiivset tööd

no-img Pilt puudub

1-kordse 120 m2 elumaja põhiprojekt

Asukoht: Harjumaa, Metsanurme
Aega jäänud: 8p 7h
Tehtud pakkumisi: 4

no-img Pilt puudub

Saunamaja eelprojekt ehitusteatiseks

Asukoht: Lääne-Virumaa
Aega jäänud: 1p 7h
Tehtud pakkumisi: 3

Vanemad teated:

Vaata kõiki

Sellel veebilehel kasutatakse küpsiseid. Kasutamist jätkates nõustute küpsiste kasutamisega.

Sulge
 
Minu pakkumine

Reeglid

Pakkumise kirjelduse väli on mõeldud pakkumise detailsemaks lahti kirjutamiseks. Pikema teksti mugavaks sisestamiseks klikkige kasti paremal ülaservas oleval ikoonil.
Pakkumist tehes on keelatud postitada enda kontaktandmeid (nimi, telefon, aadress jne). Me jälgime ja analüüsime pakkumisi, et vältida pettuseid ja reeglite rikkumisi.
Rikkumise puhul kasutajakonto blokeeritakse.