+ Lisa oma töö      

Otsid ehitajat "Ehitusprojektid" valdkonnast?

Parima pakkumise ja teostaja leidmiseks lisa oma töö.

Eramu rekonstrueerimisprojekt

ID 61182

1371 vaatamist

Prindi

  • check Pakkumiste tegemine
    kuni 17.06.2021
  • check Võitja valik kuni
    24.06.2021
  • 3 Töö teostamine
    ja hinnang
Hanke lõpp: N, 17. juuni, 2021
Maakond: Harjumaa
Linn: Tallinn
Tööde algus: N, 03. juuni, 2021 (Soovituslik)
Tööde lõpp: N, 17. juuni, 2021 (Soovituslik)
Ehitusmaterjalid: Töö tegija poolt
Soovin pakkumisi: Summa kogu projektile

Töö sisu

Vajame hinnapakkumist eramu rekonstrueerimisprojektile.

Plaanis olevad tööd (ainult esimene korrus):
- Toa ja köögi vahel oleva seina ja soojamüüri/puupliidi eemaldamine.
- Võimalusel pliidi asendamine küttekaminaga.
- Tekkinud ruumist uks maja taha.
- Kõigile esimese korruse tubadele põrandaküte (õhk-vesi).
- Esimesele korrusele dushiruumi lisamine.

Projektid vajalikud KOVi / EHRi ehitusteatise esitamiseks ja ehitushanke tegemiseks.
Vajalikud projektid:
- rekonstrueerimisprojekt
- kütte- ja ventilatsiooniprojekt
- vee- ja kanalisatsiooniprojekt
- elektriprojekt

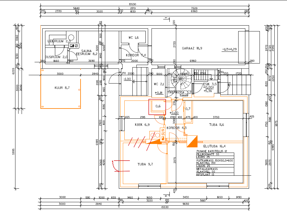
Lisatud detailsem projekteerimise lähteülesanne ja esimese korruse plaan.

Pildid, video ja failid

Hanke korraldaja: eraisik ID59766

Pakkumised

Pakkumisi kokku: 1

Ettevõte Summa Käibemaks Lisatud Vestlus
Kasutaja ikoon ID48870
Pakkuja profiil Väike nool paremale
3 950€ Ei ole KMKR Ei ole KMKR 17.06.2021 Vestlus (0)

Pakkumise kirjeldus:

Ehitusprojekt eelprojekti staadiumis ehitisregistrile esitamiseks
Pakkumishind sisaldab:
Seletuskiri,Korruste plaanid, Katuse plaan,Hoone lõige, Hoone vaated, Avatäidete joonised, jm asjakohased vajalikud joonised, Asendiplaan
Vajalik geoalus mis tuleb eraldi tellida
Kooskõlastused ehitusloa saamiseks
Ehitusloa taotluse esitamine ehistisregistrisse
... Rohkem

Küsimused hanke korraldajale

Hanke korraldajale ei ole veel küsimusi esitatud.

Lisa küsimus

Lisa küsimus

Minu pakkumine

Reeglid

Pakkumise kirjelduse väli on mõeldud pakkumise detailsemaks lahti kirjutamiseks. Pikema teksti mugavaks sisestamiseks klikkige kasti paremal ülaservas oleval ikoonil.
Pakkumist tehes on keelatud postitada enda kontaktandmeid (nimi, telefon, aadress jne). Me jälgime ja analüüsime pakkumisi, et vältida pettuseid ja reeglite rikkumisi.
Rikkumise puhul kasutajakonto blokeeritakse.

 

Teisi töid samas valdkonnas

Valdkonnas "Ehitusprojektid" on 5 aktiivset tööd

Korteri elektri projekt

Asukoht: Harjumaa, Tallinn
Aega jäänud: 1p 18h
Tehtud pakkumisi: 2

no-img Pilt puudub

Kortermaja kõigi ruumide mõõdistamine ja DWG faili koostamine

Asukoht: Harjumaa, Tallinn
Aega jäänud: 10p 18h
Tehtud pakkumisi: 1

Vanemad teated:

Vaata kõiki

Sellel veebilehel kasutatakse küpsiseid. Kasutamist jätkates nõustute küpsiste kasutamisega.

Sulge
 
Minu pakkumine

Reeglid

Pakkumise kirjelduse väli on mõeldud pakkumise detailsemaks lahti kirjutamiseks. Pikema teksti mugavaks sisestamiseks klikkige kasti paremal ülaservas oleval ikoonil.
Pakkumist tehes on keelatud postitada enda kontaktandmeid (nimi, telefon, aadress jne). Me jälgime ja analüüsime pakkumisi, et vältida pettuseid ja reeglite rikkumisi.
Rikkumise puhul kasutajakonto blokeeritakse.