+ Lisa oma töö      

Otsid ehitajat "Projekteerimine" valdkonnast?

Parima pakkumise ja teostaja leidmiseks lisa oma töö.

Eramu kütte- ja ventilatsiooniprojekti koostamine

ID 61063

664 vaatamist

Prindi

  • check Pakkumiste tegemine
    kuni 14.06.2021
  • check Võitja valik kuni
    21.06.2021
  • 3 Töö teostamine
    ja hinnang
Hanke lõpp: E, 14. juuni, 2021
Maakond: Harjumaa
Linn: Tallinn
Tööde algus: E, 07. juuni, 2021 (Soovituslik)
Tööde lõpp: K, 30. juuni, 2021 (Soovituslik)
Ehitusmaterjalid: Töö tegija poolt
Soovin pakkumisi: Summa kogu projektile

Töö sisu

Kütte- ja ventilatsiooniprojekti koostamine. (põhiprojekt)

Olemas digitaalsed alusplaanid (dwg) ja olemas on ka digitaalne vesi-kanal projekt (dwg) mille saab(/tuleks) aluseks võtta (püstakud ja jaotussõlmede asukohad planeeritud). Neid kõiki saab kasutada, samuti saab hanke võitja lähteülesande ja hetkeolukorra detailsema kirjelduse.

Allpool ülevaatlikult:

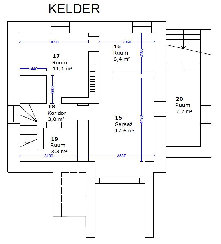
Hoone on 1978 aastal ehitatud, täiskeldriga (ja täisvundamendiga), kahe korruseline silikaltsiittellisest eramu (Tallinnas). Ruumide pindala 101m2, koos keldriga umbkaudu 150m2. (Ehitusalune pind <100m2.)

Esimesel korrusel planeeritud ruume kolm: avatud eluruum/veranda/köök, vannituba, WC.

Teisel korrusel planeeritud ruume neli: 3 tuba, dušširuum (lisaks koridor).

Keldris ruume 5: garaaž/töökoda, tehnoruum, kolm laoruumi (lisaks koridor).

Soovitav küttelahendus - vesipõrandaküte kahel korrusel, radiaatorküte keldris.

Soovitav ventilatsioon - soojustagastusega sundventilatsioon.

Kütte ja sooja tarbeveega varustavad hoonet pelletikatel ja kahesüsteemne boiler (paigaldatud). Mis asuvad tehnoruumis.

Tööde algus ja lõpp indikatiivsed - palun täpsustage pakkumises millal saaksite alustada ja orienteeruv aeg mis (arvestades Teie koormust) projekteerimisele kuluks.

Pildid, video ja failid

Hanke korraldaja: eraisik ID62592

Pakkumised

Pakkumisi kokku: 0

Küsimused hanke korraldajale

Hanke korraldajale ei ole veel küsimusi esitatud.

Lisa küsimus

Lisa küsimus

Minu pakkumine

Reeglid

Pakkumise kirjelduse väli on mõeldud pakkumise detailsemaks lahti kirjutamiseks. Pikema teksti mugavaks sisestamiseks klikkige kasti paremal ülaservas oleval ikoonil.
Pakkumist tehes on keelatud postitada enda kontaktandmeid (nimi, telefon, aadress jne). Me jälgime ja analüüsime pakkumisi, et vältida pettuseid ja reeglite rikkumisi.
Rikkumise puhul kasutajakonto blokeeritakse.

 

Teisi töid samas valdkonnas

Valdkonnas "Projekteerimine" on 6 aktiivset tööd

no-img Pilt puudub

1-kordse 120 m2 elumaja põhiprojekt

Asukoht: Harjumaa, Metsanurme
Aega jäänud: 8p 12h
Tehtud pakkumisi: 4

no-img Pilt puudub

Saunamaja eelprojekt ehitusteatiseks

Asukoht: Lääne-Virumaa
Aega jäänud: 1p 12h
Tehtud pakkumisi: 3

Vanemad teated:

Vaata kõiki

Sellel veebilehel kasutatakse küpsiseid. Kasutamist jätkates nõustute küpsiste kasutamisega.

Sulge
 
Minu pakkumine

Reeglid

Pakkumise kirjelduse väli on mõeldud pakkumise detailsemaks lahti kirjutamiseks. Pikema teksti mugavaks sisestamiseks klikkige kasti paremal ülaservas oleval ikoonil.
Pakkumist tehes on keelatud postitada enda kontaktandmeid (nimi, telefon, aadress jne). Me jälgime ja analüüsime pakkumisi, et vältida pettuseid ja reeglite rikkumisi.
Rikkumise puhul kasutajakonto blokeeritakse.