+ Lisa oma töö      

Otsid ehitajat "Projekteerimine" valdkonnast?

Parima pakkumise ja teostaja leidmiseks lisa oma töö.

Suvila eelprojekt ehitusloa taotlemisks

ID 60836

692 vaatamist

Prindi

  • check Pakkumiste tegemine
    kuni 01.06.2021
  • check Võitja valik kuni
    08.06.2021
  • 3 Töö teostamine
    ja hinnang
Hanke lõpp: T, 1. juuni, 2021
Maakond: Läänemaa
Tööde algus: E, 31. mai, 2021 (Soovituslik)
Tööde lõpp: L, 19. juuni, 2021
Ehitusmaterjalid: Töö tellija poolt
Soovin pakkumisi: Summa kogu projektile

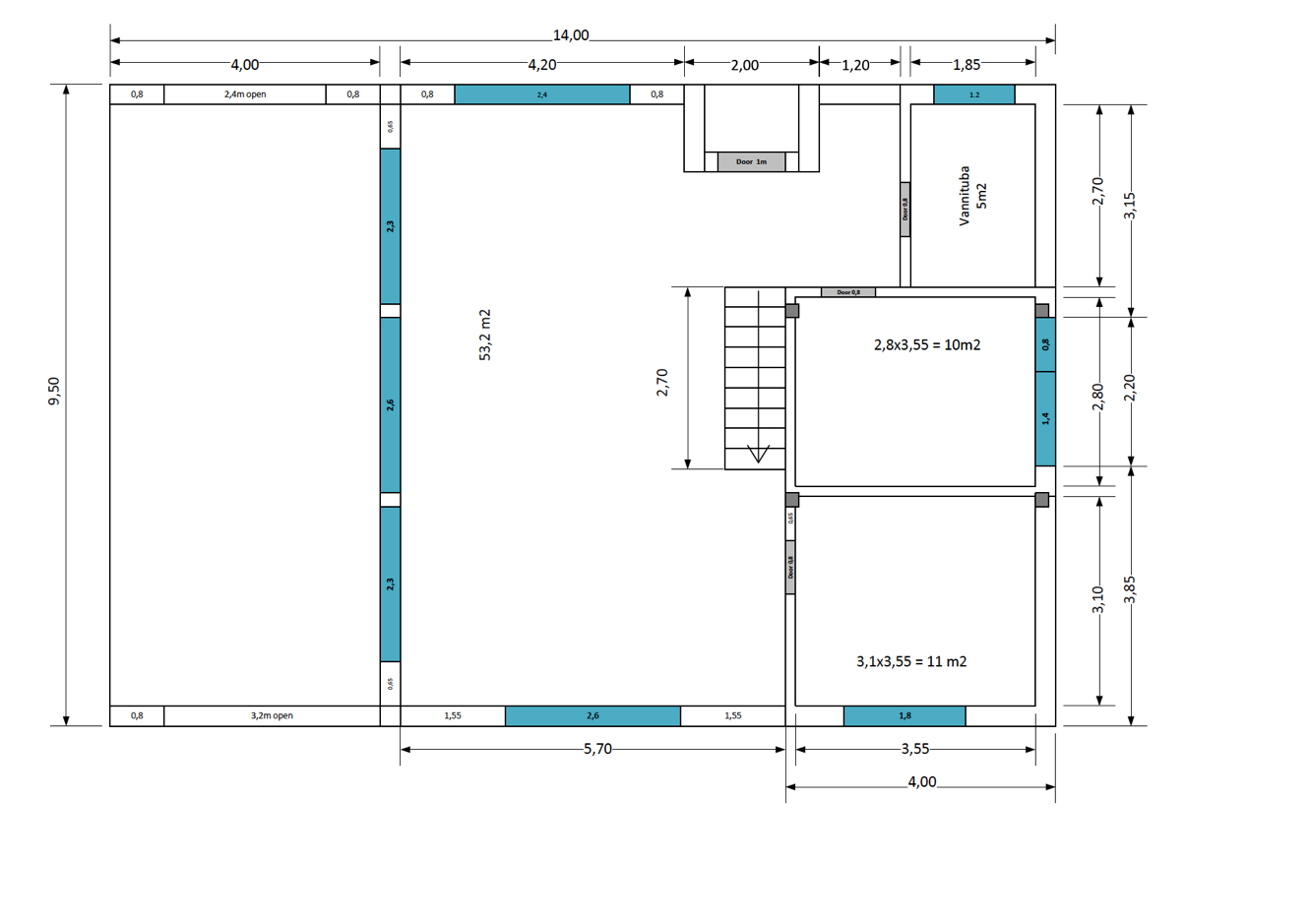
Töö sisu

Tellin maja eelprojekti detailsusastmes mis on vajalik ehitusloa taotlemiseks. Maja konstruktiivsed ehitusjooonised teeb moodulmaja tootja hiljem.
Olemas on geoalus.
Vundamendi osa on vajalik teostada konstruktiivse tööprojekti detailsusastmes, et saaks selle järgi tellida vundamendi.
Maja eskiis on manuses (väikesed seinade muudatused tehake nädala jooksul). Vajadusel annan kaasa MS Visio faili. Vundament tuleb plaatvundament ja otsustada/arvutada tuleb selle tehniline lahendus, muu hulgas:
- kahekihiline või ühekihiline?
- kas tõsta pinnast kruusa, liiva või killustikuga?
- hüdroisolatsioonid?
- armeering
- põrandakütte ringid
- kommunikatsioonide läbiviigud
- vaja on läbimõeldud lahendusi (niiskus, soojustus, hind)
- tulemuseks joonised ehitajale ka elektrooniline versioon.

Pildid, video ja failid

Hanke korraldaja: eraisik ID58308

Pakkumised

Pakkumisi kokku: 2

Ettevõte Summa Käibemaks Lisatud Vestlus
Kasutaja ikoon ID5128
Pakkuja profiil Väike nool paremale
2 400€ KM lisandub KM lisandub 26.05.2021 Vestlus (0)

Pakkumise kirjeldus:

Hinnas arhitektuuriosa ehitusloa taotlemiseks, inseneriosades lühiksed arhitekti kirjutatud seletuskirjad ja ehitusloa taotlemine. Vundamendi osas põhiporjekt, koostatud inseneri poolt. Vundamendi projekti koostasmieks on vajalikud pinnase andmeid. Hinnas ei ole geoloogilist uuringut.

Kasutaja ikoon ID48870
Pakkuja profiil Väike nool paremale
2 950€ Ei ole KMKR Ei ole KMKR 01.06.2021 Vestlus (0)

Pakkumise kirjeldus:

Ehitusprojekt eelprojekti staadiumis ehitisregistrile esitamiseks
Pakkumishind sisaldab:
Seletuskiri,Korruste plaanid, Katuse plaan,Hoone lõige, Hoone vaated, Avatäidete joonised, jm asjakohased vajalikud joonised, Asendiplaan
Vajalik geoalus mis tuleb eraldi tellida
Kooskõlastused ehitusloa saamiseks
Ehitusloa taotluse esitamine ehistisregistrisse
... Rohkem

Küsimused hanke korraldajale

Hanke korraldajale ei ole veel küsimusi esitatud.

Lisa küsimus

Lisa küsimus

Minu pakkumine

Reeglid

Pakkumise kirjelduse väli on mõeldud pakkumise detailsemaks lahti kirjutamiseks. Pikema teksti mugavaks sisestamiseks klikkige kasti paremal ülaservas oleval ikoonil.
Pakkumist tehes on keelatud postitada enda kontaktandmeid (nimi, telefon, aadress jne). Me jälgime ja analüüsime pakkumisi, et vältida pettuseid ja reeglite rikkumisi.
Rikkumise puhul kasutajakonto blokeeritakse.

 

Teisi töid samas valdkonnas

Valdkonnas "Projekteerimine" on 6 aktiivset tööd

no-img Pilt puudub

1-kordse 120 m2 elumaja põhiprojekt

Asukoht: Harjumaa, Metsanurme
Aega jäänud: 8p 15h
Tehtud pakkumisi: 4

no-img Pilt puudub

Saunamaja eelprojekt ehitusteatiseks

Asukoht: Lääne-Virumaa
Aega jäänud: 1p 15h
Tehtud pakkumisi: 3

Vanemad teated:

Vaata kõiki

Sellel veebilehel kasutatakse küpsiseid. Kasutamist jätkates nõustute küpsiste kasutamisega.

Sulge
 
Minu pakkumine

Reeglid

Pakkumise kirjelduse väli on mõeldud pakkumise detailsemaks lahti kirjutamiseks. Pikema teksti mugavaks sisestamiseks klikkige kasti paremal ülaservas oleval ikoonil.
Pakkumist tehes on keelatud postitada enda kontaktandmeid (nimi, telefon, aadress jne). Me jälgime ja analüüsime pakkumisi, et vältida pettuseid ja reeglite rikkumisi.
Rikkumise puhul kasutajakonto blokeeritakse.